Well-presented Croydon starter home with great transport links and local amenities.
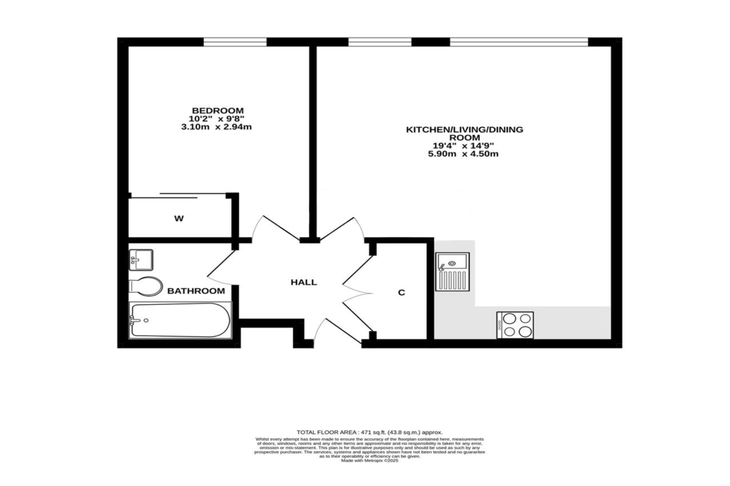
- Seventh-floor bright one-bedroom apartment with secure entry
- Open-plan living area with fitted kitchen and integrated appliances
- Double bedroom with built-in wardrobes
- 471 sq ft average-sized flat, compact and low-maintenance
- Electric room heaters (no gas central heating) may raise bills
- Leasehold tenure — check lease length and service charges
- Excellent broadband and mobile signal; close to two stations
This bright seventh-floor one-bedroom apartment in Waddon House offers a compact, well-presented city home ideal for first-time buyers or buy-to-let investors. The open-plan living area and fitted kitchen with integrated appliances make efficient use of the 471 sq ft layout, while the double bedroom includes built-in wardrobes for practical storage.
The development sits in a convenient Croydon location with secure entry and close walking distance to Waddon and West Croydon stations, shops and frequent bus routes — excellent for commuting and local amenities. Broadband speeds are fast and mobile signal is excellent, supporting home working and streaming.
Important practical points: the property is leasehold, and heating is by electric room heaters rather than a gas central system, which can increase running costs. The flat is average-sized and in a mid-20th-century building, so buyers should check service charges, lease length and that the electric heating meets their budget and comfort needs.
Overall this apartment delivers low-maintenance city living with good transport links and local schools nearby. It suits a buyer seeking a well-located starter home or an investor after straightforward rental potential, provided they factor in tenure and heating costs.
1 bedroom flat for sale in Waddon House, Stafford Road, CR0 — £195,000 • 1 bed • 1 bath • 478 ft²
1 bedroom flat for sale in Stafford Road, Croydon, CR0 — £190,000 • 1 bed • 1 bath • 471 ft²
1 bedroom apartment for sale in 6 Purley Way, Croydon, London , CR0 — £270,000 • 1 bed • 1 bath
1 bedroom flat for sale in The Priory, Epsom Road, Croydon, CR0 — £245,000 • 1 bed • 1 bath • 501 ft²
1 bedroom apartment for sale in Stafford Road, Wallington, Croydon, CR0 — £200,000 • 1 bed • 1 bath • 556 ft²
1 bedroom flat for sale in Purley Way, CROYDON, Surrey, CR0 — £250,000 • 1 bed • 1 bath • 540 ft²






















































