**Standout Features:**
- Brand-new detached bungalow in Eastrea
- 4 spacious bedrooms, 2 with en suite bathrooms
- Open-plan living with high-quality fitted kitchen and family room
- Double garage with remote-operated doors
- Eco-friendly air source zoned underfloor heating
- Large garden with potential for landscaping
- Excellent broadband speed and strong mobile signal
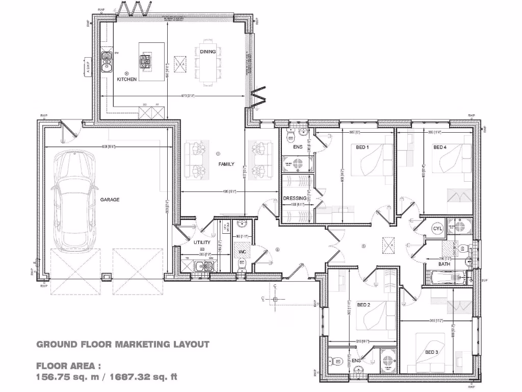
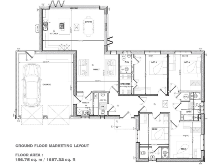
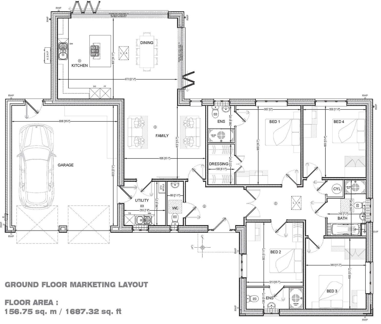
Discover the allure of rural living in this stunning brand-new detached bungalow at Poplar Gardens, nestled in the charming village of Eastrea. With its modern design and high-quality finishes, this 1,687 sq ft home offers a seamless blend of comfort and style. The heart of the home features a spacious open-plan kitchen and family room, perfect for entertaining and family gatherings, enhanced by bi-fold doors that create a harmonious connection to the outdoor space.
The property boasts four generously sized bedrooms, including a luxurious master suite with an en suite shower room and dressing area, alongside a second en suite for guests. With a double garage and ample driveway parking, convenience is at the forefront. The large plot presents an excellent opportunity for a landscaped garden retreat, further enhancing the property's appeal.
While the bungalow is part of a new housing development, it promises a peaceful lifestyle surrounded by picturesque arable land, bridleways, and ample community activities. Enjoy low crime rates and easy access to local amenities, including schools rated ‘Good’ by Ofsted. This exceptional property is ideal for families, first-time buyers, or as an investment opportunity with future flexibility for personal renovations. Act fast—properties like this in desirable rural settings don’t last long!
4 bedroom bungalow for sale in Coates Road, Eastrea, Cambs, PE7 — £499,000 • 4 bed • 3 bath • 1687 ft²
4 bedroom bungalow for sale in Coates Road, Eastrea, Cambs, PE7 — £475,000 • 4 bed • 2 bath • 1303 ft²
4 bedroom bungalow for sale in Coates Road, Eastrea, Cambs, PE7 — £475,000 • 4 bed • 3 bath • 1687 ft²
4 bedroom bungalow for sale in Coates Road, Eastrea, Cambs, PE7 — £475,000 • 4 bed • 2 bath • 1109 ft²
3 bedroom bungalow for sale in Poplar Gardens, Eastrea, Cambs, PE7 — £395,000 • 3 bed • 2 bath • 1009 ft²
3 bedroom bungalow for sale in Coates Road, Eastrea, Cambs, PE7 — £425,000 • 3 bed • 2 bath • 887 ft²














