Small two-bedroom flat with renovation potential close to shops and transport.
Central Chipping Norton location, ground-floor access
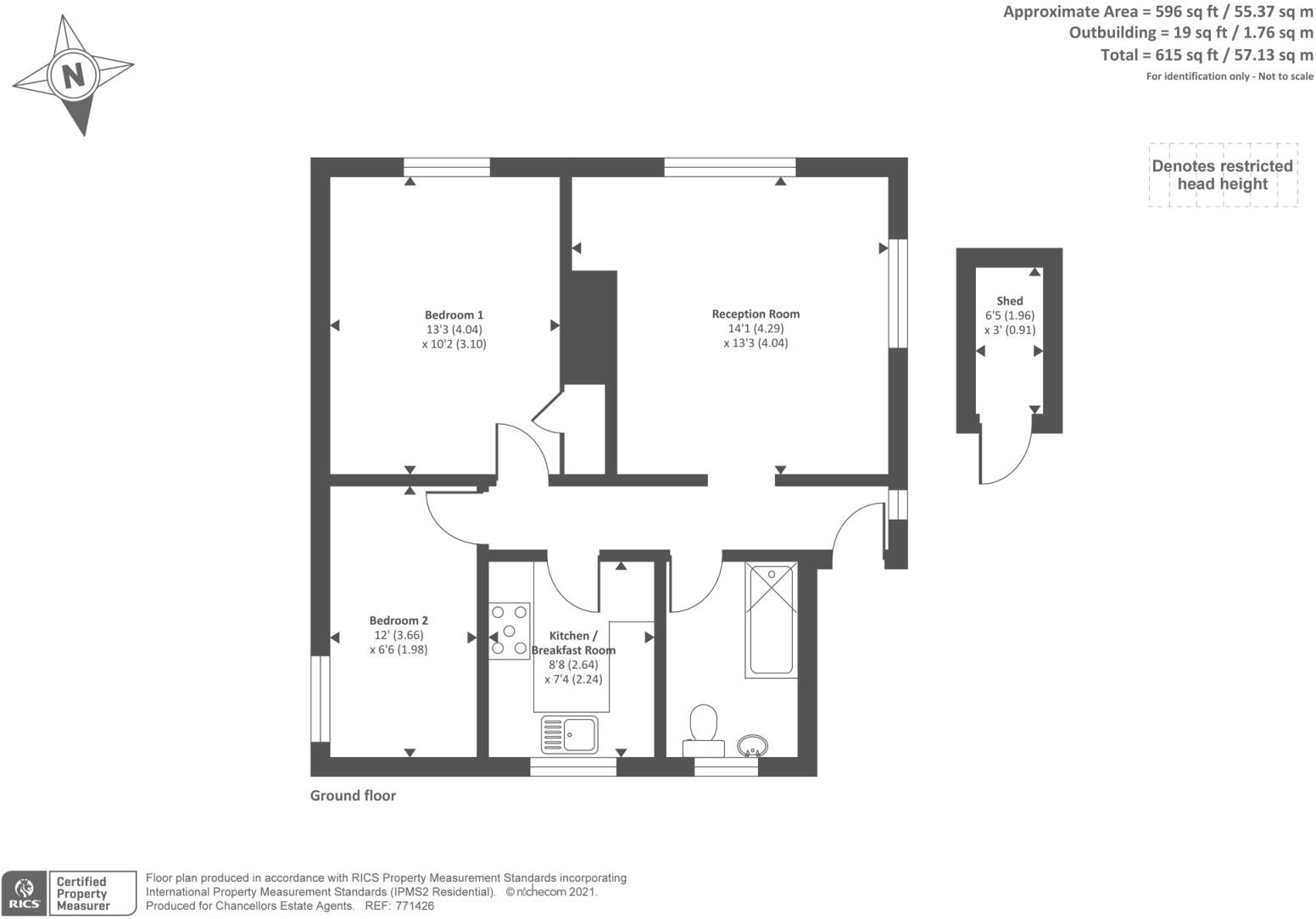
Set in the heart of Chipping Norton, this ground-floor two-bedroom flat offers immediate access to shops, cafes and local amenities. The compact layout (approx. 596 sq ft) includes a sitting/dining room, kitchen and bathroom, and benefits from gas central heating, double glazing and an EPC rating of C.
Ideal for a first-time buyer or small-scale investor, the property requires comprehensive updating throughout, giving you scope to add value through renovation. The communal block is mid-20th century brick with a communal entrance and straightforward maintenance; service charge is approximately £600 per year (below average).
Practicalities to note: the flat is leasehold, parking is on-street only, and the accommodation is small, so it suits buyers prioritising central location over space. With fast broadband, excellent mobile signal and good local schools, this is a convenient, town-centre base with clear potential once modernised.
2 bedroom flat for sale in Albion Street, Chipping Norton, OX7 — £230,000 • 2 bed • 1 bath • 767 ft²
2 bedroom flat for sale in Chipping Norton, Oxfordshire, OX7 — £200,000 • 2 bed • 2 bath • 768 ft²
2 bedroom flat for sale in Chipping Norton, Oxfordshire, OX7 — £190,000 • 2 bed • 1 bath • 771 ft²
2 bedroom flat for sale in Chipping Norton, Oxfordshire, OX7 — £225,000 • 2 bed • 1 bath • 473 ft²
2 bedroom flat for sale in Finsbury Place, Chipping Norton, OX7 — £189,950 • 2 bed • 1 bath • 667 ft²
2 bedroom flat for sale in The Green, Chipping Norton, OX7 — £145,000 • 2 bed • 1 bath • 679 ft²


























