Large flexible living with garage and excellent local schools.
Three double bedrooms across three levels, principal with en-suite
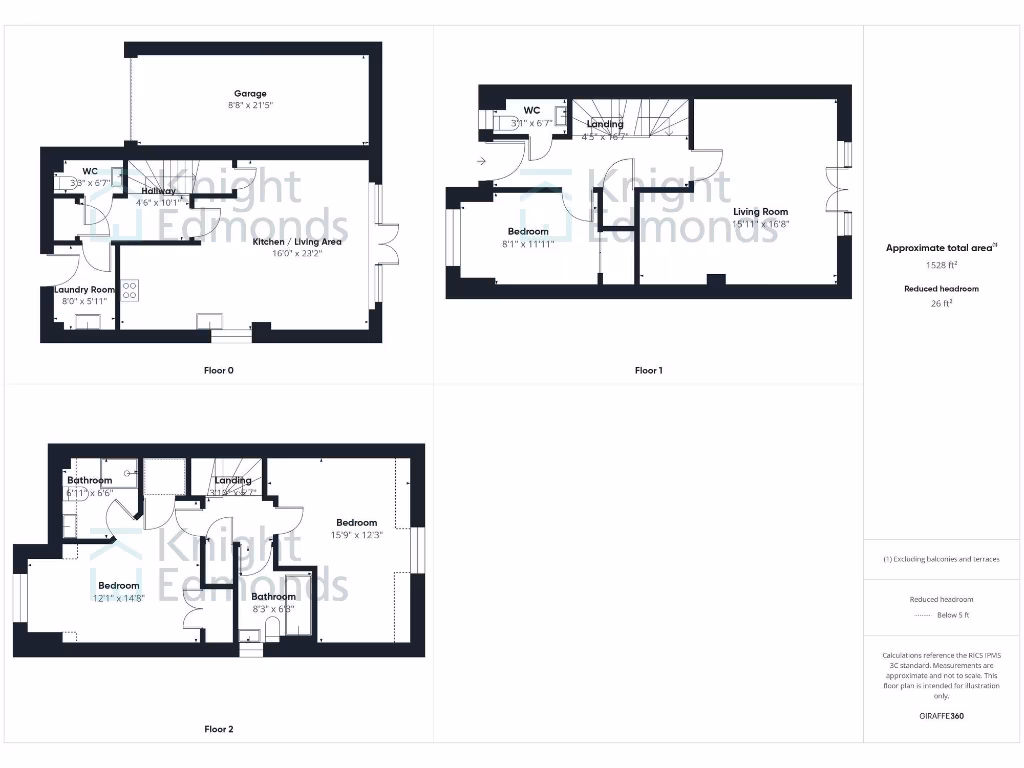
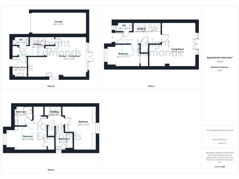
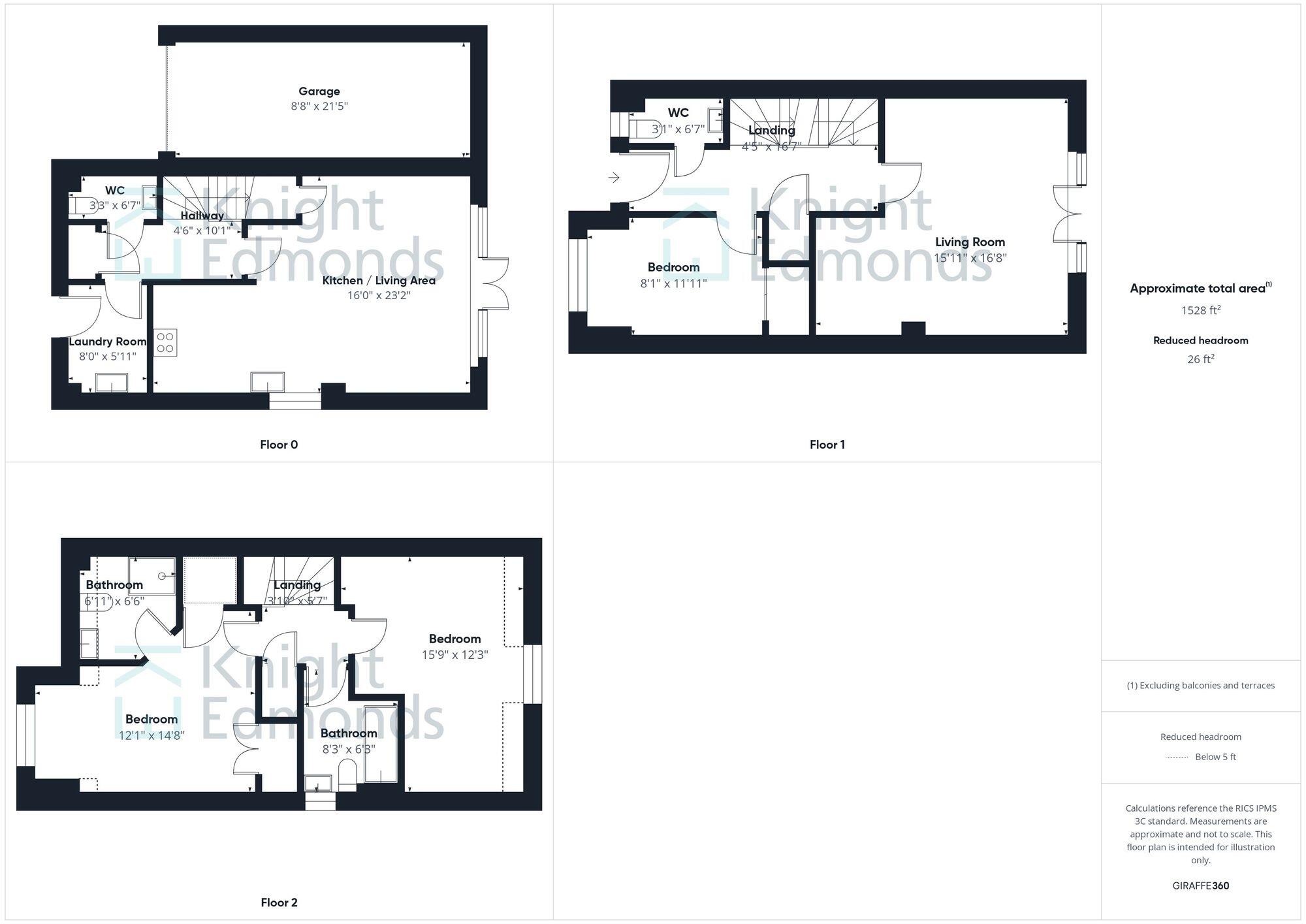
A spacious three-bedroom townhouse arranged over three floors, this well-presented home in Allington suits growing families who need flexible living space and strong local schools. The lower-ground open-plan kitchen/living area creates a sociable heart for everyday life and entertaining, while the rear living/dining room with Juliet balcony brings light and a view over the garden.
Practical benefits include a garage plus driveway parking, generous built-in storage throughout and two cloakrooms in addition to the family bathroom and principal en-suite. At about 1,528 sq ft the accommodation feels large for a town plot and the property sits at the end of a quiet cul-de-sac with easy access to transport links and local amenities.
There are some running costs and update points to note: the property carries a modest service charge (£660) and above-average council tax; the double glazing was installed before 2002 and the house was constructed in the late 1960s/early 1970s, so buyers should expect typical upkeep for that age and consider future improvement work. The rear garden is low-maintenance and relatively small, which suits buyers wanting minimal gardening but limits outdoor expansion.
Overall, this freehold townhouse combines roomy, flexible accommodation and convenient local services with clear potential to modernise further if desired. It will appeal to families seeking good school catchments and a calm residential setting with secure parking.
3 bedroom semi-detached house for sale in Ash Grove, Maidstone, Kent, ME16 — £525,000 • 3 bed • 1 bath • 1249 ft²
3 bedroom link detached house for sale in Larking Drive, Allington, Maidstone ME16 — £395,000 • 3 bed • 2 bath • 1008 ft²
3 bedroom detached house for sale in Adisham Drive, Maidstone, ME16 — £450,000 • 3 bed • 1 bath • 1031 ft²
3 bedroom detached house for sale in Castle Road, Allington, Maidstone ME16 — £450,000 • 3 bed • 1 bath • 856 ft²
4 bedroom end of terrace house for sale in Romney Road, Allington, Maidstone, Kent, ME16 — £450,000 • 4 bed • 2 bath • 934 ft²
4 bedroom detached house for sale in Wyatt Road, Allington, Maidstone, Kent, ME16 — £650,000 • 4 bed • 3 bath • 1744 ft²


























































































































































































