Family-sized three-bedroom home with generous garden and farmland views.
Quiet cul-de-sac with farmland views to the rear
Two double bedrooms with built-in wardrobes
Generous rear garden and paved patio area
Off-street parking for two plus single integral garage
Oil-fired central heating; oil tank and boiler in garage
Single family bathroom serving three bedrooms
Built early 1990s — may need modernisation or servicing
Average broadband; local area classified as relatively deprived
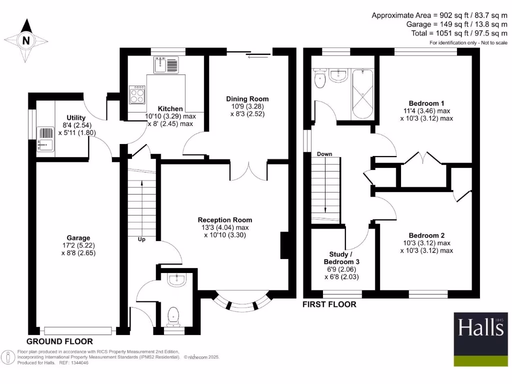
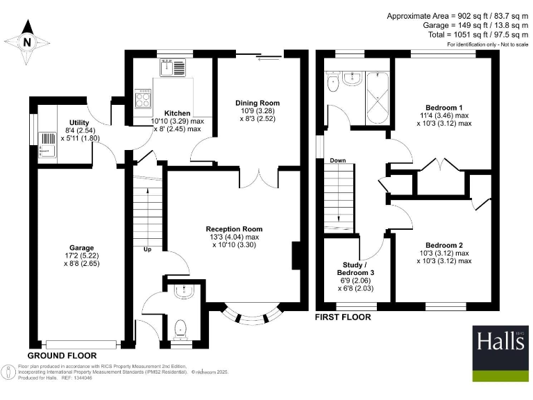
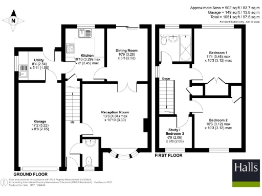
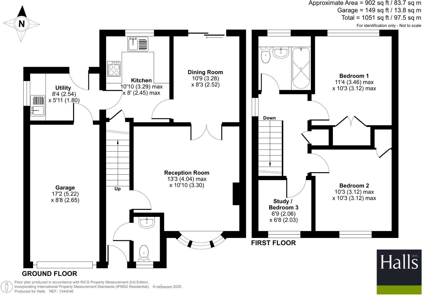
This three-bedroom detached house sits at the end of a quiet cul-de-sac in Forden, offering practical family accommodation and open farmland views to the rear. The layout includes a ground-floor WC, lounge, dining room, kitchen, utility and an integral single garage, plus off-street parking for two cars.
Two double bedrooms with built-in wardrobes and a single bedroom upstairs suit children or a home office; the family bathroom and oil-fired heating keep the arrangement straightforward and economical in footprint. The generous rear garden and paved patio give scope for outdoor play or gardening and back directly onto farmland, providing a peaceful, rural aspect.
The home was built in the early 1990s and has double glazing, cavity walls (assumed insulated) and standard fixtures. Notable considerations include oil heating (separate tank and boiler in garage), a single bathroom for three bedrooms, average broadband speeds, and the local area being classified as relatively deprived — useful for buyers to factor into long-term running costs and service access.
Overall, this property will suit a family seeking a quiet village lifestyle with outside space and parking, and buyers should be prepared for typical modernisation or servicing work for an early-1990s build (boiler, potential kitchen or bathroom updates).
2 bedroom semi-detached house for sale in Heritage Green, Forden, Welshpool, Powys, SY21 — £180,000 • 2 bed • 1 bath • 646 ft²
3 bedroom country house for sale in Forden, Welshpool, SY21 — £350,000 • 3 bed • 1 bath • 1521 ft²
4 bedroom house for sale in Naylor Fields, Arddleen, Llanymynech, SY22 — £380,000 • 4 bed • 3 bath • 1488 ft²
4 bedroom detached house for sale in Forden, Welshpool, SY21 — £445,000 • 4 bed • 3 bath • 2335 ft²
4 bedroom detached house for sale in Cae Melyn, Tregynon, Newtown, Powys, SY16 — £299,950 • 4 bed • 3 bath • 1039 ft²
3 bedroom end of terrace house for sale in Cae Camlad, Churchstoke, Montgomery, SY15 — £240,000 • 3 bed • 1 bath • 1214 ft²














































































