Single-floor living, south garden and workshop — chain-free and ready to view.
Detached single-storey bungalow on a decent plot
A detached, single-storey bungalow in central Totton offering easy, single-floor living and immediate availability (no forward chain). The brick-built home sits on a decent plot with a southerly rear garden, driveway parking and a substantial detached workshop — useful for hobbies, storage or conversion.
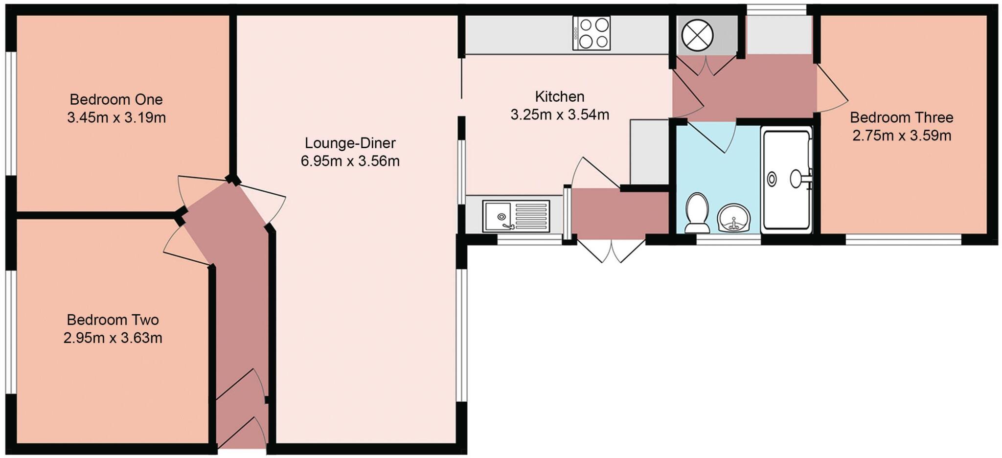
Inside are three double bedrooms, a large lounge-diner and a practical kitchen with adjacent utility and shower room. The layout is traditional and well suited to downsizers or small families wanting a low-maintenance home in a quiet, age-friendly neighbourhood close to shops, transport and several well-rated primary and secondary schools.
At about 732 sq ft the house is compact; there is only one shower room which may feel limited for three bedrooms. Some interior elements and the exterior appear dated and would benefit from modernisation to unlock further comfort or value. Freehold tenure, fast broadband and low local crime add practical appeal for a stress-free move.
3 bedroom detached bungalow for sale in Mayfield Avenue, Central Totton, SO40 — £425,000 • 3 bed • 1 bath • 897 ft²
3 bedroom detached bungalow for sale in Totton, SO40 — £415,000 • 3 bed • 1 bath • 726 ft²
3 bedroom detached bungalow for sale in Totton, SO40 — £435,000 • 3 bed • 2 bath • 1032 ft²
3 bedroom detached bungalow for sale in Totton, SO40 — £525,000 • 3 bed • 1 bath • 751 ft²
3 bedroom detached bungalow for sale in Kinross Road, Totton, Southampton, SO40 — £415,000 • 3 bed • 1 bath • 743 ft²
3 bedroom semi-detached bungalow for sale in Totton, SO40 — £350,000 • 3 bed • 1 bath • 848 ft²






























































































