Ready-income Victorian terrace with tenant in place and clear refurbishment potential.
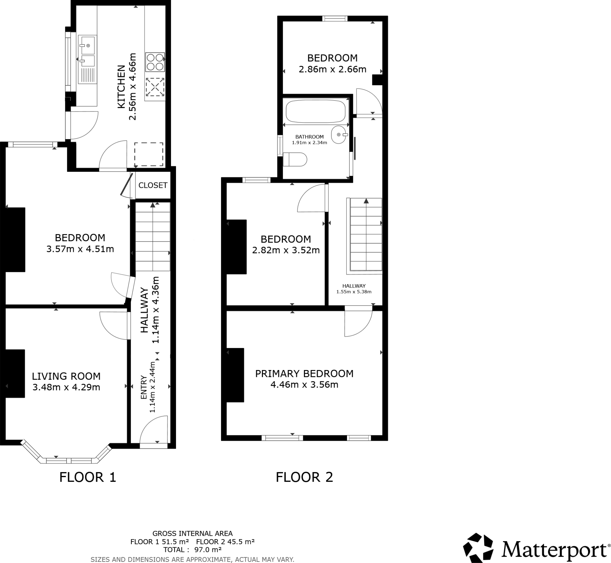
Three bedrooms with separate lounge and dining room
This Victorian mid-terrace on Westmoreland Street is presented primarily as a buy-to-let opportunity. It currently produces an annual gross income of £8,700 with a long-term tenant in situ, making it a ready-income asset for a landlord seeking immediate returns. The property is freehold and sits on a small urban plot typical of terraced stock in central Darlington.
The house offers three bedrooms, a separate lounge and dining room, and a well-equipped kitchen. Period features such as a bay window and plaster cornicing remain, though overall condition is described as average and likely to benefit from cosmetic updating. No internal photos or full service details are provided, so a physical inspection and review of the Let Property Pack are recommended before purchase.
Location factors support rental demand—good local amenities and transport links nearby—but there are material considerations: the neighbourhood is classified as very deprived with high local crime levels, and the plot is small with on-street parking only. These factors can affect tenant quality, void risk and re-letting values. Investors should allow for possible refurbishment costs and factor the buyers’ premium noted in the listing into acquisition budgets.
3 bedroom terraced house for sale in Henry Street, Darlington, DL1 — £112,500 • 3 bed • 2 bath • 957 ft²
3 bedroom terraced house for sale in Westmoreland Street, Darlington, DL3 — £90,000 • 3 bed • 1 bath • 789 ft²
2 bedroom terraced house for sale in Wolsingham Terrace, Darlington, DL1 — £75,000 • 2 bed • 1 bath • 786 ft²
3 bedroom terraced house for sale in Bedford Street, Darlington, DL1 — £96,500 • 3 bed • 1 bath • 707 ft²
3 bedroom terraced house for sale in Westmoreland Street, Darlington, DL3 — £120,000 • 3 bed • 2 bath • 1098 ft²
3 bedroom terraced house for sale in Eastmount Road, Darlington, DL1 — £100,000 • 3 bed • 1 bath • 920 ft²






























































