Large family house with garage, garden room and easy transport links.
Over 2,800 sq ft of flexible Victorian family accommodation
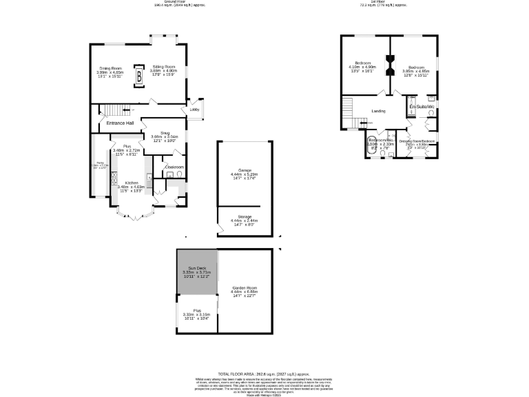
This spacious Victorian semi sits on Forest Avenue and offers more than 2,800 sq ft of flexible family living across multiple reception rooms and generous circulation space. Period detailing—high ceilings, coving, bay windows and fireplaces—combines with modern fittings in the extended kitchen, utility and a well-appointed principal en-suite. The house has a detached double garage, wide gravel driveway for multiple cars and a recently relandscaped rear garden with a new summer house and hot-tub deck.
The layout suits families who need formal and informal living zones: a double reception, snug, large kitchen/diner, pantry and utility on the ground floor, with three large bedrooms and a four-piece family bathroom upstairs. Vendors have historic permitted development approval to convert the attic into two additional double bedrooms and a bathroom, which increases long-term flexibility—buyers should verify current planning status before relying on it.
Outside, the property benefits from excellent parking, a detached double garage with electric roller door and a private landscaped garden with a versatile garden room currently used as a gym/study. Practical points: tenure is freehold, EPC is C, council tax is Band E (above average). Local amenities, good schools and Benton Metro are within walking distance, making the location particularly convenient for family life.
Overall this is a rare, well-presented period family home that blends original character with useful modern additions. It will appeal to buyers seeking generous interiors, parking and versatile outdoor space, but those wishing to proceed with roofspace conversion should confirm planning and building regulation details.
5 bedroom semi-detached house for sale in Northumberland Avenue, Forest Hall, North Tyneside, NE12 — £599,995 • 5 bed • 3 bath • 1885 ft²
4 bedroom semi-detached house for sale in Granville Drive, Newcastle upon Tyne, NE12 — £355,000 • 4 bed • 2 bath • 1621 ft²
4 bedroom semi-detached house for sale in Ravenswood Close, Forest Hall, Tyne and Wear, NE12 — £349,950 • 4 bed • 2 bath • 980 ft²
4 bedroom detached house for sale in Forest Hall Road, Newcastle Upon Tyne, NE12 — £450,000 • 4 bed • 2 bath • 1410 ft²
4 bedroom semi-detached house for sale in Weardale Avenue, Forest Hall, Newcastle upon Tyne, Tyne and Wear, NE12 7HX, NE12 — £395,000 • 4 bed • 2 bath • 1601 ft²
3 bedroom semi-detached house for sale in Ashleigh Grove, Forest Hall, Newcastle Upon Tyne, NE12 — £189,950 • 3 bed • 1 bath • 957 ft²










































































































