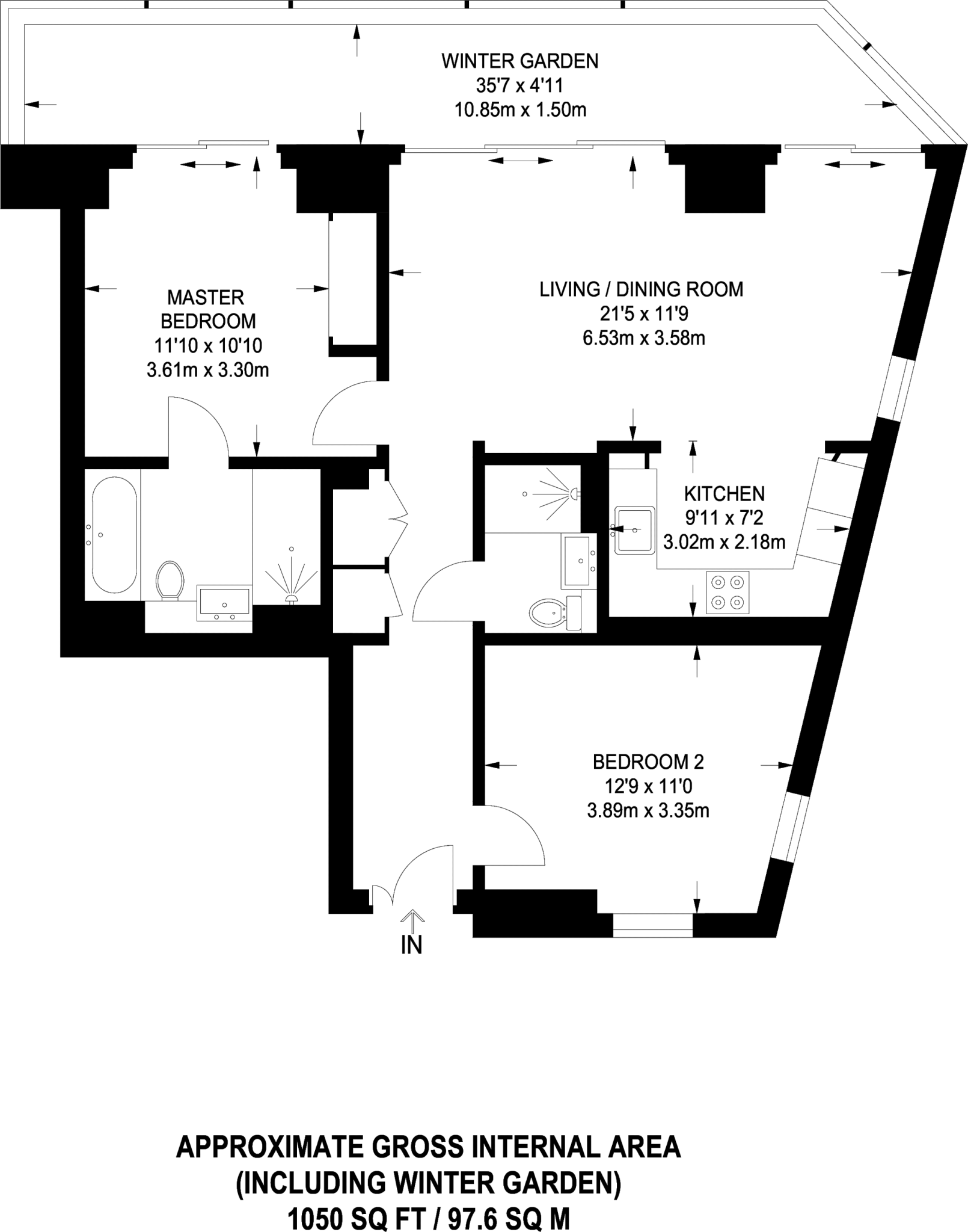
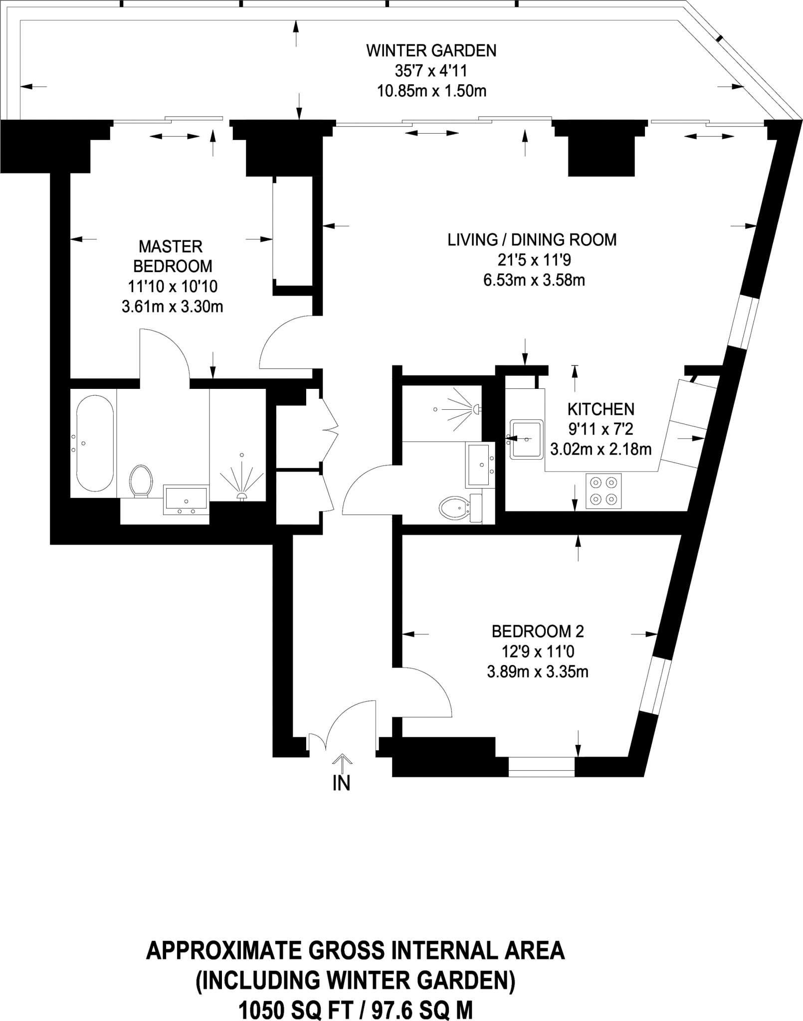
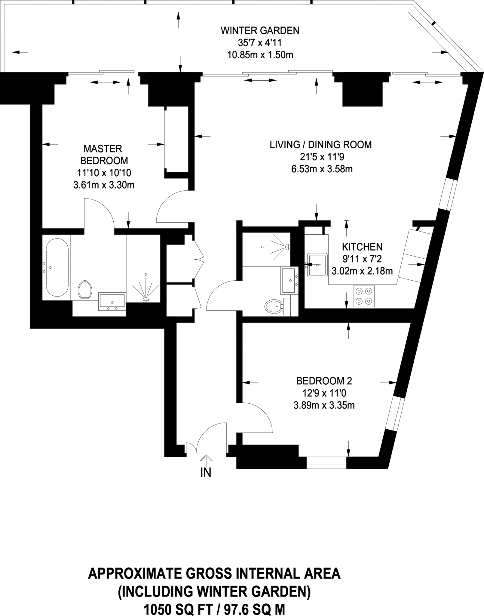
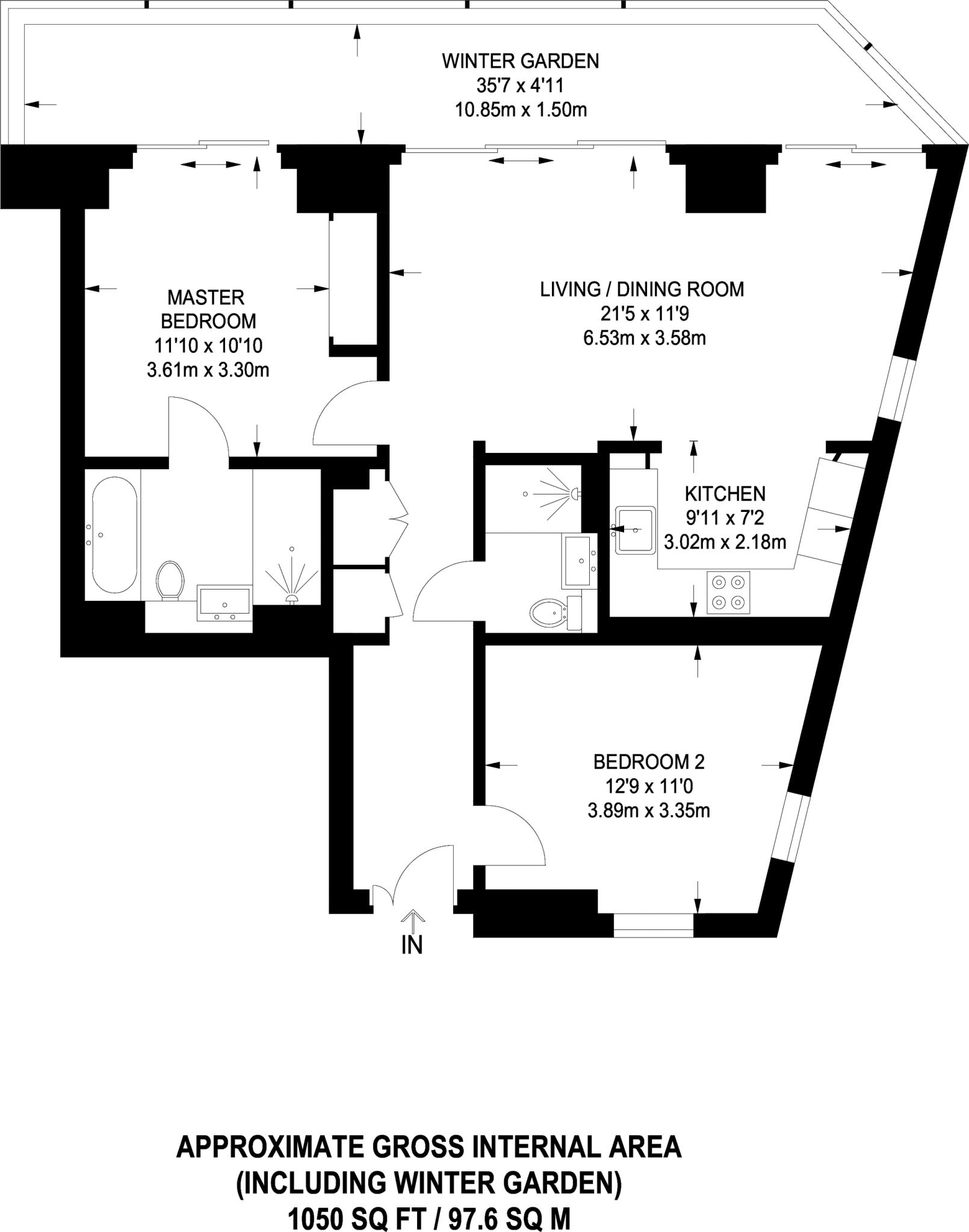
Spacious two-bedroom with winter garden and panoramic South Dock views.
Twelfth-floor two-bedroom with panoramic South Dock views
Set on the twelfth floor overlooking South Dock, this two-bedroom offers a generous layout, a large private winter garden and sweeping views across the water to Canary Wharf. The open-plan kitchen features stone worktops, integrated appliances, an induction hob and a wine fridge — ready for modern city living.
The principal bedroom includes fitted wardrobes and an en-suite; a second double bedroom and guest shower room complete the accommodation. High-spec comfort cooling and underfloor heating provide year-round comfort, and residents benefit from a gym, lounge and concierge. Excellent transport links (Jubilee, DLR and Elizabeth lines) place offices, shops and restaurants within an easy walk.
Practical points to note: the property is leasehold with a long lease (989 years) but an annual ground rent of £600 which is on the higher side. The area records above-average crime statistics; buyers should factor this into security and insurance considerations. Overall this is a polished, contemporary home suited to professional buyers or investors seeking strong rental appeal close to Canary Wharf.
2 bedroom apartment for sale in Dollar Bay Point, London, E14 — £770,000 • 2 bed • 2 bath • 804 ft²
2 bedroom flat for sale in Dollar Bay Place London E14 — £769,000 • 2 bed • 2 bath • 808 ft²
3 bedroom apartment for sale in 3 Dollar Bay Place, London, E14 — £1,000,000 • 3 bed • 2 bath • 1026 ft²
2 bedroom apartment for sale in Pan Peninsula Square, London, E14 — £640,000 • 2 bed • 2 bath • 803 ft²
2 bedroom flat for sale in Park Drive, Canary Wharf, London, E14 — £975,000 • 2 bed • 2 bath • 869 ft²
1 bedroom flat for sale in Dollar Bay Place, Dollar Bay Point, E14 — £698,000 • 1 bed • 1 bath • 568 ft²


































































































































































































































































































































































































































































































































































































































































































































