Chain free sale, ideal for renovation or investment
Requires full rewire and general modernisation throughout
Victorian character: original fireplaces and deep window sills
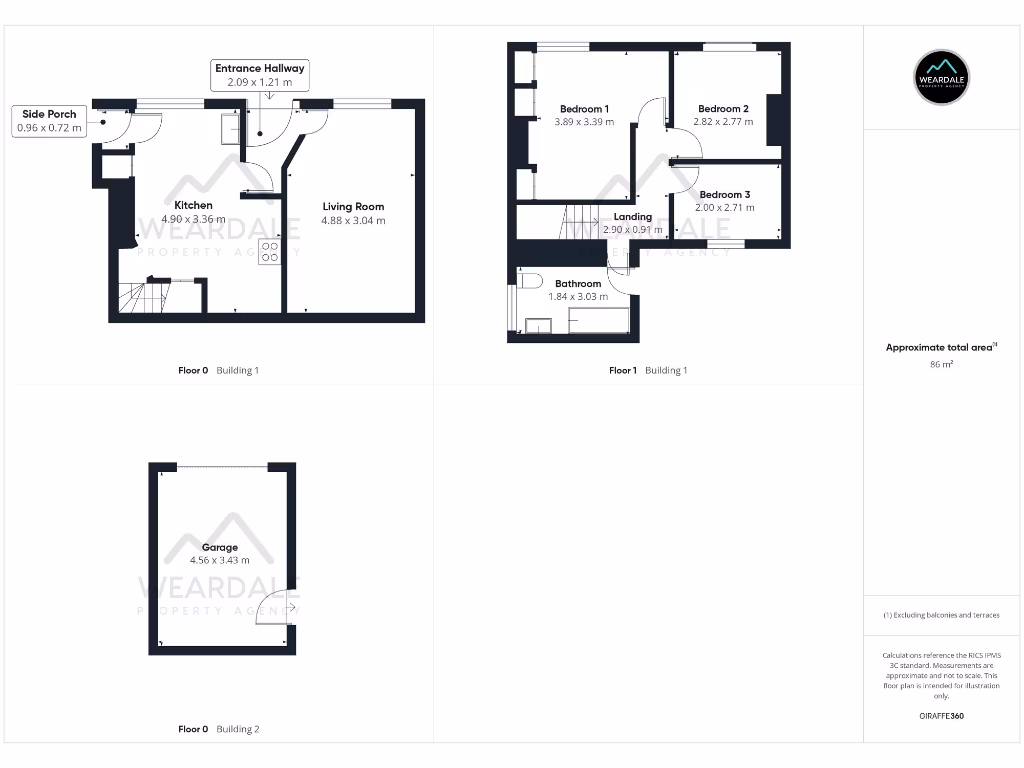
Small overall size (~755 sq ft); compact traditional layout
Garage with power and lighting plus two stone outbuildings
Front and rear gardens with West/East-facing hill views
Previously used as a shop—potential to reconfigure layout
EPC E; rural location with limited local services
Set in the quiet village of Cowshill, this 3-bedroom semi-detached home is a straightforward, chain-free renovation opportunity. The property retains period character—original fireplaces, deep window sills and stone construction—and sits on a small plot with both front and rear gardens offering hill views. A single garage (with power and lighting) and two stone outbuildings add useful storage and scope for conversion or a garden terrace.
Internally the layout is traditional and compact across approximately 755 sq ft: entrance hallway, living room, kitchen, side porch, three bedrooms, one bathroom and a boarded loft accessed from the landing. The house was formerly a shop, which explains some of the room arrangements and provides scope to reconfigure spaces to better suit modern living. The West-facing garden and small East rear garden provide outdoor options and a potential patio above the outbuilding roof.
Important practical points: the property needs full modernisation and a complete electrical rewire. The EPC is band E. Broadband speeds are average and the village is classified as a remoter rural community with limited local services, although there are basic amenities, a Good-rated primary school nearby and very low crime. For buyers comfortable with renovation—whether investors or owner-occupiers—this home offers character, scope to add value and peaceful countryside living at an accessible price.
2 bedroom semi-detached house for sale in Braeside, Cowshill, DL13 — £119,000 • 2 bed • 1 bath • 622 ft²
2 bedroom end of terrace house for sale in West Haswicks, Westgate, DL13 — £150,000 • 2 bed • 1 bath • 673 ft²
2 bedroom cottage for sale in North View, Ireshopeburn, DL13 — £155,000 • 2 bed • 1 bath • 915 ft²
2 bedroom semi-detached house for sale in Front Street, Westgate, DL13 — £99,000 • 2 bed • 1 bath • 730 ft²
3 bedroom detached house for sale in Wearhead, Bishop Auckland, DL13 — £360,000 • 3 bed • 1 bath • 1326 ft²
2 bedroom end of terrace house for sale in Longhorn Ends, Cowshill, DL13 — £190,000 • 2 bed • 1 bath • 1189 ft²






















































































































































