Four-bedroom semi with loft conversion and garage — renovation opportunity in sought-after Haydon Wick.
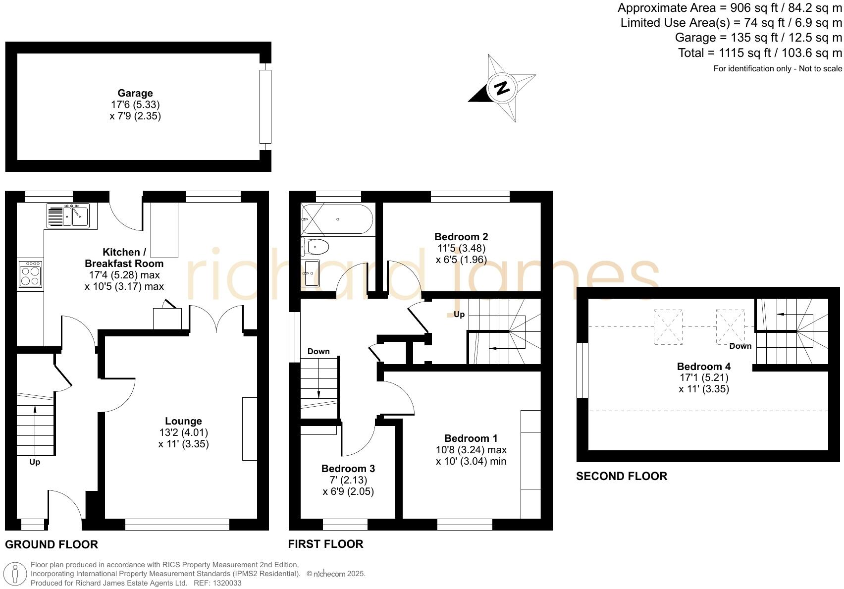
- Four bedrooms including a loft-conversion flexible room
- Single family bathroom; requires modernisation
- Kitchen is functional but dated; scope to refurbish
- Small plot with rear lawn and patio space
- Single garage for parking or storage
- Double glazing installed post-2002 and mains gas heating
- Needs renovation throughout to realise full value
- Very low local crime, fast broadband, excellent mobile signal
A four-bedroom semi-detached home in Haydon Wick offering spacious family living and clear scope for improvement. The ground floor flows from a welcoming hallway to a large living room and a dining area that connects to a functional but dated kitchen. Upstairs there are three bedrooms plus a loft-conversion room providing flexible extra space — useful as a bedroom, home office or playroom.
The property sits on a small plot with a rear garden laid to lawn and a patio, plus a single garage for parking or storage. Double glazing and mains gas central heating are already in place, and the house benefits from very low local crime, fast broadband and excellent mobile signal — practical advantages for modern family life.
This house is sold with renovation in mind: the kitchen and bathroom need modernising, and some general updating will unlock the property’s potential. For buyers seeking a turn-key move the level of work required may be significant; for investors or hands-on families it presents an opportunity to add value in a very affluent, sought-after suburb with good nearby schools.
Guide price advertised in marketing: £270,000–£280,000. Freehold tenure, no flood risk and a built form typical of late 1970s/early 1980s construction.
3 bedroom semi-detached house for sale in Thames Avenue, Haydon Wick, Swindon, SN25 — £335,000 • 3 bed • 1 bath • 990 ft²
3 bedroom detached house for sale in Sherford Road, Haydon Wick, Swindon, SN25 — £290,000 • 3 bed • 1 bath • 775 ft²
5 bedroom semi-detached house for sale in Mellow Ground, Swindon, SN25 — £400,000 • 5 bed • 3 bath • 1399 ft²
3 bedroom semi-detached house for sale in Tweed Close, Haydon Wick, Swindon, SN25 — £310,000 • 3 bed • 1 bath • 990 ft²
3 bedroom detached house for sale in Brookdene, Swindon, Wiltshire, SN25 — £329,995 • 3 bed • 1 bath • 1149 ft²
3 bedroom semi-detached house for sale in Calder Close - Greenmeadow, Swindon, SN25 — £340,000 • 3 bed • 1 bath • 1205 ft²














































































