Large period house with huge refurbishment potential and long rear garden, near top schools and stations..
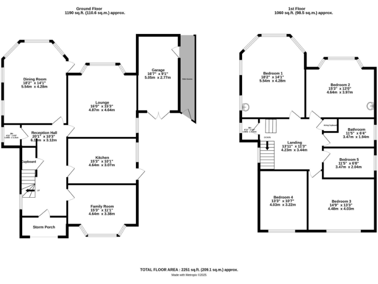
Five double bedrooms across spacious 2,250 sq ft
Set on a large plot in a popular Beckenham road, this Tudor‑style detached house offers genuine family space and long-term potential. The property retains original period features such as panelled walls, coving and ornate plasterwork, and provides exceptionally spacious living across approximately 2,250 sq ft including five well‑proportioned bedrooms.
The house requires full refurbishment throughout — it has one bathroom, dated kitchen areas with evidence of mould and water damage, and solid brick walls likely without insulation. There is scope to modernise, reconfigure and extend (subject to planning), making this a strong opportunity for a family wanting to create a bespoke home or for an investor prepared to renovate.
Practical benefits include a long rear garden (circa 120 ft), side garage and off‑street parking for at least two cars, double glazing (install date unknown), mains gas boiler and strong local broadband/mobile coverage. It is chain free and within walking distance of two mainline stations and several highly regarded schools, which suits family life and commuter convenience.
Buyers should allow for a comprehensive refurbishment budget — structural issues are not stated, but the property will need modern heating/insulation upgrades, full interior renewal and garden works. For those willing to invest, the combination of size, location, original character and planning potential presents a high upside to create a spacious, characterful family home.
5 bedroom detached house for sale in Scotts Lane, Bromley, Kent, BR2 — £1,650,000 • 5 bed • 3 bath • 2820 ft²
5 bedroom detached house for sale in Ashmere Avenue, Beckenham, BR3 — £1,650,000 • 5 bed • 3 bath • 2434 ft²
4 bedroom semi-detached house for sale in Reddons Road, Beckenham, BR3 — £1,125,000 • 4 bed • 2 bath • 2015 ft²
4 bedroom detached house for sale in Wickham Way, Beckenham, BR3 — £1,385,000 • 4 bed • 2 bath • 1924 ft²
5 bedroom semi-detached house for sale in Copers Cope Road, Beckenham, BR3 — £1,000,000 • 5 bed • 3 bath • 2500 ft²
5 bedroom house for sale in The Mead, Beckenham, BR3 — £1,250,000 • 5 bed • 2 bath • 2277 ft²


















































































