Compact, secure two-bedroom with parking and strong rental potential.
Chain free sale with 993-year lease and share of freehold
Allocated off-street parking and small private garden
Move-in ready with modern integrated kitchen
Estimated rental £1,125 pcm; potential 7.1% yield
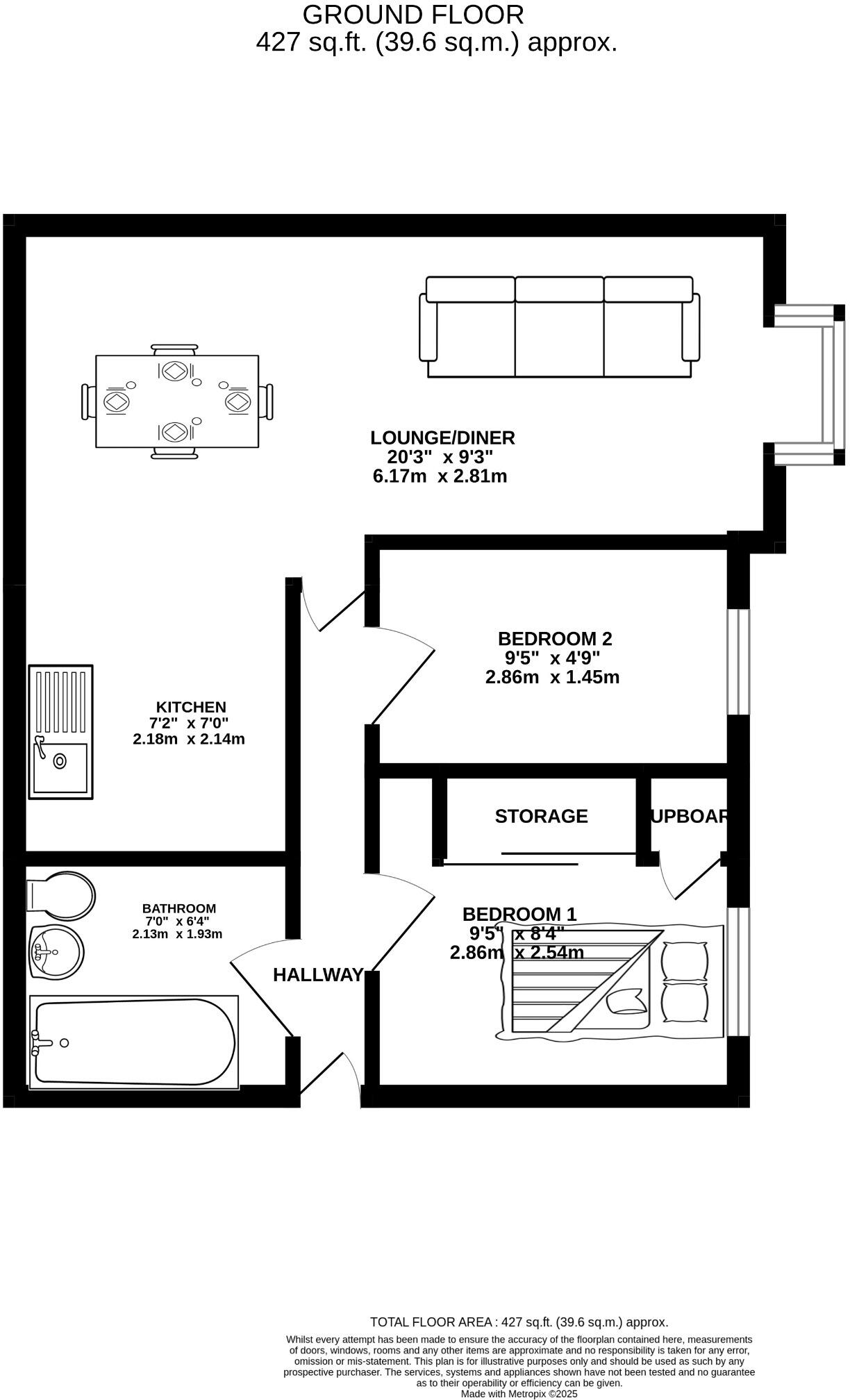
Compact overall size — 427 sq ft; limited storage
Service charge £850 pa (below average); ground rent included
Excellent location — short walk to station and town centre
Ground-floor position may reduce privacy compared with upper flats
This ground-floor two-bedroom apartment in central Royston offers a compact, move-in ready home with strong commuter links and clear investment potential. The 993-year lease and share of freehold provide long-term security; allocated off-street parking and a modest garden add practical appeal for everyday living.
The interior is bright with an open-plan living area, modern integrated kitchen and neutral finishes, making it straightforward to occupy or let immediately. At 427 sq ft the layout is efficiently arranged but naturally compact — ideal for a first-time buyer or a landlord targeting single professionals or couples.
Financially the property is attractive: chain-free sale, low annual service charge (£850), and an estimated rental income of £1,125 pcm (approx. 7.1% yield) if let at that level. The location is a major strength — short walk to Royston station, town centre amenities, local schools and open green space.
Notable considerations: the overall size is small and rooms are compact, so storage and entertaining space are limited. Being a ground-floor flat brings convenience but slightly reduced privacy compared with upper floors. The property appears well-presented but offers modest scope for significant enlargement without structural work.
2 bedroom apartment for sale in Green Street, Royston, Hertfordshire, SG8 — £225,000 • 2 bed • 1 bath • 481 ft²
2 bedroom apartment for sale in Shaftesbury Way, Royston, SG8 — £195,000 • 2 bed • 1 bath • 573 ft²
2 bedroom ground floor flat for sale in Precious Court, Melbourn Road, Royston, SG8 — £220,000 • 2 bed • 1 bath • 591 ft²
1 bedroom apartment for sale in Burns Road, Royston, Hertfordshire, SG8 — £140,000 • 1 bed • 1 bath • 412 ft²
2 bedroom apartment for sale in Minster Road, Royston, SG8 — £200,000 • 2 bed • 1 bath • 797 ft²
2 bedroom flat for sale in Stamford Close, Royston, SG8 — £240,000 • 2 bed • 2 bath • 564 ft²






































