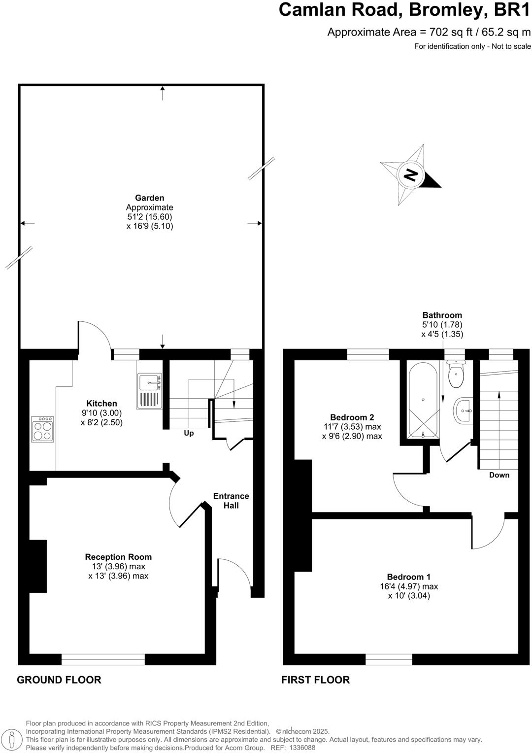
Chain-free two-bedroom mid-terrace with 50ft garden — perfect for first-time buyers or investors.
Chain free mid-terrace with freehold tenure
This chain-free mid-terrace offers two double bedrooms, a traditional layout and a 50ft private rear garden — a rare outdoor asset for its size. The solid brick construction and double glazing provide a sound base, while the property’s clear need for modernisation presents scope to add value.
Well placed for commuters, Grove Park station gives fast links to London Bridge (around 13 minutes) and other central terminals. Local amenities and several Good-rated primary and secondary schools are within easy reach, making the home suitable for first-time buyers, sharers or buy-to-let investors seeking rental demand.
Notable negatives are material: the house requires refurbishment throughout, walls appear uninsulated (typical of the build period), the EPC is D, and the area records above-average crime alongside high local deprivation. Buyers should factor renovation costs, possible improvements to insulation/heating, and safety considerations into their plans.
3 bedroom terraced house for sale in Shroffold Road, Bromley, BR1 — £375,000 • 3 bed • 1 bath • 817 ft²
3 bedroom end of terrace house for sale in Galahad Road, Bromley, BR1 — £415,000 • 3 bed • 1 bath • 801 ft²
2 bedroom terraced house for sale in Glenbow Road, Bromley, BR1 — £375,000 • 2 bed • 1 bath • 808 ft²
2 bedroom terraced house for sale in Ballamore Road, Bromley, BR1 — £425,000 • 2 bed • 1 bath • 646 ft²
2 bedroom end of terrace house for sale in Tristram Road, Bromley, BR1 — £385,000 • 2 bed • 1 bath • 654 ft²
2 bedroom end of terrace house for sale in Gareth Grove, Bromley, BR1 — £375,000 • 2 bed • 1 bath • 852 ft²


























































