Spacious family home with major extension potential near Richmond Park.
Large southwest-facing garden approx. 90ft x 50ft
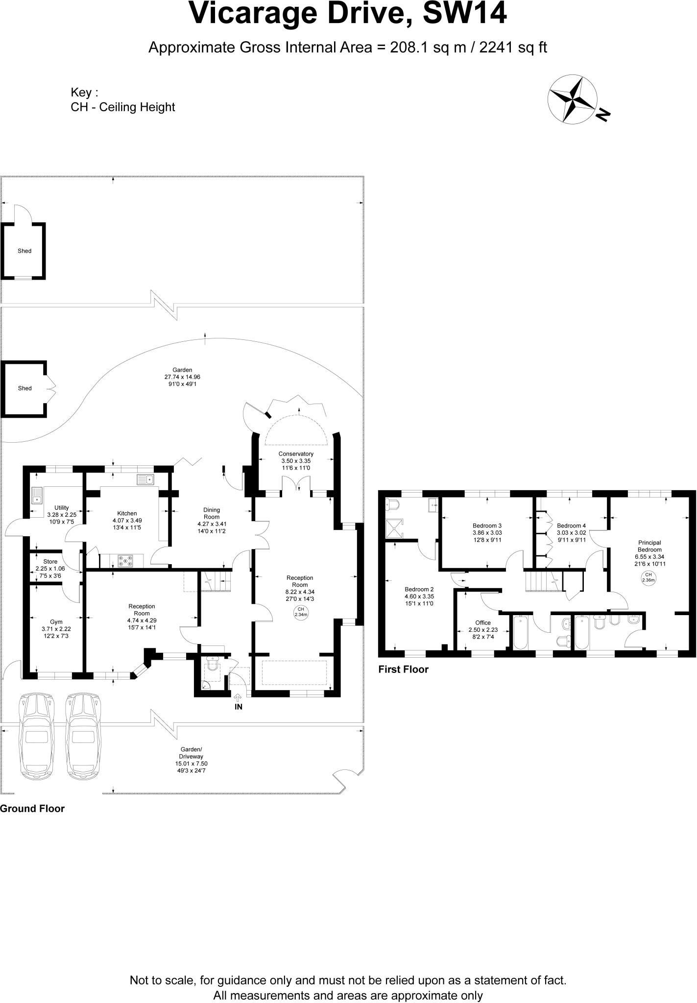
A substantial double-fronted detached house on Park Side of East Sheen, set on a large southwest-facing plot measuring approximately 90ft by 50ft. The house provides generous lateral living with five bedrooms, four receptions and three bathrooms across about 2,241 sq ft, plus off-street parking for two cars. Its size, orientation and plot create genuine scope for family life and outdoor living.
The property currently requires modernisation throughout and would benefit from renovation to update services and finishes. There is clear potential to extend further, subject to planning (STPP), and the accommodation could be enlarged to over 3,000 sq ft — appealing to buyers seeking extra space or a high-value refurbishment project.
Location is a major asset: moments from Richmond Park and Palewell Common, within easy reach of Mortlake Overground and local shops, cafes and supermarkets. Several well-regarded schools are within walking distance, making this house particularly convenient for families wanting strong local schooling options.
Practical details: freehold tenure, low local crime and fast broadband. Buyers should budget for refurbishment costs and confirm planning possibilities if pursuing an extension. Viewing is recommended to appreciate the garden, internal layout and the potential on offer.
5 bedroom semi-detached house for sale in East Sheen Avenue, East Sheen, London, SW14 — £2,500,000 • 5 bed • 2 bath • 2706 ft²
6 bedroom semi-detached house for sale in Richmond Park Road,
East Sheen, SW14 — £1,800,000 • 6 bed • 2 bath • 2050 ft²
5 bedroom detached house for sale in Stonehill Close, London, SW14 8RP, SW14 — £1,950,000 • 5 bed • 2 bath • 2123 ft²
5 bedroom semi-detached house for sale in East Sheen Avenue,
East Sheen, SW14 — £2,350,000 • 5 bed • 3 bath • 3048 ft²
6 bedroom detached house for sale in Fife Road, London, SW14 7EJ, SW14 — £6,500,000 • 6 bed • 6 bath • 6000 ft²
4 bedroom semi-detached house for sale in Parkfield Avenue, East Sheen, SW14 — £1,750,000 • 4 bed • 2 bath • 2396 ft²


















































































































