Auction-ready renovation with driveway, garden and clear uplift potential.
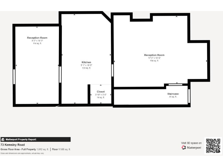
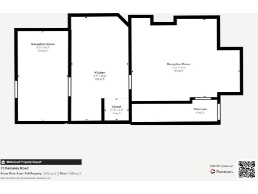
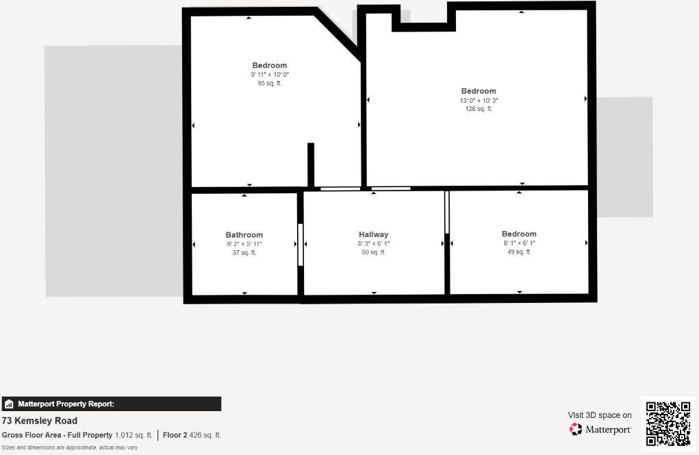
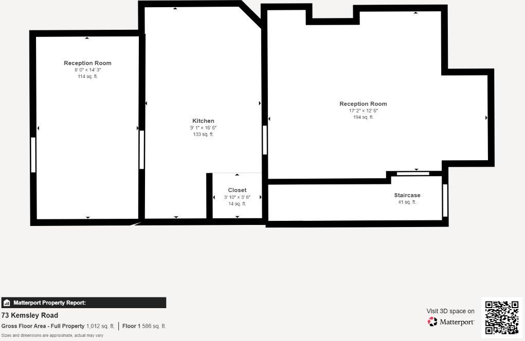
Three bedrooms, approx. 1,012 sq ft interior space
This three-bedroom end-of-terrace property on Kemsley Road is a vacant freehold being sold at public auction, offered with vacant possession on completion. Standing back from the road with a paved driveway, front garden and rear garden with outbuilding, the house provides an average-sized plot and about 1,012 sq ft of internal space. Key services are in place: mains gas central heating, a boiler with radiators and double glazing fitted post-2002. Energy Performance is D.
The house is a mid-20th-century build (c.1930–1949) and is in need of refurbishment throughout. Internal layout includes porch, hall, reception room, understairs cupboard, kitchen and rear lean-to on the ground floor, with three bedrooms and a bathroom upstairs. Walls are original solid brick and assumed uninsulated, so upgrading insulation and internal services should be planned. The property is offered as a renovation project with clear potential to add value for an investor or experienced DIY buyer.
Buyers should note this is a formal auction sale with an administration fee of £2,340 (inc VAT) payable on completion and a reserve price may apply; no pre-auction offers will be considered. The area has good local amenities, strong transport links and fast broadband, but crime levels are reported as high and some buyers may prefer additional security or refurbishment measures. Viewings are scheduled in advance and the auction will be live-streamed for remote bidding.
2 bedroom end of terrace house for sale in 78 Prince of Wales Lane, Kings Heath, Birmingham, B14 4JY, B14 — £95,000 • 2 bed • 1 bath • 909 ft²
3 bedroom terraced house for sale in 72 Nineacres Drive, Fordbridge, Birmingham, B37 5DD, B37 — £59,000 • 3 bed • 1 bath • 819 ft²
2 bedroom end of terrace house for sale in 4 Ivy Avenue, Off Runcorn Road, Balsall Heath, Birmingham, B12 8RL, B12 — £85,000 • 2 bed • 1 bath
3 bedroom terraced house for sale in 102 Edenhurst Road, Longbridge, Birmingham, B31 4PL, B31 — £10,000 • 3 bed • 1 bath • 778 ft²
3 bedroom semi-detached house for sale in 51 Tansley Road, Great Barr, Birmingham, B44 0DJ, B44 — £49,000 • 3 bed • 1 bath • 894 ft²
3 bedroom semi-detached house for sale in 163 Lindsworth Road, Kings Norton, Birmingham, B30 3SA, B30 — £49,000 • 3 bed • 1 bath • 1013 ft²


































































