Ready-to-move-in apartment with parking and a very long lease, ideal for first-time buyers.
Long lease (~993 years) and small ground rent (£136/year)
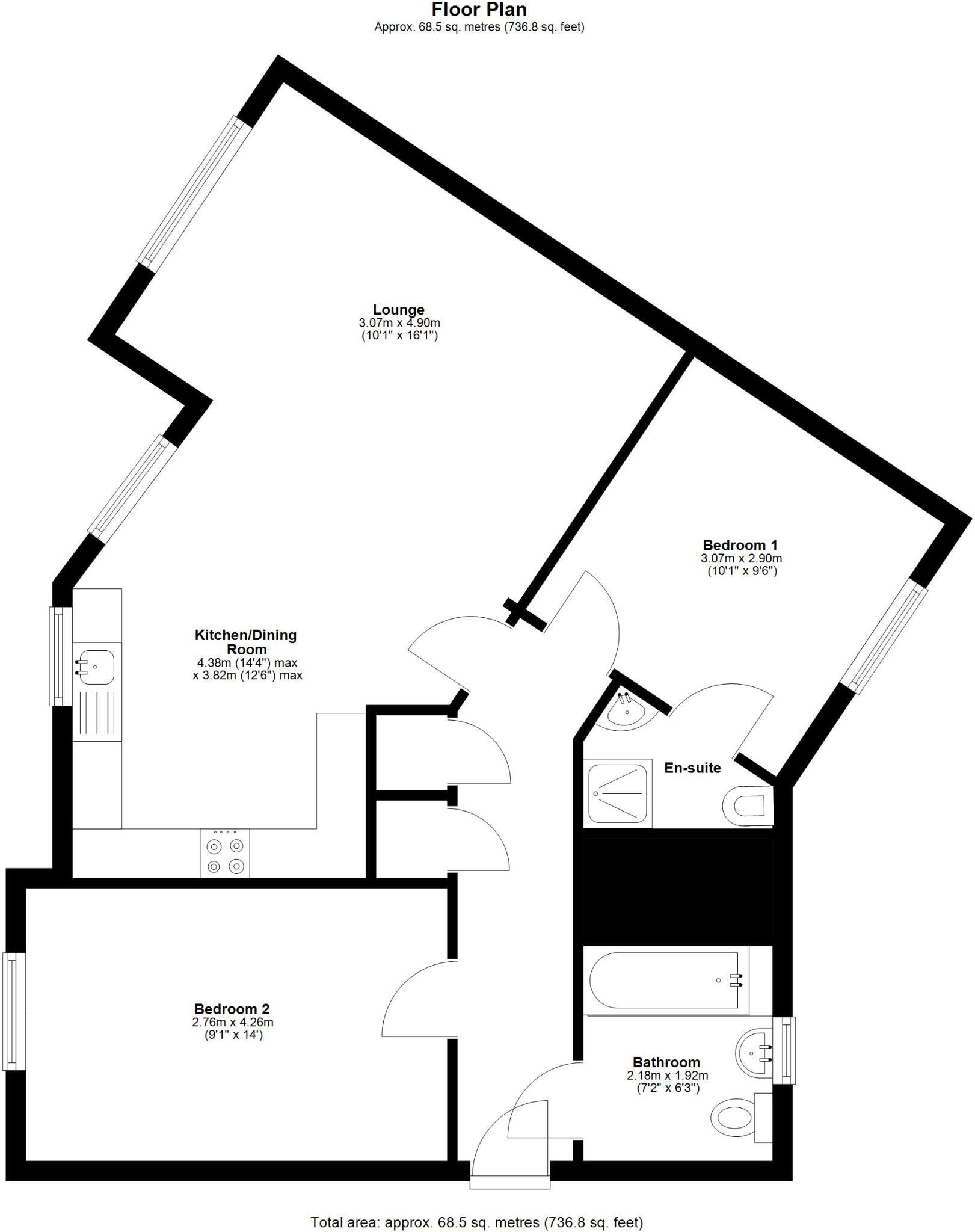
Open-plan living with modern integrated kitchen
Two double bedrooms; en-suite to master
Two allocated off-street parking spaces
Built 2019, well maintained condition
Gas central heating; secure entryphone system
Area classified as very deprived — may affect resale
Local crime level: average
Bright, modern two-bedroom apartment on the established Wellesley development, offered with a very long lease and two allocated parking spaces. The open-plan living area flows into a contemporary fitted kitchen with integrated appliances, making day-to-day living straightforward for a first-time buyer or couple. The master bedroom benefits from an en-suite shower and there is a family bathroom for guests and household use.
Constructed in 2019 and well maintained, the home has gas central heating via boiler and radiators and a secure entryphone system. At approximately 736 sq ft the accommodation is an average-sized apartment that feels spacious thanks to its layout and good natural light. Practical extras include two off-street parking spaces, fast broadband availability and an affordable council tax band.
Buyers should note the wider local context: the surrounding area is classified as very deprived which may influence long-term resale values, and local crime is average. The property is leasehold with a very long term remaining (around 993 years) and a small ground rent of £136 per year. Overall this is a low-maintenance, ready-to-move-in home suited to those wanting modern fittings, good transport links and nearby schools.
2 bedroom apartment for sale in Charteris Close, Wellesley, Aldershot, GU11 — £260,000 • 2 bed • 2 bath • 779 ft²
2 bedroom flat for sale in Charteris Close, Wellesley, Aldershot, Hampshire, GU11 — £250,000 • 2 bed • 1 bath • 498 ft²
2 bedroom flat for sale in Masterson Close, Wellesley, Aldershot, Hampshire, GU11 — £285,000 • 2 bed • 1 bath • 760 ft²
3 bedroom apartment for sale in Scarletts Road, Wellesley, ALDERSHOT, GU11 — £375,000 • 3 bed • 3 bath • 1300 ft²
1 bedroom flat for sale in Dempsey Road, Wellesley, Aldershot, Hampshire, GU11 — £230,000 • 1 bed • 1 bath • 547 ft²
2 bedroom apartment for sale in Charteris Close, Wellesley, Aldershot, Hampshire, GU11 — £280,000 • 2 bed • 2 bath • 732 ft²


































































































