Village semi with character, garden and parking — ideal for first-time buyers or small families..
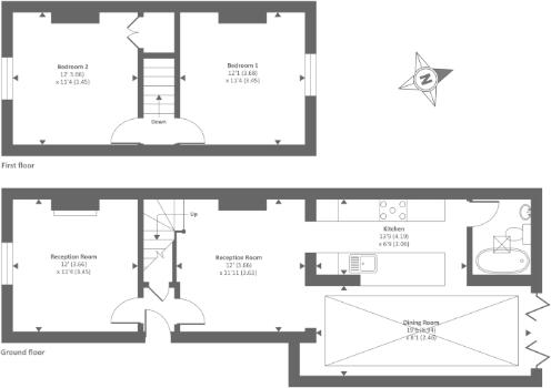
- Two double bedrooms, traditional period features
- Extended open-plan kitchen/dining with overhead lantern
- Decent rear garden, good scope for landscaping
- Gravel driveway provides off-street parking
- Freehold, mains gas boiler and radiators
- Solid brick walls; likely no cavity insulation
- Slow broadband speeds in the area
- Single bathroom located on ground floor
Centrally located in Lightwater Village, this Victorian semi offers character features and practical living over two floors. The front sitting room retains a fireplace and traditional feel while an extended open-plan kitchen/dining/reception with an overhead lantern provides bright, flexible entertaining space.
Two generous double bedrooms occupy the first floor and the property benefits from off-street parking, a decent rear garden and double glazing. Mains gas boiler and radiators provide conventional heating and the house is offered freehold, making it straightforward for buyers wanting full ownership.
The garden is a blank canvas for a keen gardener and the interior would reward selective updating — the property appears suitable for modernisation to improve energy efficiency and layout. Broadband speeds are reported as slow and walls are solid brick with assumed lack of built-in insulation, which may mean further works to reduce running costs.
For families or first-time buyers seeking village life, the location is strong: well-regarded primary and secondary schools nearby, very low crime, good mobile signal and easy road access to the M3/M25 and Heathrow. Commuter rail services are available from nearby stations into London.
3 bedroom semi-detached house for sale in Guildford Road, Lightwater, Surrey, GU18 — £575,000 • 3 bed • 1 bath • 1456 ft²
4 bedroom semi-detached house for sale in Lightwater, Surrey, GU18 — £550,000 • 4 bed • 2 bath • 1539 ft²
3 bedroom semi-detached house for sale in Christie Close, Lightwater, Surrey, GU18 — £438,500 • 3 bed • 1 bath • 899 ft²
2 bedroom semi-detached house for sale in Guildford Road, Lightwater, Surrey, GU18 — £425,000 • 2 bed • 1 bath • 863 ft²
3 bedroom semi-detached house for sale in Fox Covert, Lightwater, Surrey, GU18 — £450,000 • 3 bed • 1 bath • 1070 ft²
3 bedroom detached house for sale in Aplin Way, Lightwater, Surrey, GU18 — £650,000 • 3 bed • 2 bath • 1714 ft²


































































