Light-filled living with conservatory and driveway in a pleasant suburban setting.
Three-bedroom detached house with freehold tenure
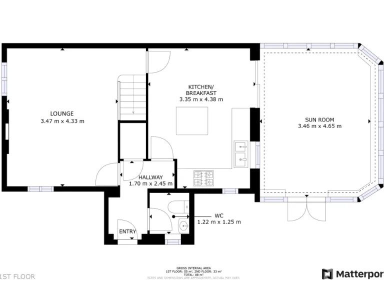
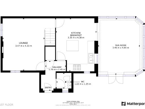
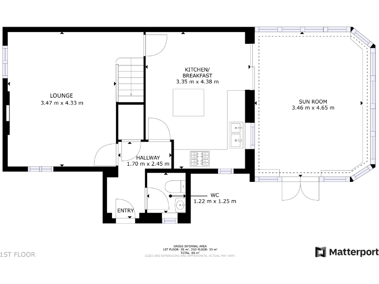
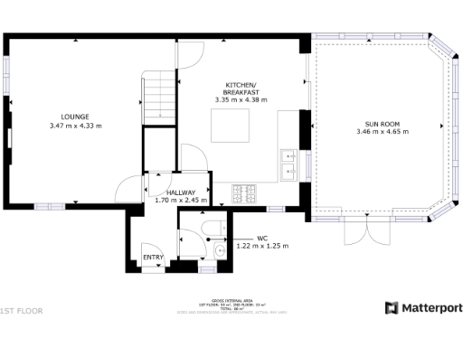
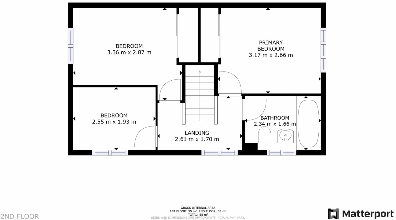
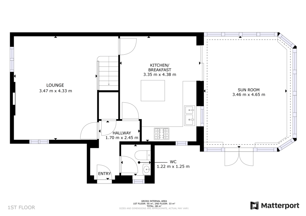
A practical three-bedroom detached family home on Edencroft Drive, offering light, flexible living across an average-sized 947 sq ft layout. The ground floor centres on a contemporary kitchen-diner that flows through to a spacious conservatory, creating a bright family hub for meals, homework and informal entertaining. A separate lounge and ground-floor cloakroom add everyday convenience.
Upstairs, three bedrooms and a family bathroom provide straightforward accommodation for a growing family. The property benefits from mains gas central heating, double glazing (install date unknown) and freehold tenure. Outside there is an enclosed rear garden, a small front garden and a driveway providing off-street parking for residents and visitors.
Practical local strengths include fast broadband, excellent mobile signal, low flood risk and a selection of good and outstanding local schools within easy reach. The area is described as very affluent and predominantly suburban, which should appeal to buyers prioritising neighbourhood quality and schooling.
Important points to note: the plot is modest in size, so garden landscaping options are limited compared with larger detached plots. The property dates from the late 1990s/early 2000s and, while presented as modern, it may benefit from cosmetic updating to match personal tastes. Double glazing installation date is not recorded.
3 bedroom detached house for sale in Thorpehall Road, Edenthorpe, Doncaster, South Yorkshire, DN3 — £210,000 • 3 bed • 2 bath • 729 ft²
3 bedroom detached house for sale in Meadow Walk, Edenthorpe, Doncaster, DN3 — £260,000 • 3 bed • 1 bath • 722 ft²
3 bedroom semi-detached house for sale in Locksley Avenue, Edenthorpe, Doncaster, DN3 — £185,000 • 3 bed • 1 bath • 900 ft²
3 bedroom semi-detached house for sale in Ridgewood Avenue, Doncaster, DN3 — £230,000 • 3 bed • 1 bath • 1033 ft²
4 bedroom detached house for sale in Athelstane Crescent, Edenthorpe, Doncaster, DN3 — £285,000 • 4 bed • 2 bath • 863 ft²
3 bedroom detached house for sale in Hartland Crescent, Edenthorpe, Doncaster, DN3 — £255,000 • 3 bed • 2 bath • 1244 ft²














































































