**Standout Features:**
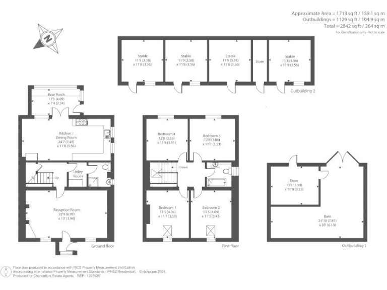
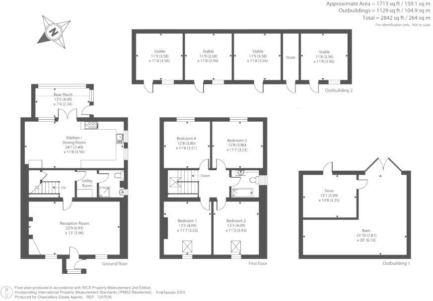
- Deceptively spacious extended cottage with 4 bedrooms
- Approximately 4 acres of land, including stables, outbuildings, and pastureland
- Characterful interiors with a multi-fuel stove and rustic design elements
- Modern kitchen with LPG Rangemaster cooker
- Detached property with low crime rates in a peaceful village setting
- Excellent mobile signal and fast broadband speeds
**Concerns:**
- Double glazing installed before 2002 may require upgrades
- Council tax classified as expensive
**Summary:**
Explore the charm of Pengraig, a spacious detached cottage offering a blend of rustic character and modern conveniences, nestled in a tranquil village setting. This four-bedroom property spans approximately 1713 square feet, complemented by 4 acres of land featuring stables and outbuildings—a haven for horse enthusiasts and those craving expansive outdoor space. The inviting kitchen, adorned with high-quality appliances, and the cozy living room with a multi-fuel stove set a perfect backdrop for family gatherings or peaceful retreats. With low crime rates and excellent connectivity, it’s an ideal choice for families or investors looking for potential rental opportunities. While the property boasts character and space, potential buyers should note the older double glazing and relatively expensive council tax. Don't miss this chance to embrace a luxurious country lifestyle with room for personalization and growth—properties like this don't stay on the market for long!
3 bedroom detached house for sale in Llanynis, Builth Wells, Powys, LD2 — £495,000 • 3 bed • 1 bath • 1494 ft²
4 bedroom semi-detached house for sale in Llanhamlach, Brecon, LD3 — £725,000 • 4 bed • 4 bath • 2889 ft²
5 bedroom semi-detached house for sale in Llanynis, Builth Wells, Powys, LD2 — £450,000 • 5 bed • 3 bath • 2350 ft²
3 bedroom detached house for sale in Abergwesyn, Llanwrtyd Wells, Powys, LD5 — £495,000 • 3 bed • 2 bath • 1819 ft²
5 bedroom house for sale in Lower Brechfa, Llandefalle, Brecon, Powys, LD3 — £800,000 • 5 bed • 2 bath • 2406 ft²
4 bedroom detached house for sale in Pentrefelin, Sennybridge, Brecon, Powys, LD3 — £400,000 • 4 bed • 2 bath • 1347 ft²


























































































































































