**Standout Features:**
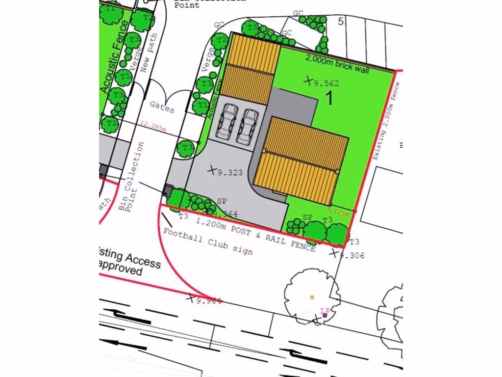
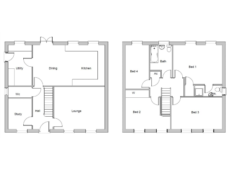
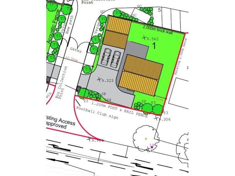
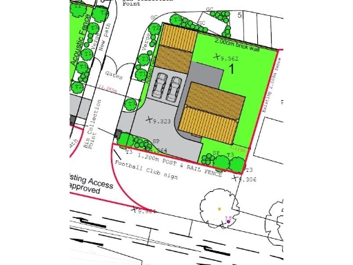
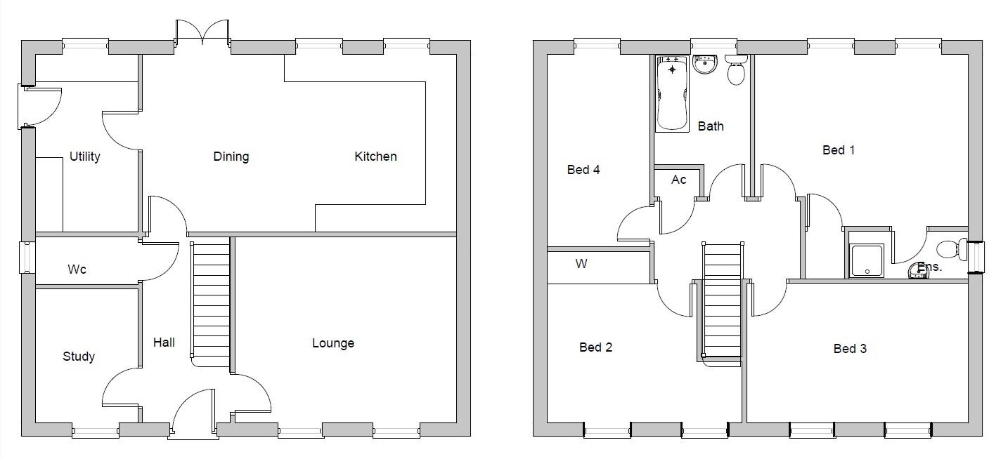
- Freehold residential building plot with planning permission for a 4-bedroom detached house and double garage (granted December 6, 2024).
- Convenient location near Fenland Stadium, local amenities, and bus stops.
- Generous plot size: approximately 20.7m wide x 22.4m depth.
- Low crime area in an older farming community.
- No upward chain provides immediate availability.
**Summary:**
This expansive freehold residential building plot presents an exceptional development opportunity for investors or families looking to create their dream home. With full planning permission for a stylish 4-bedroom detached house alongside a double garage, buyers can delve into a project with solid plans already in place. Ideally located next to Fenland Stadium and within easy reach of Wisbech's amenities, this plot is perfect for those seeking a blend of community spirit and convenience.
While there are currently no services connected to the plot, prospective purchasers will have the flexibility to plan their utilities as needed. The tranquil surroundings of this older farming community offer a low-crime environment ideal for families, making this an attractive long-term investment. Don’t miss out on this prime opportunity; plots like this are rare!
Plot for sale in PLOT 2 - Lynn Road, Walsoken, Wisbech, Cambridgeshire, PE14 7AL, PE14 — £120,000 • 3 bed • 1 bath • 4097 ft²
Land for sale in Lynn Road, Wisbech, Norfolk, PE14 7AL, PE14 — £105,000 • 1 bed • 1 bath • 9234 ft²
Plot for sale in PLOT 3 - Lynn Road, Walsoken, Wisbech, Cambridgeshire, PE14 7AL, PE14 — £120,000 • 3 bed • 1 bath • 4836 ft²
Land for sale in William Road, Wisbech, PE13 — £75,000 • 1 bed • 1 bath • 2773 ft²
Land for sale in Lancewood Gardens, Leverington, PE13 — £225,000 • 1 bed • 1 bath • 17728 ft²
Land for sale in Land At Rear Of Summerfield Close, Wisbech, PE13 — £35,000 • 1 bed • 1 bath


































