Modern, low-maintenance village home with large sunny garden.
No onward chain — ready for quick move-in
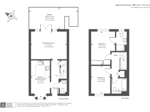
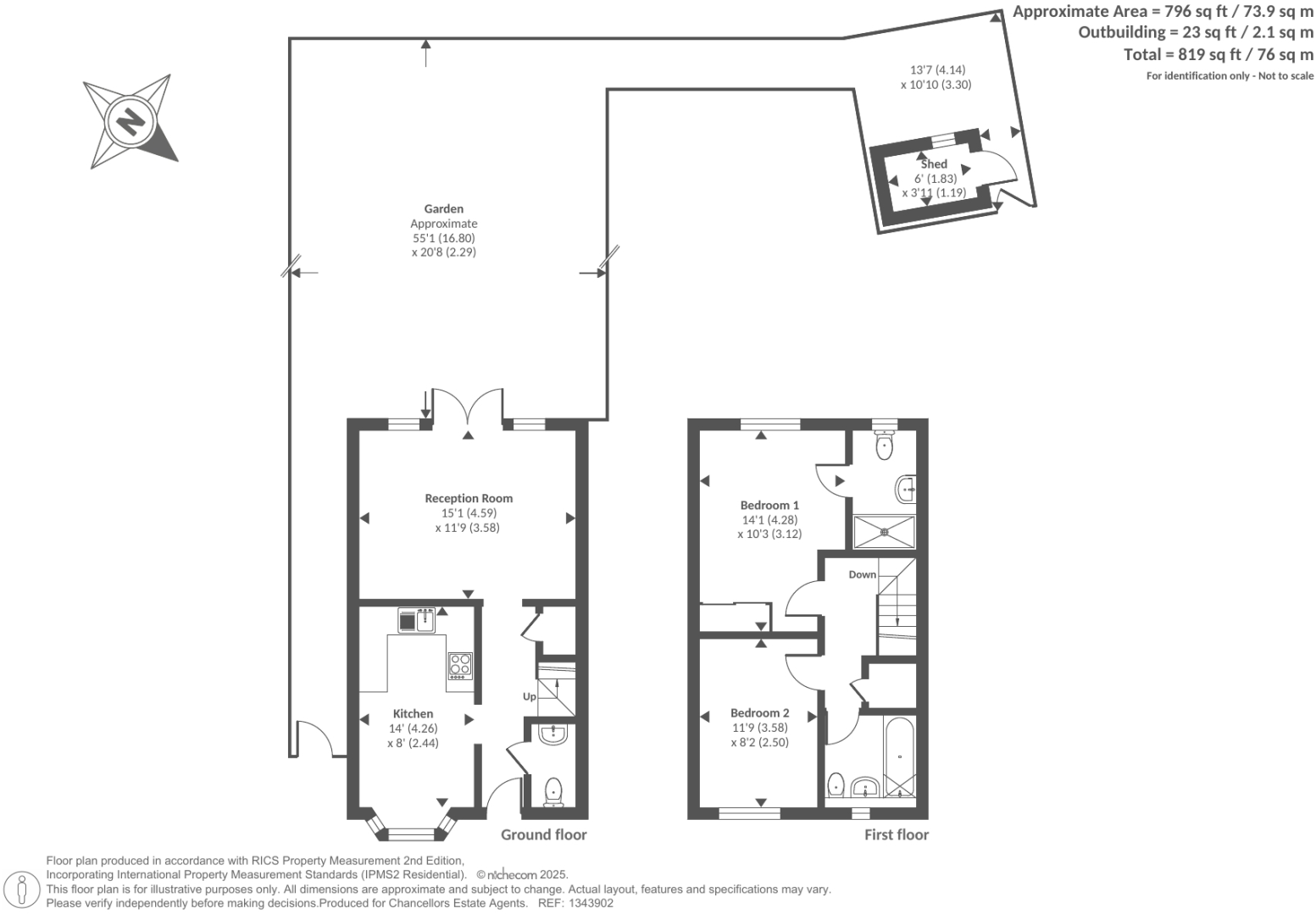
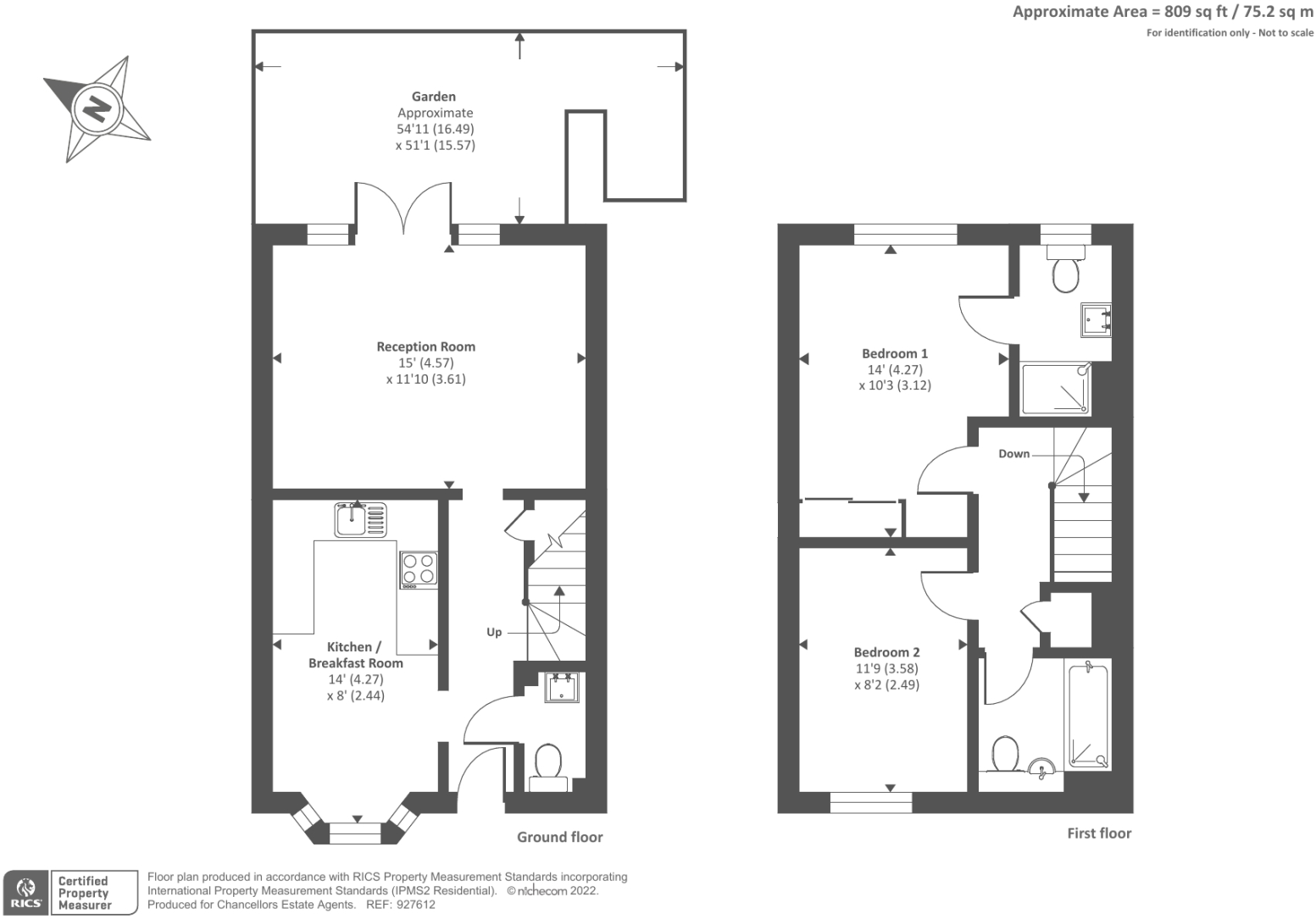
This two-bedroom semi-detached home in East Challow is offered with no onward chain and suits buyers seeking a low-hassle move. The ground floor presents a contemporary fitted kitchen with integrated appliances, a practical cloakroom, and a light living/dining room with French doors that open onto a private, south-facing garden.
Upstairs there are two double bedrooms, the principal benefitting from an ensuite, plus a modern family bathroom. The property’s layout is compact and efficient across its multi-storey plan, with around 819 sq ft of accommodation and straightforward mains gas heating via boiler and radiators.
Outside, driveway parking for multiple vehicles includes an EV charging point, and the enclosed rear garden is larger than average for the area — useful for outdoor entertaining or gardening. Local schools are rated Good and village amenities are close by, with easy road links to Wantage, Didcot, Swindon and Oxford.
Practical points: the house is of average overall size and standard thermal performance, set in an area with average crime levels. It will suit first-time buyers or small families wanting a modern, low-maintenance home in a prosperous, semi-rural village location.
3 bedroom semi-detached house for sale in Hill Close, East Challow, OX12 — £310,000 • 3 bed • 1 bath • 1380 ft²
3 bedroom semi-detached house for sale in East Challow, Wantage, OX12 — £425,000 • 3 bed • 2 bath • 1468 ft²
2 bedroom end of terrace house for sale in Falcon Drive, Didcot, OX11 — £300,000 • 2 bed • 1 bath • 682 ft²
2 bedroom semi-detached house for sale in Flowe Drive, Wantage, OX12 — £360,000 • 2 bed • 2 bath • 860 ft²
2 bedroom end of terrace house for sale in East Hanney, Oxfordshire, OX12 — £315,000 • 2 bed • 1 bath • 770 ft²
3 bedroom semi-detached house for sale in Villa Road, Chilton, OX11 — £375,000 • 3 bed • 2 bath • 768 ft²


































































































































