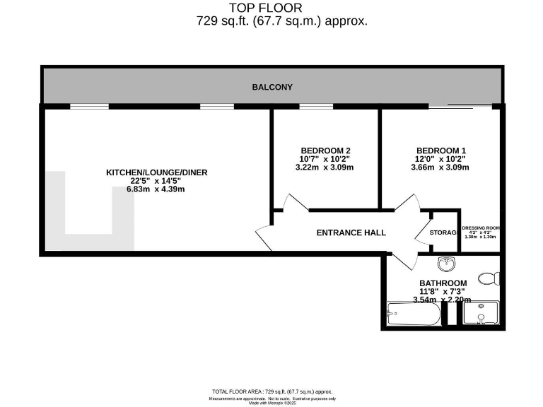
Two-bedroom city pad close to Brentwood station and High Street.
Open-plan kitchen, lounge and dining area, bright and sociable space
Private balcony off principal bedroom with town views
Allocated gated parking and secure entry system included
Approx. 729 sq ft; built circa 2003–2006, modern construction
Leasehold with 107 years remaining (confirm full lease terms)
Service charge approximately £2,500 per year — factor into costs
Ground rent circa £150 per year
Chain free sale, strong commuter links to Brentwood Station
This well-presented two-bedroom penthouse in Brunel House offers a practical, modern layout ideal for commuters and first-time buyers. The open-plan kitchen, lounge and dining area creates a bright, sociable space, while large windows and a private balcony deliver town views and good natural light. Allocated gated parking and a secure entry system add everyday convenience.
Finished to a contemporary standard and built in the 2003–2006 period, the apartment spans approximately 729 sq ft and includes a principal bedroom with dressing area and a second double bedroom. Broadband and mobile signals are strong, and the property sits within walking distance of Brentwood Station and the High Street amenities.
The flat is leasehold with 107 years remaining, a service charge around £2,500 pa and a ground rent of £150 pa. These running costs are notable and should be factored into affordability calculations. The property is offered chain free, with no recorded flood risk and lives within an affluent neighbourhood with average local crime levels.
Overall this is a low-maintenance, commuter-friendly apartment with clear appeal for buyers seeking modern living close to transport links. Buyers looking for long-term ownership should review the lease and annual service costs; those seeking renovation potential may find limited scope given the contemporary finish.
2 bedroom apartment for sale in Victoria Road, Warley, Brentwood, CM14 — £185,000 • 2 bed • 1 bath • 517 ft²
2 bedroom penthouse for sale in Eastfield Road, Brentwood, CM14 — £650,000 • 2 bed • 2 bath • 1221 ft²
2 bedroom apartment for sale in St. James Road, Brentwood, CM14 — £290,000 • 2 bed • 1 bath • 733 ft²
2 bedroom apartment for sale in Regent House, Hubert Road, Brentwood, CM14 — £300,000 • 2 bed • 1 bath • 560 ft²
2 bedroom apartment for sale in Rhapsody Crescent, Warley, Brentwood, CM14 — £650,000 • 2 bed • 2 bath • 1337 ft²
2 bedroom apartment for sale in Crown Street, Brentwood, CM14 — £300,000 • 2 bed • 1 bath • 899 ft²






































