Sought-after family location with garden and conversion potential.
Four bedrooms with master en-suite and family bathroom
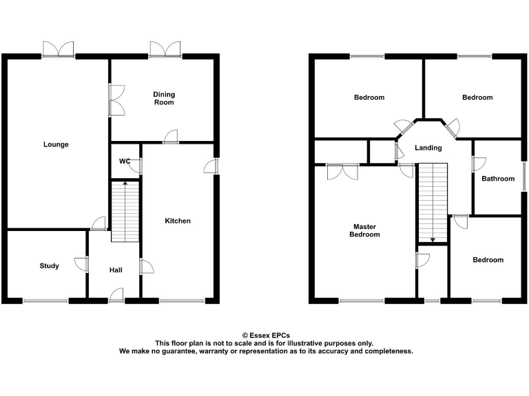
This well-presented four-bedroom detached home on the popular Kings Park development is aimed squarely at families seeking practical, ready-to-live-in accommodation. The ground floor offers flexible living with a dedicated study, separate dining room and a generous living room that both open to a private rear garden — ideal for children and everyday family life. The modern kitchen has integrated appliances and a door to the side for easy access to the garden and driveway.
Upstairs the principal bedroom includes an en-suite; three further bedrooms and a family bathroom provide comfortable sleeping space. The property benefits from recent double glazing, mains gas central heating and a decent plot with a largely un-overlooked rear garden. A tandem garage provides secure parking and storage and presents clear potential for conversion to extend living space subject to planning and building regs.
Practical considerations are stated plainly: the house is described as smaller in overall size relative to some detached family homes, council tax is above average, and any garage conversion would require the necessary permissions and budget. The location is a strong asset — short walk to Lyons Hall Primary and local amenities, with easy access to the A120 for commuting. For families wanting a comfortable, move-in-ready home with scope to adapt, this offers good long-term appeal.
4 bedroom detached house for sale in Hereford Drive, Braintree, CM7 — £475,000 • 4 bed • 2 bath • 1464 ft²
4 bedroom detached house for sale in Guinea Close, Braintree, CM7 — £475,000 • 4 bed • 3 bath • 1249 ft²
5 bedroom detached house for sale in Stafford Crescent, Braintree, CM7 — £499,950 • 5 bed • 3 bath
4 bedroom detached house for sale in Broadoaks Crescent, Braintree, CM7 — £575,000 • 4 bed • 3 bath • 1690 ft²
4 bedroom detached house for sale in Bridport Way, Braintree, CM7 — £470,000 • 4 bed • 3 bath • 958 ft²
5 bedroom detached house for sale in Stafford Crescent, Braintree, CM7 — £499,950 • 5 bed • 3 bath


















































































