**Standout Features:**
- Historic 5-bedroom detached barn built in 1802, with significant renovations completed.
- Eco-friendly upgrades with a new borehole and private water supply.
- Extensive garden area newly expanded for outdoor activities and family living.
- Approved planning permission for joining the annexe and connecting to the enlarged garage.
- Generous living space with contemporary open-plan features and traditional charm.
- Unique private river and waterfall providing tranquil outdoor space.
**Concerns:**
- Maintenance required for some areas due to age; electric storage heating may not appeal to all buyers.
- Currently on private sewage and water systems.
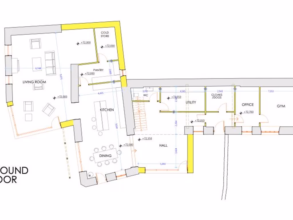
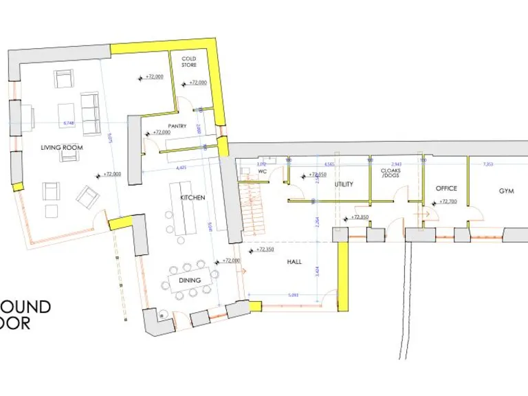
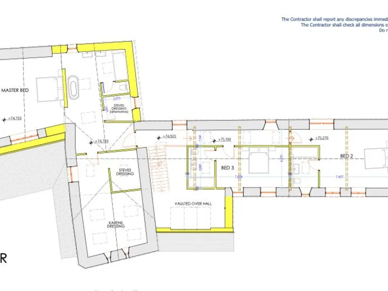
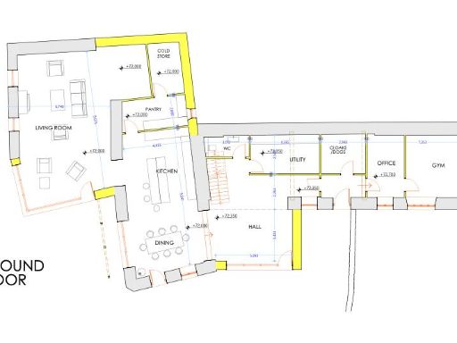
Nestled in the idyllic Winster Valley within the Lake District, The Old Mill presents a captivating blend of rustic charm and modern potential for families and investors alike. This spacious five-bedroom home, with its rich history dating back to the early 1800s, features original oak beams, magnificent stone walls, and an inviting open-plan living area perfect for entertaining. Nature lovers will appreciate the expansive 0.8-acre grounds, complete with a private river and waterfall, ideal for family gatherings or quiet retreats.
Exciting opportunities abound with approved planning permissions to integrate the annexe and expand the garage, allowing for flexible living arrangements suitable for multi-generational families or home offices. Recent eco-friendly enhancements, including a new borehole for sustainable water supply, further enhance the property’s appeal. While it may require some updates, the potential for customization is tremendous. Embrace a serene lifestyle in this picturesque setting while enjoying the convenience of nearby Bowness-on-Windermere; this unique home will not remain on the market for long!
6 bedroom detached house for sale in Belle Grove Estate, Watermillock, Ullswater, CA11 0LP, CA11 — £5,500,000 • 6 bed • 3 bath • 1665 ft²
5 bedroom country house for sale in Lowside Farm, Helton, Penrith, CA10 2QA, CA10 — £1,300,000 • 5 bed • 5 bath • 6314 ft²
4 bedroom detached house for sale in Gilpin Mill, Crook, Kendal, Cumbria LA8 8LN, LA8 — £1,625,000 • 4 bed • 4 bath • 2708 ft²
6 bedroom detached house for sale in Great Eskrigg End, Old Hutton, Kendal, LA8 0NU, LA8 — £925,000 • 6 bed • 1 bath • 8016 ft²
5 bedroom semi-detached house for sale in High Fold House, Troutbeck, Windermere, LA23 1PG, LA23 — £825,000 • 5 bed • 5 bath • 2919 ft²
3 bedroom country house for sale in Dockray, Penrith, CA11 — £625,000 • 3 bed • 2 bath • 2239 ft²


















































































































