Substantial five-bedroom detached house on a large plot in desirable Dedham village..
Five well-proportioned bedrooms, principal with en-suite
Large open-plan living/dining room with garden access
Separate study that could be a sixth bedroom
Detached double garage/cart lodge and large driveway
Generous rear garden; terrace; needs landscaping
Built before 1900, solid brick walls; likely no wall insulation
Two bathrooms only for five bedrooms; may need modernising
Council tax rated quite expensive
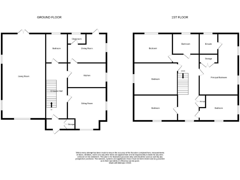
Set on the sought-after Heath in Dedham, this substantial five-bedroom detached house offers flexible family living across well-proportioned floors. The ground floor layout includes two reception rooms, a large open-plan living/dining space with garden access, a separate study (or potential sixth bedroom), kitchen and utility, plus a convenient cloakroom.
Upstairs provides five good-sized bedrooms, the principal with an en-suite, and a family bathroom serving the remainder. Practical features include a large private driveway, detached double garage/cart lodge and generous rear garden with a paved terrace — ideal for outdoor dining and family activities in summer.
The property sits in an affluent, low-crime village with excellent mobile signal and fast broadband, close to well-rated primary and secondary schools and local bus links. Its solid brick construction and traditional mid-20th-century appearance deliver period character and presence on a large plot.
Notable points to consider: the house was built before 1900 with solid brick walls and is assumed to have no cavity insulation, so buyers should factor potential thermal upgrades and associated costs. The garden requires some landscaping to reach its full potential, and there are only two bathrooms for five bedrooms. Council tax is described as quite expensive. These are straightforward trade-offs for the location, plot size and flexible accommodation on offer.
4 bedroom detached house for sale in The Heath, Dedham, Colchester, Essex, CO7 — £799,995 • 4 bed • 3 bath • 2034 ft²
4 bedroom detached house for sale in Long Road West, Dedham, Colchester, Essex, CO7 — £1,200,000 • 4 bed • 3 bath • 1012 ft²
4 bedroom detached house for sale in Dedham Road, Ardleigh, Colchester, CO7 — £900,000 • 4 bed • 3 bath • 3000 ft²
5 bedroom detached house for sale in Ardleigh Road, Dedham, Colchester, Essex, CO7 — £875,000 • 5 bed • 2 bath • 2760 ft²
4 bedroom house for sale in Saunders Field, Dedham, Colchester, Essex, CO7 — £775,000 • 4 bed • 3 bath • 1948 ft²
4 bedroom detached house for sale in Dedham Meade, Dedham, Colchester, Essex, CO7 — £475,000 • 4 bed • 2 bath • 1141 ft²














































































































