Compact historic flat with allocated parking and communal grounds ideal for first-time buyers.
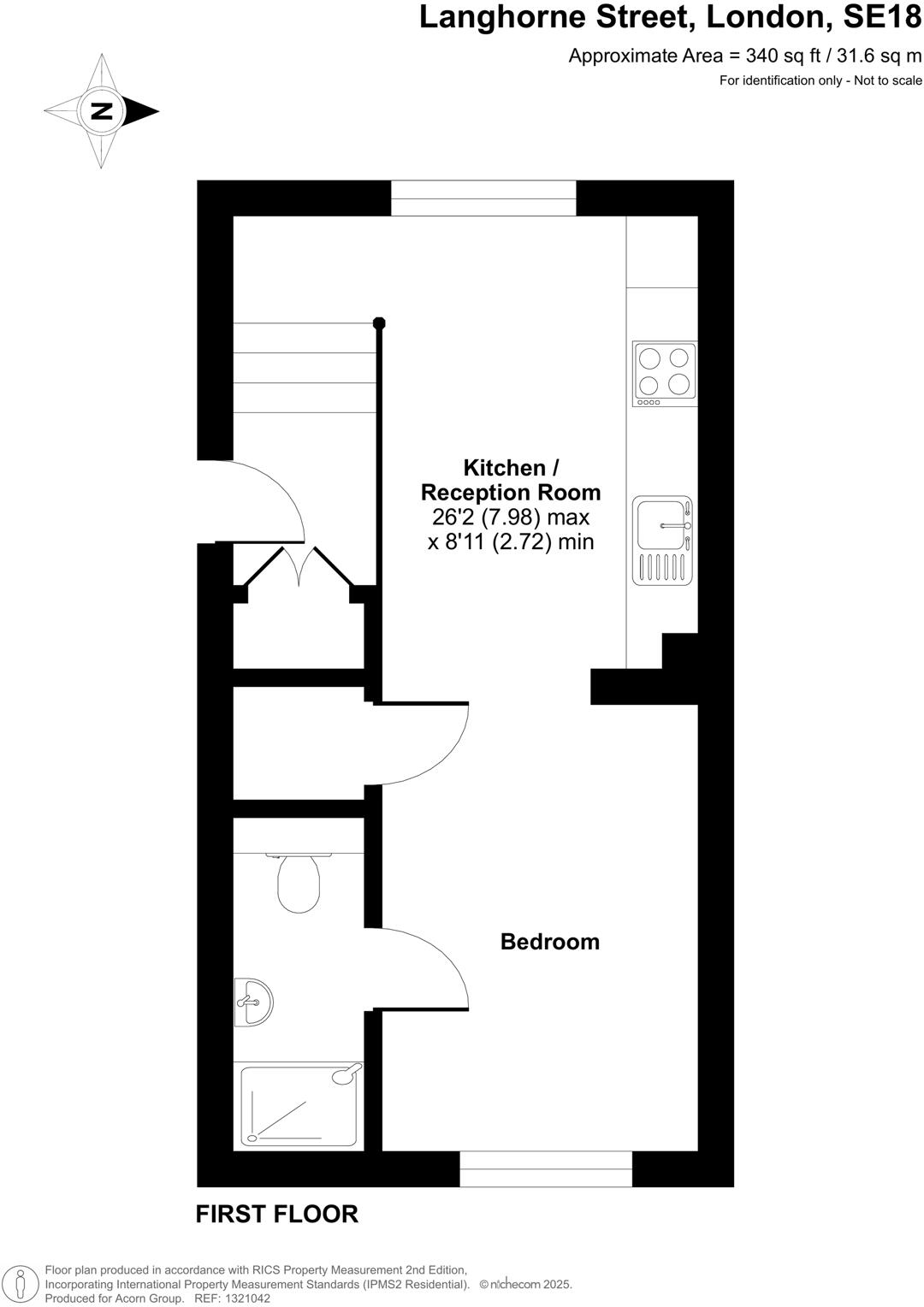
26ft open-plan living and kitchen area, circa 340 sq ft
Set within the historic Royal Military Academy, this compact studio occupies part of a Grade II listed building and retains striking Victorian character with high ceilings and period brickwork. The 26ft open-plan living area includes modern kitchen units and double-glazed sash windows, giving a bright, flexible space for living and sleeping in circa 340 sq ft.
Residents benefit from communal grounds with extensive lawns and walkways, allocated off-street parking, an entry-phone system and 24-hour concierge within the gated development. Transport links are strong: the Elizabeth Line, Woolwich Arsenal and DLR are all within reach, and broadband and mobile signals are excellent.
There are important practical considerations: the building’s listed status can restrict alterations and may complicate works. Service charges are approximately £3,200pa (about £300pcm) with a ground rent of £300pa. The apartment is small and better suited to single occupancy or as a rental investment rather than a family home.
With 109 years remaining on the lease and being sold chain free, the flat will appeal to first-time buyers seeking character near good rail links, and to investors looking for a straightforward let in a landmark setting. Prospective purchasers should budget for ongoing service costs and any conservation-led maintenance.
1 bedroom flat for sale in Greenhill Terrace, Woolwich, SE18 — £225,000 • 1 bed • 1 bath • 573 ft²
1 bedroom apartment for sale in Langhorne Street, LONDON, SE18 — £310,000 • 1 bed • 1 bath • 552 ft²
2 bedroom apartment for sale in Parade Ground Path, Woolwich, London, SE18 — £575,000 • 2 bed • 2 bath • 1100 ft²
1 bedroom flat for sale in Langhorne Street, Woolwich Common, SE18 — £240,000 • 1 bed • 1 bath • 427 ft²
2 bedroom flat for sale in Ashmore Road, Woolwich, SE18 — £325,000 • 2 bed • 2 bath • 763 ft²
Studio flat for sale in Major Draper Street, Royal Arsenal, Woolwich, SE18 — £250,000 • 1 bed • 1 bath • 342 ft²














































