Contemporary family home with garden, garage and new-build warranty.
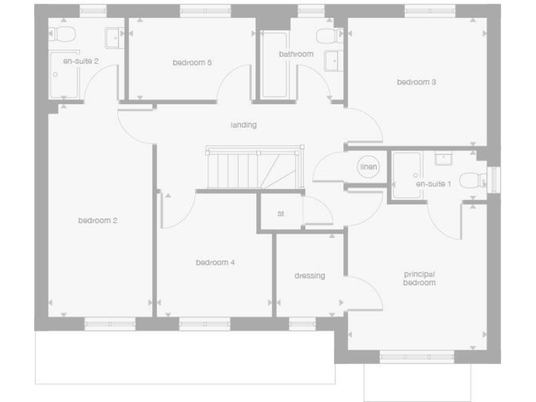
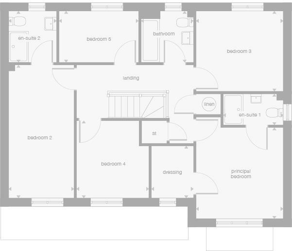
• Five bedrooms, two en-suites and principal with dressing area
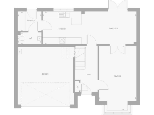
• Open-plan kitchen/breakfast and lounge with French doors
• Separate laundry room plus downstairs WC for practical living
• Double garage and off-street parking; solar panels installed
• 10-year NHBC new-build warranty; freehold tenure stated
• Very slow broadband speeds — poor for heavy remote working
• Modest internal area (~1,168 sqft) for a five-bedroom house
• Located in a deprived area; council tax described as quite expensive
This contemporary five-bedroom detached house combines adaptable family living with modern fixtures and a 10-year NHBC warranty. The ground floor opens from a feature square bay through a generous open-plan kitchen/breakfast and lounge, finished with French doors leading to a private garden — an easy layout for daily family life and entertaining. Practical additions include a separate laundry room, downstairs WC and double garage for storage and parking.
Upstairs offers a principal bedroom with walk-in dressing area and en-suite, a second bedroom with en-suite, three further bedrooms and a family bathroom. One bedroom is currently arranged as a flexible home office, offering space for remote working or study. Solar panels contribute to energy efficiency, and double glazing and contemporary finishes give a modern feel throughout.
Buyers should note some important local and practical facts: the property is in an area classed as deprived and broadband speeds are very slow, which could affect heavy online users. Council tax is described as quite expensive. The overall internal area (approx. 1,168 sq ft) is modest for a five-bedroom home, so room sizes and circulation are compact compared with larger family houses.
This is a new-build freehold with a modest annual service charge (approx. £125.68) and comes with a 10-year warranty — attractive for purchasers wanting modern construction with warranty protection. The property suits a family seeking contemporary, flexible accommodation with private outdoor space, or anyone prioritising move-in-ready new-build benefits rather than extensive renovation.
5 bedroom detached house for sale in Off Turnhouse Road,
Edinburgh,
EH12 0AD, EH12 — £617,000 • 5 bed • 1 bath • 1201 ft²
4 bedroom detached house for sale in 1 Bradshaw Lane,
Edinburgh,
EH12 0BB , EH12 — £570,000 • 4 bed • 1 bath • 1091 ft²
4 bedroom detached house for sale in 1 Bradshaw Lane,
Edinburgh,
EH12 0BB , EH12 — £520,000 • 4 bed • 1 bath • 889 ft²
4 bedroom detached house for sale in Off Turnhouse Road,
Edinburgh,
EH12 0AD, EH12 — £590,000 • 4 bed • 1 bath • 1010 ft²
5 bedroom detached house for sale in Off Millerhill Road,
Danderhall,
Midlothian,
EH22 1SB, EH22 — £534,000 • 5 bed • 1 bath • 1140 ft²
4 bedroom detached house for sale in 1 Bradshaw Lane,
Edinburgh,
EH12 0BB , EH12 — £540,000 • 4 bed • 1 bath • 1063 ft²










































































