Chain-free two-bedroom maisonette with huge west-facing garden, off-street parking and quick access to Greenford station.
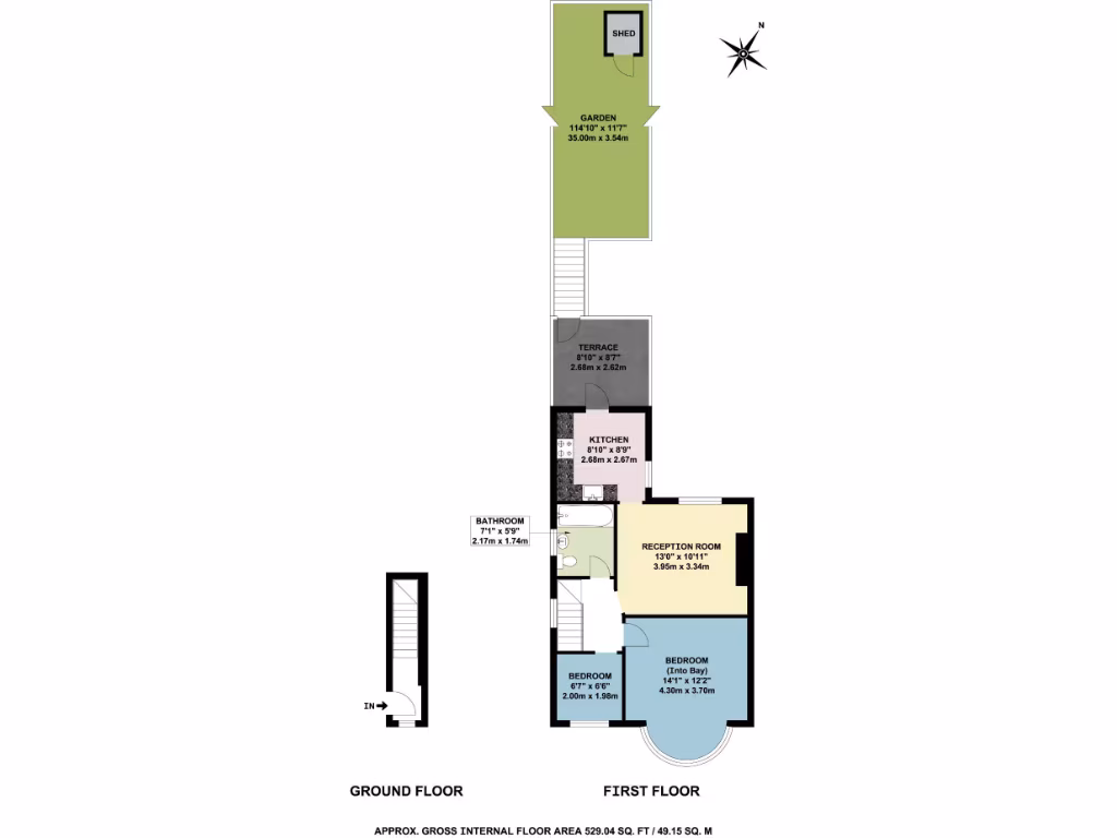
Chain-free two-bedroom first-floor maisonette, 529 sq ft
This well-presented two-bedroom first-floor maisonette is a compact, ready-to-go home in Greenford, offered chain-free and with a long lease (110 years). The property sits in a 1930s mid-terrace building and benefits from gas central heating, double glazing and an organised layout that makes efficient use of its 529 sq ft. The standout feature is the rare 115' west-facing rear garden — a significant outdoor asset for this size and location.
Internally the accommodation suits a small family, couple or buy-to-let investor: front reception with large window and shelving, principal bedroom with bay, second bedroom, fitted kitchen/breakfast room and a single bathroom. The flat is described as well presented and appears ready for immediate occupation, though modest room sizes limit flexibility and there is only one bathroom.
Practical positives include private forecourt providing off-street parking for two cars, easy access to Greenford station (Central Line/Overground, Zone 4), good local shopping and several well-rated schools nearby. There is no upper chain, which supports a quicker completion for buyers who need it.
Notable considerations: the internal footprint is small (529 sq ft), the building is solid-brick 1930s construction so external wall insulation may be absent, and the flat is leasehold — buyers should note remaining term and service/management arrangements. There is clear potential to add value by modernising kitchen/bathroom and improving insulation or internal layout, while the long garden offers scope for extension subject to planning and building constraints.
2 bedroom maisonette for sale in Stanley Avenue, Greenford, Middlesex, UB6 — £325,000 • 2 bed • 1 bath • 635 ft²
2 bedroom ground floor maisonette for sale in Oldfield Lane South, Greenford, UB6 — £325,000 • 2 bed • 1 bath • 538 ft²
2 bedroom maisonette for sale in Birkbeck Avenue, Greenford, UB6 — £325,000 • 2 bed • 1 bath • 474 ft²
1 bedroom maisonette for sale in Oldfield Lane North, Greenford, UB6 — £290,000 • 1 bed • 1 bath • 701 ft²
2 bedroom maisonette for sale in Goring Way, Greenford, UB6 — £280,000 • 2 bed • 1 bath • 570 ft²
2 bedroom maisonette for sale in Millet Road, Greenford, UB6 — £295,000 • 2 bed • 1 bath • 550 ft²


































