Renovated 1950s bungalow with private garden, ensuite and off-street parking—ready to move in.
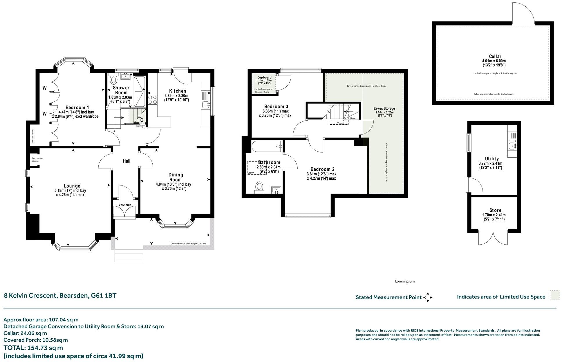
• Newly renovated three-bedroom detached bungalow, circa 1950
• Principal bedroom with ensuite; open-plan dining/kitchen
• Private rear garden: covered veranda, decking, patio and lawn
• Outbuilding with utility space; off-street driveway parking
• Worcester Bosch combi boiler fitted 2024; double glazing
• EPC band D and Council Tax band F (expensive)
• No flood risk; total size approximately 1,152 sq ft
• Wider area shows mixed socio-economic indicators; investigate local data
This well-presented three-bedroom detached bungalow on Kelvin Crescent combines 1950s character with recent, practical upgrades. The accommodation includes a large principal bedroom with ensuite, an open-plan dining/kitchen, and a bay-windowed lounge with stained-glass detail — all finished in neutral tones and contemporary fittings. The Worcester Bosch combi boiler was replaced in 2024 and the property benefits from PVCu double glazing.
Outside, the private rear garden is a standout: covered veranda, decking, patio, lawn and a feature stone retaining wall create distinct usable areas. An outbuilding provides dedicated utility and storage space, while a driveway offers convenient off-street parking. At about 1,152 sq ft, the layout is comfortable for a family or downsizer wanting single-storey living.
Location is strong for local amenities and schools: Westerton Primary and Boclair Academy are in the catchment, Cairnhill Woods and Westerton station are within walking distance, and regular bus services link to the city and West End. There is no recorded flood risk for the site.
Notable practical matters: the EPC is band D and council tax band F (expensive). Although the home has been newly renovated and is largely ‘move-in ready’, the property dates from the 1950s so buyers should expect older structural elements typical of that era. The wider area data indicates pockets of deprivation despite local affluent communities classification — worth checking local services and valuations against this mixed profile.
4 bedroom detached house for sale in Kelvin Crescent, Bearsden, G61 — £468,000 • 4 bed • 3 bath • 1389 ft²
2 bedroom semi-detached house for sale in Earn Avenue, Bearsden, G61 — £305,000 • 2 bed • 1 bath • 974 ft²
3 bedroom detached house for sale in Lochaber Road, Bearsden, G61 — £460,000 • 3 bed • 2 bath
4 bedroom detached house for sale in Henderland Road, Bearsden, G61 — £380,000 • 4 bed • 2 bath • 1400 ft²
2 bedroom detached house for sale in Gray Drive, Bearsden, G61 — £445,000 • 2 bed • 1 bath • 1318 ft²
3 bedroom detached house for sale in Endrick Drive, Bearsden, G61 — £390,000 • 3 bed • 1 bath • 1370 ft²






























































































































































