**Standout Features:**
- Prime Knightsbridge location with views over Ovington Square
- Elegant Georgian architecture with high ceilings and classic design
- 981 years remaining on share of freehold tenure
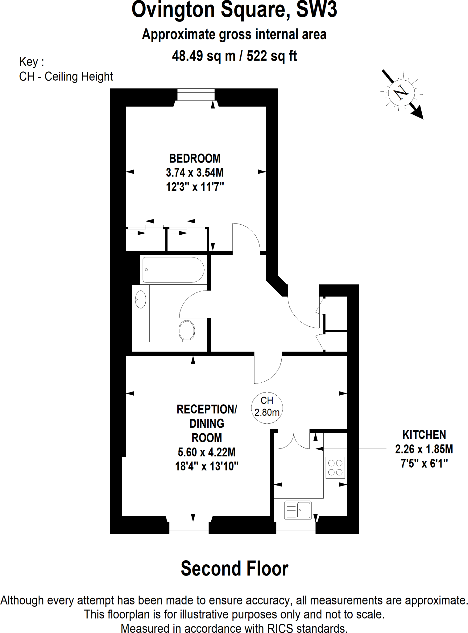
- 522 square feet of living space, practical layout with one double bedroom and one bathroom
- High-speed broadband and excellent mobile signal
**Concerns:**
- Expensive service charge at £4,300
- Council tax classified as expensive
- Solid brick walls with no assumed insulation (may require attention)
This delightful one-bedroom apartment offers a unique opportunity to live in the heart of Knightsbridge, one of London's most sought-after neighborhoods. Enjoy serene views over the picturesque Ovington Square from the spacious reception room, enhanced by its lofty Georgian ceilings. With its charming historic details, including classic sash windows and an inviting fireplace, this flat provides both character and comfort.
Spanning 522 square feet, the layout includes a double bedroom, bathroom, kitchen, and a generous reception area, perfect for both relaxing and entertaining. While the property requires some maintenance attention, such as potential insulation improvements, its prime location is unmatched—you're mere moments away from the cultural heart of London, with the upscale amenities of Brompton Road and Harrods at your doorstep.
Ideal for first-time buyers or investors looking to capitalize on a rental in a high-demand area, this apartment's potential is vast, but with the evident service charges and council tax, a discerning eye will be essential. Don’t miss your chance to own a piece of Knightsbridge charm!
1 bedroom apartment for sale in Ovington Square, London, SW3 — £795,000 • 1 bed • 1 bath • 462 ft²
1 bedroom apartment for sale in 3 Ovington Square, London, SW3 — £795,000 • 1 bed • 1 bath • 413 ft²
1 bedroom flat for sale in HANS ROAD, London, SW3 — £1,100,000 • 1 bed • 1 bath • 688 ft²
1 bedroom apartment for sale in Ennismore Gardens, London, SW7 — £2,250,000 • 1 bed • 1 bath • 1129 ft²
1 bedroom flat for sale in Ovington Square, Knightsbridge SW3 — £795,000 • 1 bed • 1 bath • 413 ft²
1 bedroom apartment for sale in Hans Road, Knightsbridge, London, SW3 — £1,100,000 • 1 bed • 1 bath • 527 ft²


































