**Standout Features:**
- Attractive 1930s double-fronted chalet on a large plot
- Off-road parking for 2 vehicles and a substantial double garage
- Flexible layout with potential for 3 bedrooms
- Spacious ground-floor living with a first-floor ensuite bedroom
- Modern kitchen/diner with integrated appliances and garden access
- Large, light-filled rear garden ideal for families
- Great location, close to transport links and essential amenities
**Notable Concerns:**
- Main reception room currently inaccessible for photography
- Double glazing installed before 2002 may require updates
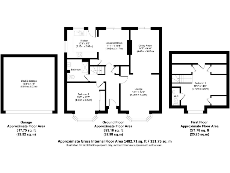
Set on a generous plot, this charming 1930s double-fronted chalet on Selwyn Road offers an abundance of space and renovation potential for families and first-time buyers alike. With off-road parking for two cars plus a substantial double garage, convenience meets opportunity. The property's versatile layout lends itself well to reconfiguration for three bedrooms, creating a comfortable haven for modern living. The spacious ground-floor features a light-filled living/dining area with a bay window and a well-appointed kitchen/diner equipped with quality integrated appliances, all while providing delightful views of the large rear garden.
A roomy ground-floor double bedroom with ample storage and a contemporary bathroom with a walk-in shower enhance the overall appeal. The potential for a significant double rear extension and loft conversion opens the door to future customization. Located just half a mile from Southend East Station and near supermarkets and parks, this property offers a tranquil family environment with easy city access. Don’t miss this rare opportunity to secure a charming home in a prime location, ready for your personal touch!
3 bedroom detached house for sale in Selwyn Road, Southend-On-Sea, SS2 — £460,000 • 3 bed • 3 bath • 1345 ft²
4 bedroom chalet for sale in Selwyn Road, Southend-On-Sea, SS2 — £350,000 • 4 bed • 2 bath
3 bedroom detached house for sale in Westbury Road, Southend-On-Sea, Essex, SS2 — £325,000 • 3 bed • 2 bath • 926 ft²
2 bedroom chalet for sale in Rylands Road, Southend-on-Sea, SS2 — £280,000 • 2 bed • 1 bath • 783 ft²
4 bedroom chalet for sale in Exford Avenue, Westcliff-on-sea, SS0 — £575,000 • 4 bed • 1 bath • 1163 ft²
2 bedroom chalet for sale in Huntingdon Road, Southend-On-Sea, SS1 — £450,000 • 2 bed • 2 bath • 1077 ft²


















































































