Spacious two-bedroom apartment with balcony, EV parking and quick access to the station..
Balcony with afternoon/evening sun exposure
Allocated off-street parking with EV charging point
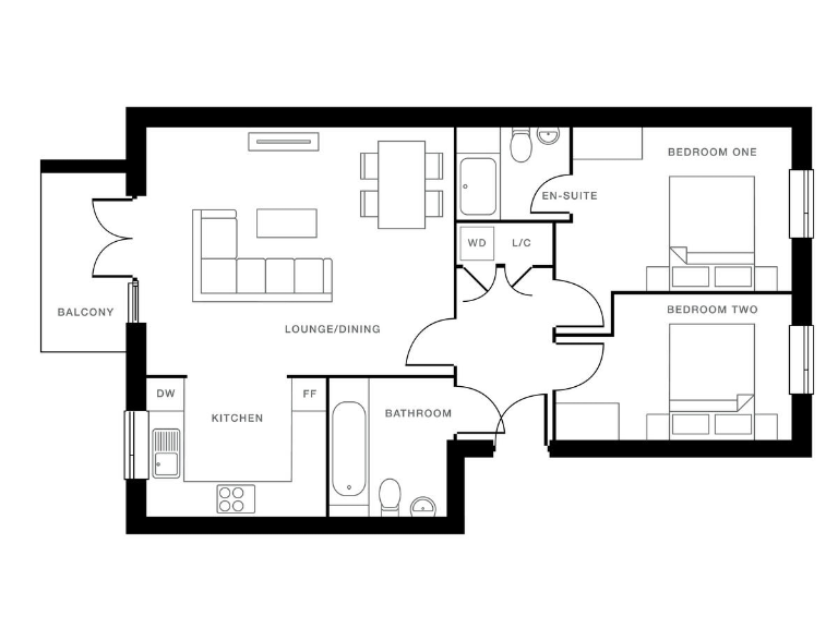
759 sq ft two-bedroom layout; one unit has en-suite
0.7 miles to station — convenient for commuters
NHBC 10-year and developer 2-year warranty included
Leasehold tenure — check terms and service charges
Broadband speeds reported very slow in the area
Glazing listed as single glazing — potential heat loss
Bright, well-sized two-bedroom apartment in Arcadia Park offers a practical first home with valuable modern extras. The property includes a balcony, allocated parking with EV charging, and comes with NHBC and a 2-year warranty — useful protections for new buyers. At 759 sq ft the layout feels roomy for a city-edge home and is under a mile (0.7 miles) from the station for easy commuting.
Buyers can choose contemporary kitchen tiles and flooring subject to stage of construction; integrated dishwasher and freestanding washer/dryer are provided. The development sits in the Berryfields community with extensive green spaces, local shops and a mix of restaurants and facilities nearby — a good fit for young professionals or couples.
Be aware of several material considerations: the sale is leasehold, broadband speeds are reported very slow, and glazing is listed as single glazing which may affect running costs and comfort. There is also a noted discrepancy in construction date information; confirm build and title details before purchase. Some finishes may already be pre-selected depending on construction stage.
2 bedroom apartment for sale in The Beech, Aylesbury, HP18 — £268,500 • 2 bed • 2 bath • 759 ft²
1 bedroom apartment for sale in The Hadar, Aylesbury, HP18 — £195,000 • 1 bed • 1 bath • 550 ft²
2 bedroom apartment for sale in Arcadia Park, Aylesbury, HP18 — £260,000 • 2 bed • 2 bath • 1970 ft²
2 bedroom end of terrace house for sale in Arcadia Park, Aylesbury, HP18 — £375,000 • 2 bed • 1 bath • 625 ft²
2 bedroom apartment for sale in The Hemlock, Aylesbury, HP18 — £260,000 • 2 bed • 2 bath
1 bedroom apartment for sale in Arcadia Park, Aylesbury, HP18 — £200,000 • 1 bed • 1 bath • 1970 ft²


























































