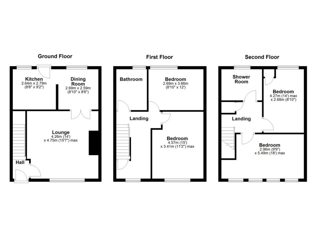
**Standout Features:**
- Charming 4-bedroom Grade II listed weavers cottage
- Cozy living space across three floors with traditional architectural features
- Spacious lounge with fireplace and stunning views from large windows
- Two bathrooms—one on each of the upper floors, ideal for family independence
- Delightful outdoor space with a low-maintenance garden and gravel patio
- Wine cellar and two outside storage areas
- Excellent local schooling and beautiful walking routes nearby
**Summary:**
Step into this enchanting 4-bedroom Grade II listed weavers cottage, where character and comfort harmoniously blend. Positioned just outside Holmfirth, this home features inviting interiors adorned with traditional wooden beams, a cozy fireplace, and ample light streaming through large mullion windows. The thoughtful design includes a spacious lounge flowing into a dining area and a fitted kitchen, while the upper floors house two generous bathrooms—perfectly catering to family needs or work-from-home setups.
Surrounded by a charming flower garden and an alfresco dining patio, summer evenings will be truly delightful here. Schools are within walking distance, making it ideal for families, and local walking routes offer the beauty of nature right at your doorstep. While there is on-street parking and the property’s listed status may require careful renovation considerations, its charm and prime location present a rare opportunity. This well-presented home captures the essence of a peaceful lifestyle combined with modern conveniences. Schedule your personal viewing today; this unique gem is not to be missed!
3 bedroom terraced house for sale in Whinney Bank Lane, Holmfirth, West Yorkshire, HD9 — £625,000 • 3 bed • 2 bath
4 bedroom end of terrace house for sale in Paris, Scholes, Holmfirth, HD9 — £380,000 • 4 bed • 2 bath • 1142 ft²
3 bedroom end of terrace house for sale in South Street, Wooldale, Holmfirth, HD9 — £275,000 • 3 bed • 1 bath • 624 ft²
3 bedroom terraced house for sale in Bank Buildings, Mill Bank Road, Meltham HD9 — £325,000 • 3 bed • 1 bath • 899 ft²
1 bedroom cottage for sale in Dean Brook Road, Netherthong, Holmfirth, HD9 — £235,000 • 1 bed • 1 bath • 671 ft²
3 bedroom terraced house for sale in Cliff Road, Holmfirth, HD9 — £220,000 • 3 bed • 1 bath • 840 ft²














































































































