Chain-free freehold house near Caledonian Road tube with modest outdoor space.
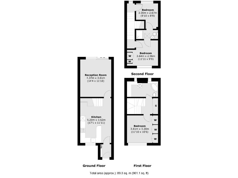
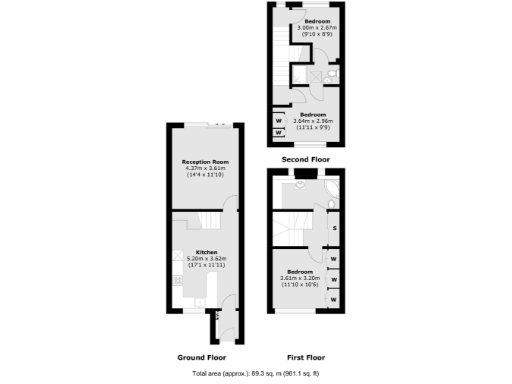
- Freehold, chain-free three-bedroom house (c. 961 sq ft)
- Two bathrooms across three storeys; built-in storage
- Bright, vaulted reception with patio doors to decked courtyard
- Modern kitchen, timber floors, underfloor heating on ground floor
- 0.2 miles to Caledonian Road tube; fast broadband and mobile signal
- Small plot and compact outdoor space; limited garden area
- Area classified as deprived with higher local crime rates
- Property dated 1976–82; double glazing install date unknown
This freehold, chain-free mid-terrace house offers three bedrooms and two bathrooms across three storeys, arranged for comfortable family living or professional sharers. The property feels light and open, with a modern kitchen/dining area, a lofted reception with full-height glazing and patio doors, and timber floors throughout. At c. 961 sq ft the footprint is a practical city home with useful built-in storage and underfloor heating on the ground floor.
Outdoor space is compact but private: a small decked rear courtyard and a modest front garden provide low-maintenance outside areas ideal for potted plants and a seating spot. The house sits 0.2 miles from Caledonian Road Underground, with fast broadband and excellent mobile signal — convenient for commuting and working from home. Strong local amenities and several highly ranked schools are within easy reach.
Buyers should note the context and constraints: the immediate area is classified as deprived with a higher-than-average crime rate, and the plot is small with limited external garden space. The property dates from 1976–82 and while presented in good decorative condition, it offers scope for modest improvement or internal reconfiguration rather than major extension. Double glazing is present but install date is unknown; buyers should check mechanical, electrical and heating service records.
This home suits buyers seeking an immediately liveable, low-maintenance urban house in a well-connected Islington location, who accept a compact outdoor footprint and want potential to add value through modest updating.
3 bedroom terraced house for sale in Mackenzie Road, London, N7 — £870,000 • 3 bed • 2 bath • 776 ft²
3 bedroom house for sale in Elysian Mews, London, N7 — £1,350,000 • 3 bed • 2 bath • 1209 ft²
3 bedroom terraced house for sale in Caledonian Road, London, N7 — £875,000 • 3 bed • 1 bath • 1261 ft²
6 bedroom terraced house for sale in Caledonian Road, London, N7 — £1,000,000 • 6 bed • 2 bath • 1762 ft²
3 bedroom terraced house for sale in Bride Street, Islington, N7 — £1,395,000 • 3 bed • 2 bath • 1249 ft²
2 bedroom house for sale in Wedmore Gardens, London, N19 — £550,000 • 2 bed • 1 bath • 554 ft²






































