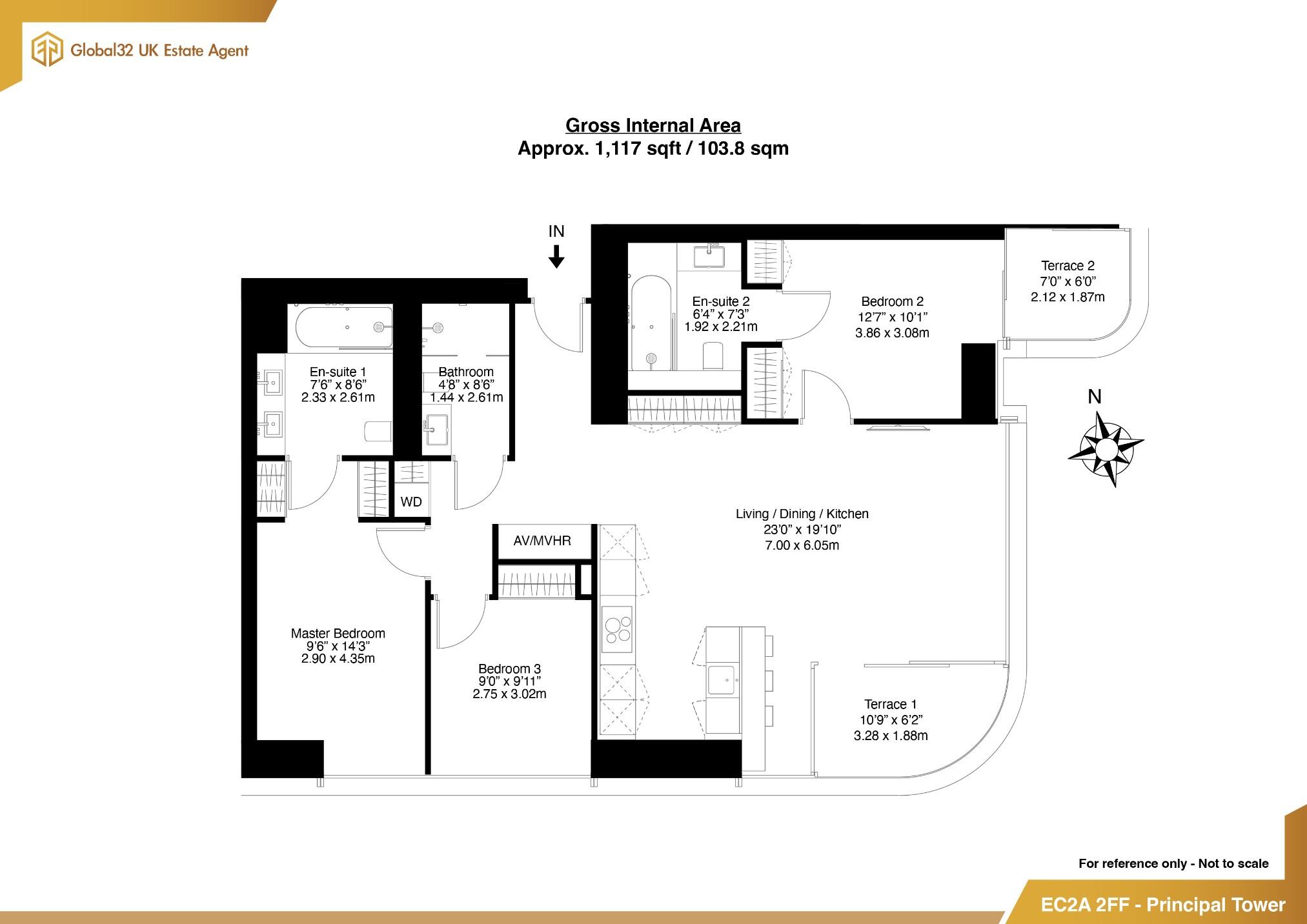
**Standout Features:**
- Panoramic views of London from the 39th floor
- 3 spacious bedrooms, each with an en-suite bathroom
- Two private terraces ideal for relaxation and city views
- On-site amenities including swimming pool, spa, gym, and 24-hour concierge
- Contemporary design with high-end finishes throughout
---
Experience modern urban living in this exceptional 3-bedroom apartment located in the prestigious Principal Tower, ideally positioned between the financial heart of London and the trendy locales of Shoreditch. Boasting an impressive open plan kitchen and reception area, this residence features floor-to-ceiling windows that flood the space with natural light and offer breathtaking city views. The kitchen showcases a stylish combination of light timber cabinetry and Caesarstone worktops, while the bathrooms exude luxury with marble surfaces and underfloor heating.
As a resident, you'll enjoy access to world-class amenities that promise convenience and leisure, including a gym, spa, lap pool, screening room, and a vibrant new tree-lined piazza with shops and dining options nearby. The bustling locale is home to renowned high-end brands and top-rated schools, making it a perfect choice for both investors and families seeking a cosmopolitan lifestyle.
Please note, while the vibrant urban environment offers a plethora of conveniences, the area has a high crime rate, which may be a consideration for potential buyers prioritizing safety. The apartment is leasehold, which is essential for financing and investment decisions.
Don’t miss this exclusive opportunity to own a piece of luxury in one of London’s most sought-after properties—this apartment won’t be available for long! Ideal for discerning buyers who appreciate both modern design and city living.
3 bedroom apartment for sale in Worship Street, London, EC2A — £2,380,000 • 3 bed • 3 bath • 1097 ft²
3 bedroom flat for sale in Principal Place, Worship Street, EC2A — £2,380,000 • 3 bed • 3 bath • 1172 ft²
3 bedroom apartment for sale in Principal Place, Worship Street, EC2A — £3,155,000 • 3 bed • 3 bath • 1475 ft²
2 bedroom flat for sale in Principal Tower, 2 Principal Place, Worship Street, London, Greater London, EC2A — £1,300,000 • 2 bed • 2 bath • 893 ft²
3 bedroom apartment for sale in Principal Tower, Shoreditch High Street, Shoreditch, London, EC2A, United Kingdom, EC2A — £3,250,000 • 3 bed • 3 bath • 1485 ft²
2 bedroom apartment for sale in Principal Tower, Worship Street, London, EC2A — £1,300,000 • 2 bed • 2 bath • 847 ft²


















































