Ready-to-build village plot with planning for a spacious family home.
- Full planning permission granted (Buckinghamshire Council ref 25/01138/ADP)
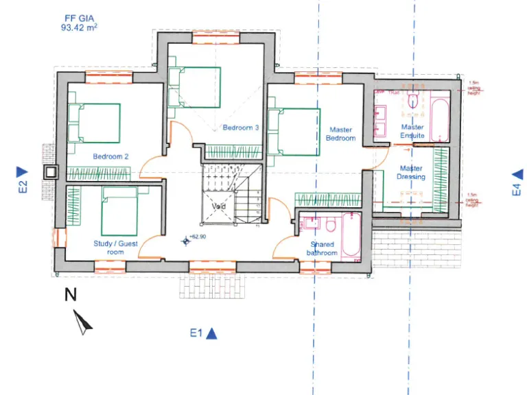
- Consent for a four-bedroom detached house with single garage
- Plot size approximately 0.183 acres (large for village infill)
- Quiet village lane, about 2 miles west of Thame
- Site currently unmanaged; requires clearance and preparation
- Modest plot depth; infill setting with neighbouring gardens close
- Consented layout shows one bathroom for four bedrooms
- VAT may be chargeable; buyer due diligence advised
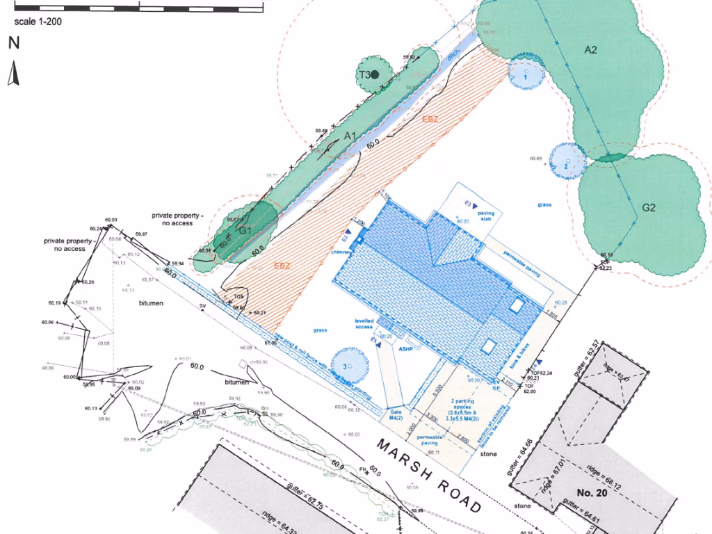
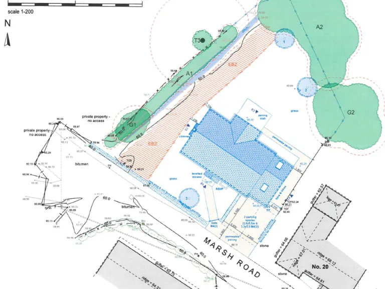
A planning-approved building plot in the village of Shabbington, offered with full permission to construct a spacious four-bedroom detached home (planning ref 25/01138/ADP). The consent covers a two-storey house with single garage, set on approximately 0.183 acres, providing a private garden and driveway access from Marsh Road. The location combines a quiet lane and village community with easy access to the market town of Thame and local road links.
The parcel is level, predominantly grassed and fenced to the rear, with some mature boundary trees. It has straightforward vehicular access and fast broadband, very low local crime and an affluent, rural catchment popular with professionals and families. The consented scheme is attractive for a family looking for a bespoke new home or an investor seeking a ready-to-build plot in a sought-after village setting.
Buyers should note material points before viewing: the site is presently unmanaged and will require clearance and basic site preparation; the plot is a modest-depth infill parcel rather than a large estate plot. The approved design includes a single bathroom for the four-bedroom layout, which may need amendment if a different room mix is required. VAT may be chargeable and purchasers should carry out their own due diligence on boundaries, services and build costs.
Full planning permission was granted by Buckinghamshire Council (reference 25/01138/ADP). Interested parties are advised to review the planning documents and consult building and cost professionals prior to purchase to confirm scope, timings and any necessary condition discharges.
Land for sale in Land at Phoenix Park, Thame, OX9 — £550,000 • 1 bed • 1 bath • 16988 ft²
Plot for sale in High Street, Haddenham, HP17 — £325,000 • 1 bed • 3 bath • 667 ft²
Land for sale in Elizabeth Road, Stokenchurch, HP14 — £375,000 • 1 bed • 1 bath • 1040 ft²
Land for sale in Thame Road, Great Milton, OX44 — £325,000 • 4 bed • 3 bath • 2659 ft²
3 bedroom semi-detached house for sale in Stag Row, Shabbington, HP18 — £550,000 • 3 bed • 3 bath • 1145 ft²
Land for sale in Sydenham, OX39 — £499,995 • 4 bed • 3 bath • 2000 ft²






































