C‑listed farmhouse with steadings and substantial development potential near Edinburgh.
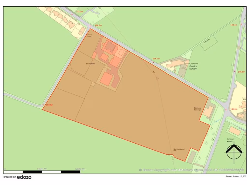
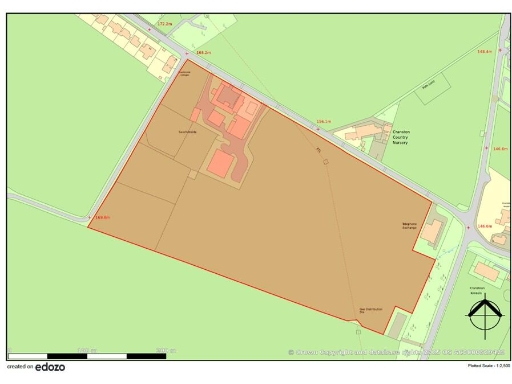
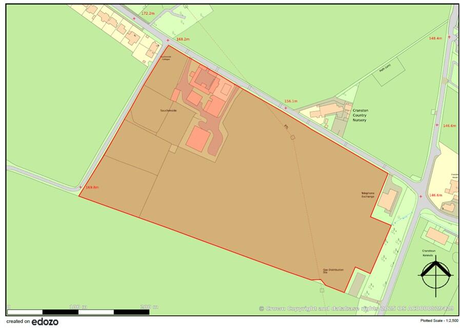
Approximately 8.21 hectares (20.20 acres) ideal for equestrian or small‑holding use
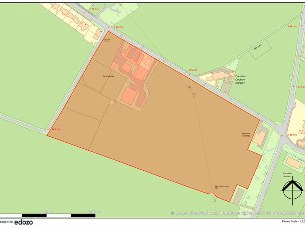
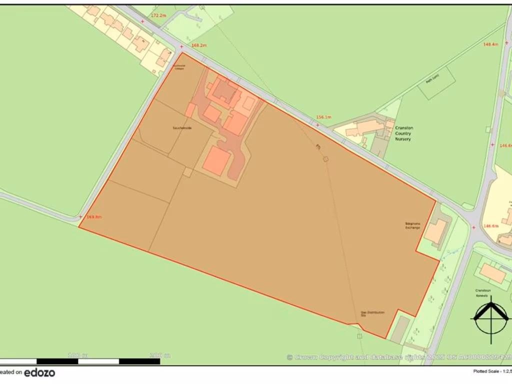
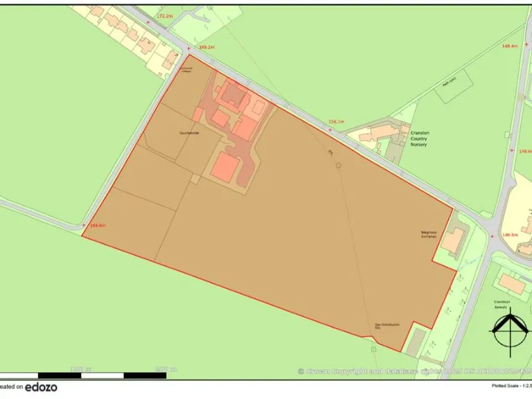
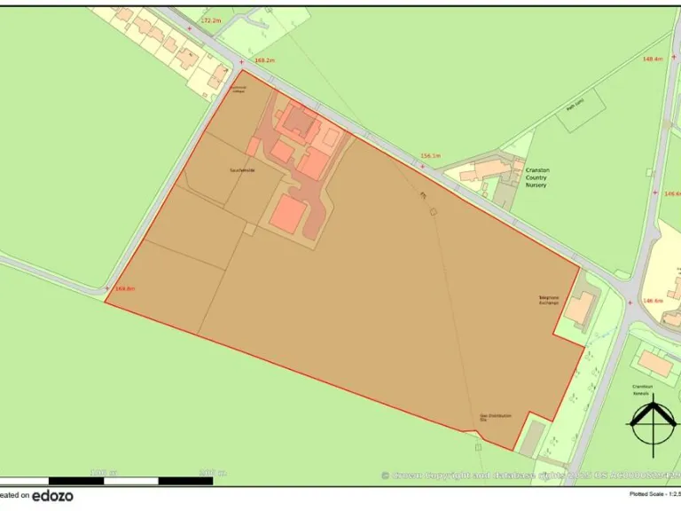
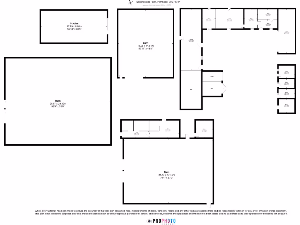
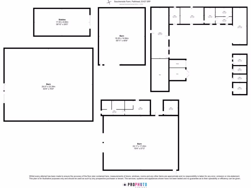
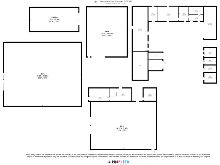
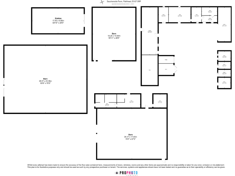
Sauchenside Farm presents a rare 20.20-acre small‑holding near Pathhead with a traditional C‑listed farmhouse, extensive steadings and strong countryside views to the Lammermuir Hills. The elevated stone farmhouse and courtyard of traditional buildings offer immediate scope for an equestrian base, hobby farm or a sensitive redevelopment scheme subject to consents. The site is less than a mile from the A68 and about 12.5 miles from Edinburgh, combining rural privacy with straightforward city access.
The farmhouse dates from the 1800s and has attractive period features but has been unoccupied and requires complete renovation; the EPC is rated F and the property is C‑listed, which will constrain works and add complexity and cost. Several modern outbuildings contain asbestos cement roofs and will need repair, removal or replacement; Building No.1 may be removed by the seller within twelve months unless otherwise agreed. The purchaser is responsible for service upgrades, boundary maintenance and any statutory consents.
Planning pre‑application feedback indicates sensitive redevelopment and small‑scale new build within the site could gain support, but all proposals would be subject to detailed planning matters. There is a 25% clawback on any uplift in value for non‑agricultural use of land outside the existing steading for 25 years. These commercial considerations make the property best suited to a buyer experienced in rural redevelopment, equestrian use or someone prepared to manage listed‑building refurbishment.
In short: substantial land, period buildings and clear redevelopment potential on a generous site close to transport links — balanced by listed‑status constraints, renovation costs and specific sale conditions. Careful due diligence and early engagement with planning and listed‑building advisers are recommended to realise the site’s potential.
3 bedroom detached house for sale in Lot 1 Sauchenside Farm, Pathhead, Midlothian, EH37 — £650,000 • 3 bed • 1 bath • 432 ft²
Farm land for sale in Land at Humbie Farm, Kirkliston, Edinburgh, EH29 — £1,500,000 • 1 bed • 1 bath
Plot for sale in Plot 4, Birkenside Farm, Earlston, Berwickshire, TD4 6AR, TD4 — £150,000 • 1 bed • 1 bath • 12197 ft²
4 bedroom detached house for sale in Spottiswoode House, Gordon, TD3 — £595,000 • 4 bed • 2 bath • 3329 ft²
5 bedroom detached house for sale in Selms Farmhouse, Kirknewton, West Lothian, EH27 — £485,000 • 5 bed • 2 bath • 2511 ft²
3 bedroom semi-detached house for sale in Damhead, Lothianburn, Edinburgh, Midlothian, EH10 — £650,000 • 3 bed • 2 bath






























































































































































































































































































































































