Contemporary two-bedroom with concierge and strong transport links.
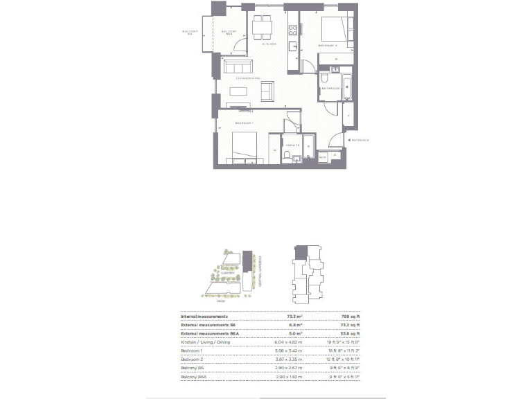
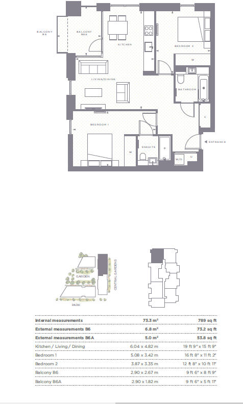
Two double bedrooms with two bathrooms and balcony
Bright, modern two-bedroom apartment in the Belvedere Row development, offering open-plan living, high ceilings and a private balcony with city views. The layout suits a couple or small family seeking contemporary finishes and easy access to central London.
Residents benefit from on-site concierge, club lounge, business suite and private dining room, plus nearby gym, pool and spa facilities. Excellent transport links and Westfield shopping make this a convenient base for work and leisure. Several highly rated primary and secondary schools are within easy reach.
Practical points to note: the lease is very long (994 years) but service charge (£5,500pa) and ground rent (£750pa) are above average, and council tax is described as expensive. The wider area is an inner-city, cosmopolitan neighbourhood with an established renting-family profile and some indicators of local deprivation.
The apartment offers straightforward rental or owner-occupier potential thanks to its efficient 789 sq ft layout, durable contemporary finishes and strong connections to central London. Buyers valuing amenity-rich living and on-site services will find clear lifestyle advantages, while budget-conscious purchasers should factor the running costs into affordability calculations.
2 bedroom flat for sale in Fountain Park Way, London, W12 — £990,000 • 2 bed • 2 bath • 786 ft²
2 bedroom apartment for sale in Belvedere Row, White City Living, W12 — £980,000 • 2 bed • 2 bath • 792 ft²
2 bedroom apartment for sale in Belvedere Row, White City Living, W12 — £1,150,000 • 2 bed • 2 bath • 905 ft²
2 bedroom apartment for sale in Belvedere Row, Fountain Park Way, W12 — £1,160,000 • 2 bed • 2 bath • 942 ft²
2 bedroom flat for sale in Cassini Tower, London, W12 — £1,350,000 • 2 bed • 1 bath • 916 ft²
2 bedroom apartment for sale in Belvedere Row, White City Living, W12 — £1,200,000 • 2 bed • 2 bath • 940 ft²






































