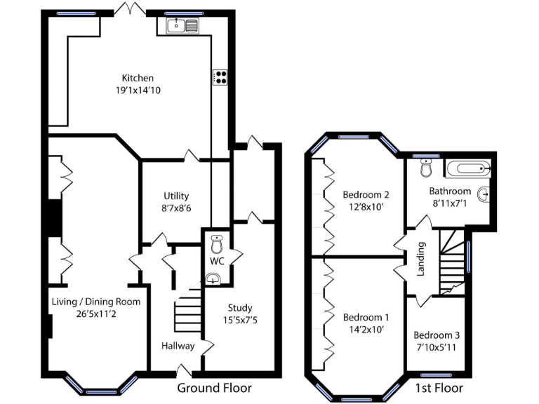
Spacious kitchen-diner, study and long private garden for family life.
Short walk to Queensbury Underground station
This extended 1930s semi offers practical family living in a quiet Edgware street, a short walk from Queensbury Underground and local shops. The layout suits day-to-day life: a large through lounge, a generous kitchen/diner with adjoining utility, a ground-floor WC and a separate study ideal for homework or a home office. Three good-size bedrooms and a sizeable family bathroom sit on the first floor. Off-street parking and a long private rear garden add outdoor space that families value.
The property is chain free and freehold, with a total floor area around 1,143 sq ft. Local schools rated Good are within easy reach, and nearby amenities include supermarkets, takeaways and regular bus links. Mobile signal and broadband speeds are reported strong, supporting remote work and streaming.
Buyers should note this is a 1930s build with cavity walls that are assumed to have no insulation; upgrading wall insulation and confirming the age/condition of the double glazing may be sensible early works. The plot is described as small and the home is average-sized overall, so although the interior feels extended, there may be limited scope for further enlargement without planning. Crime and area deprivation profiles are average.
3 bedroom house for sale in Teignmouth Close, Edgware, HA8 — £635,000 • 3 bed • 1 bath • 1071 ft²
3 bedroom semi-detached house for sale in Calder Gardens, Edgware, Middlesex, HA8 — £685,000 • 3 bed • 1 bath • 803 ft²
4 bedroom semi-detached house for sale in Beverley Drive, Edgware, HA8 — £815,000 • 4 bed • 1 bath • 1119 ft²
4 bedroom end of terrace house for sale in Chelsea Close, Edgware, Middlesex, HA8 — £599,950 • 4 bed • 2 bath • 1217 ft²
5 bedroom semi-detached house for sale in Brinkburn Gardens, Edgware, HA8 — £780,000 • 5 bed • 2 bath • 1473 ft²
4 bedroom semi-detached house for sale in Redhill Drive, Edgware, HA8 — £700,000 • 4 bed • 2 bath • 1378 ft²






















































