Bright rooms, large garden and flexible home-working space.
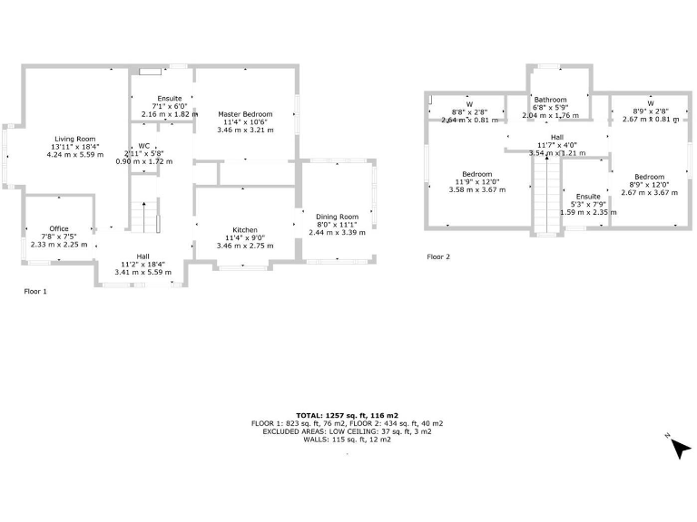
Detached four-bedroom chalet-style house with three bathrooms
This detached four-bedroom chalet-style house offers adaptable family living over two levels with generous room proportions and a bright, welcoming layout. The ground floor includes a large lounge, a well-laid-out kitchen, dining room with dual-aspect light, a ground-floor master with ensuite and a flexible room suitable as a study or fourth bedroom.
Upstairs are two spacious double bedrooms with fitted storage, one with its own ensuite, plus a family bathroom—three bathrooms in total reduce morning pressures for busy households. Outside, the rear garden is neatly maintained with lawns, planted borders and raised beds, while a large garden room currently used as a gym provides flexible space for hobbies, home‑working or storage. The wide block‑paved driveway and garage offer extensive off‑street parking.
Practical advantages include freehold tenure, fast broadband speeds and convenient transport links from Carluke to Glasgow and Edinburgh. The property sits adjacent to open green space, giving pleasant rear outlooks and family-friendly outdoor options.
A material local concern is the area’s higher measured deprivation; buyers should consider local services and longer-term area regeneration prospects. Otherwise the home is presented in good order with low‑maintenance exterior finishes and appears ready for immediate occupation with typical updating possible to personalise fixtures and decor.
4 bedroom detached house for sale in High Meadow, Carluke, ML8 — £235,000 • 4 bed • 2 bath
4 bedroom detached house for sale in Inglis Brae, Blackwood, Lanark, ML11 — £269,995 • 4 bed • 3 bath • 1249 ft²
4 bedroom detached house for sale in Ramillies Court, Carluke, ML8 — £210,000 • 4 bed • 2 bath • 1030 ft²
4 bedroom detached house for sale in Ballater Crescent, Wishaw, ML2 — £330,000 • 4 bed • 3 bath • 1853 ft²
5 bedroom detached house for sale in Grange Court, Lanark, ML11 — £374,000 • 5 bed • 3 bath • 2448 ft²
5 bedroom detached house for sale in Cleghorn Lea, Lanark, ML11 — £329,995 • 5 bed • 4 bath










































































































































