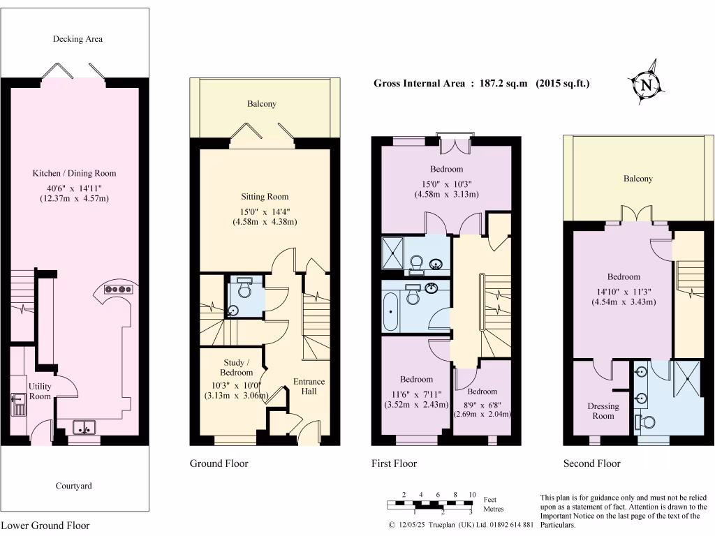
Four-storey modern townhouse with balconies, woodland views and generous living space near Tunbridge Wells.
4–5 bedrooms, principal suite with walk-in dressing room and balcony
A substantial modern townhouse arranged over four storeys, this 4–5 bedroom home suits growing families who want space, good schools and easy access to Tunbridge Wells. The lower ground 40 ft kitchen/dining/family room with bi-fold doors opens to a decked area with woodland views, creating a flexible heart for daily life and entertaining. The principal suite occupies the top floor with a walk-in dressing room, dual basins and a large balcony overlooking Tunbridge Wells and the surrounding ridge.
Outside, the property benefits from multiple outdoor areas: large balconies on several levels, a lower-ground courtyard and deck, and part ownership of approximately 1.7 acres of estate grounds and woodland for informal use. Off-street parking is provided via a car port and an allocated bay; the front driveway is landscaped contemporary-style. The house is modern-finished throughout with branded kitchen appliances and generous room count across 2,015 sq ft.
Practical points to note: the property is freehold but shares ownership of estate grounds; there is an average service charge of £2,200 and council tax is described as quite expensive. Mobile signal is average despite fast broadband; these are worth checking if home working is essential. Overall this is a well-appointed, family-focused home in a very affluent area, within walking distance of woodland, good primary and outstanding secondary schools and around 1.4 miles from Tunbridge Wells station.
5 bedroom terraced house for sale in Kentish Gardens, Tunbridge Wells, Kent, TN2 — £1,150,000 • 5 bed • 3 bath • 2627 ft²
5 bedroom detached house for sale in Forest Road, Tunbridge Wells, Kent, TN2 — £1,350,000 • 5 bed • 3 bath • 2483 ft²
4 bedroom semi-detached house for sale in Salomons Mews, Cambridge Gardens, Tunbridge Wells, TN2 — £950,000 • 4 bed • 4 bath • 1948 ft²
5 bedroom detached house for sale in Wybourne Rise, Tunbridge Wells, Kent, TN2 — £975,000 • 5 bed • 2 bath • 2617 ft²
5 bedroom terraced house for sale in Arundel Road, Tunbridge Wells, Kent, TN1 — £1,000,000 • 5 bed • 2 bath • 1668 ft²
4 bedroom semi-detached house for sale in Montacute Mews, Tunbridge Wells, Kent, TN2 — £825,000 • 4 bed • 2 bath • 1637 ft²


















































































































































































