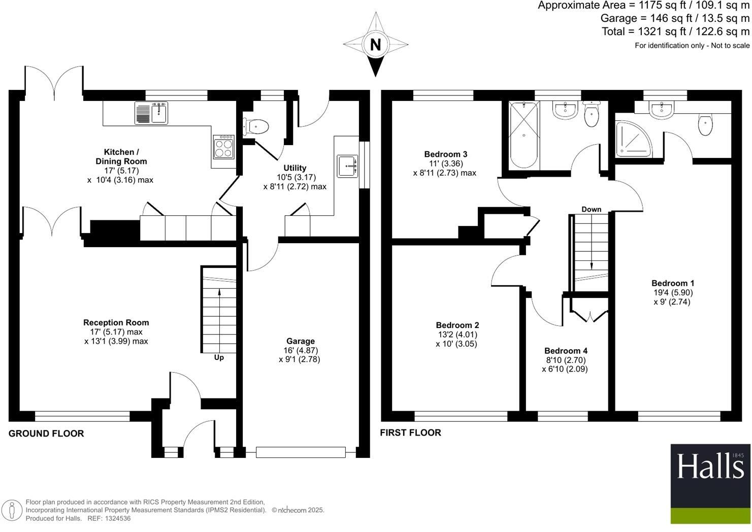
**Standout Features:**
- Four spacious bedrooms, including a master en-suite.
- Modern kitchen with integrated appliances and open-plan dining.
- Beautifully maintained south-facing garden with patio areas.
- Driveway parking and integral garage.
- Located in a quiet cul-de-sac within a popular residential area.
**Property Summary:**
Discover your ideal family home in this beautifully presented semi-detached house, nestled in a tranquil cul-de-sac in a sought-after residential neighborhood. Boasting 1,321 square feet of well-designed living space, this inviting property features a modern kitchen with integrated appliances, a spacious living room, and four generously sized bedrooms, making it perfect for families looking for comfort and flexibility. The master bedroom includes an en-suite shower, ensuring privacy and convenience.
Step outside to the enchanting south-facing garden, ideal for entertaining or simply enjoying quiet family moments in nature. With a decent plot size, driveway parking, and an integral garage, practicality meets appeal at every turn. The neighborhood is known for its low crime rate and access to amenities, while Shrewsbury town center is just a short drive away, adding to its convenience for commuting families.
This property has been lovingly maintained over the years, creating a warm and inviting atmosphere. There is potential for future renovations or extensions, allowing you to tailor the space to your family's evolving needs. With affordable council tax and no chain involved, this is an opportunity not to be missed. Don’t wait—schedule your viewing today and imagine the memories you'll create in this lovely home!
4 bedroom semi-detached house for sale in Ilston, 6 Canonvale, Shrewsbury, SY3 9AP, SY3 — £495,000 • 4 bed • 2 bath • 1469 ft²
4 bedroom semi-detached house for sale in Monkmoor Road, Monkmoor, Shrewsbury, SY2 — £340,000 • 4 bed • 1 bath • 1318 ft²
4 bedroom detached house for sale in 6 Abbotsfield Drive, Shrewsbury, SY2 6DJ, SY2 — £399,950 • 4 bed • 1 bath • 1505 ft²
3 bedroom semi-detached house for sale in Dale Road, Shrewsbury, SY2 — £254,500 • 3 bed • 1 bath • 1192 ft²
5 bedroom detached house for sale in 9 Cavendish Close, Bicton Heath, Shrewsbury, SY3 5PG, SY3 — £525,000 • 5 bed • 3 bath • 1487 ft²
4 bedroom detached house for sale in 10 Sparkham Close, Shrewsbury, SY3 6BX, SY3 — £475,000 • 4 bed • 2 bath • 1639 ft²






























































