Large rear garden, off-street parking and easy town-centre access.
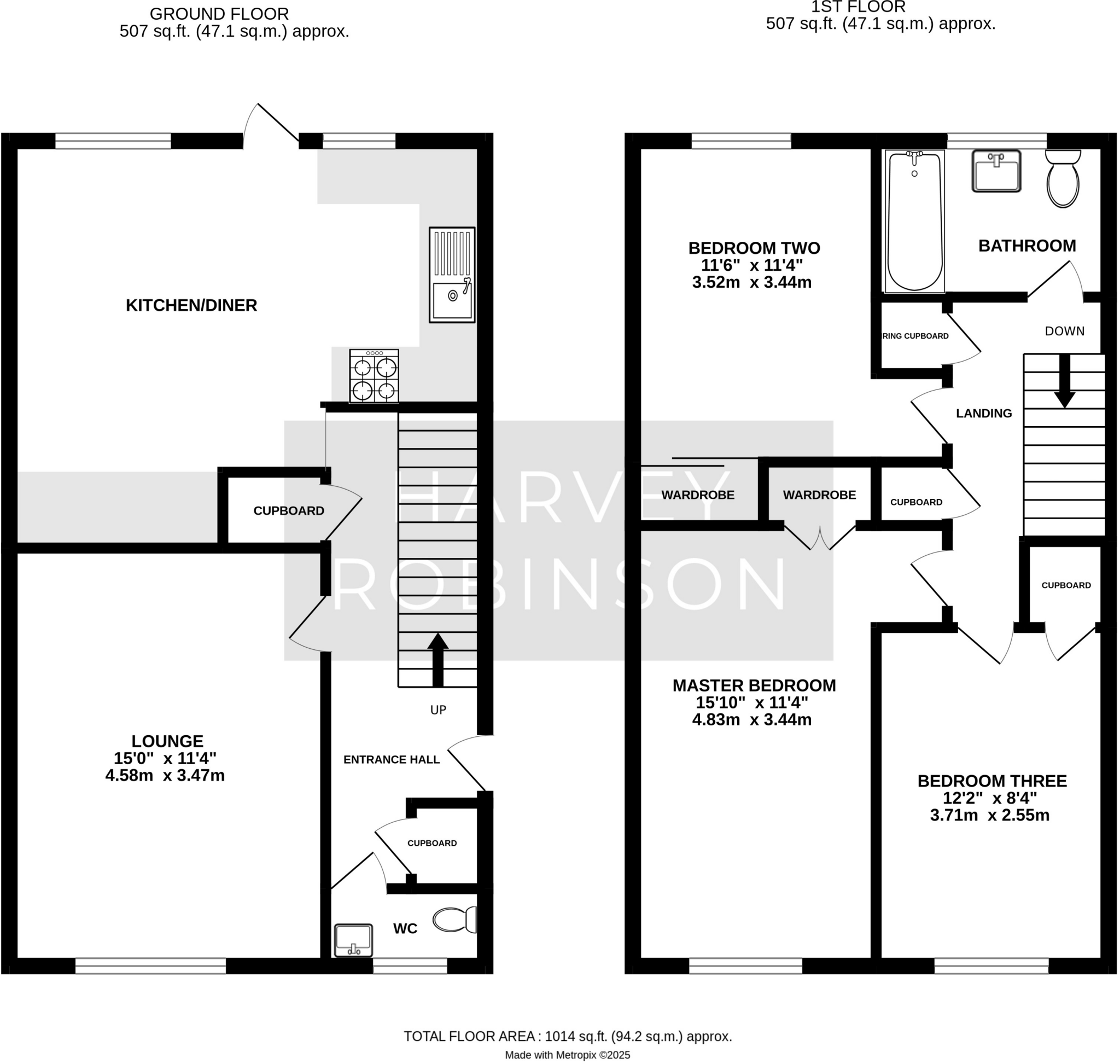
Three double bedrooms across two storeys
This well-presented three double bedroom semi-detached home offers about 1,014 sq ft of practical living space close to Huntingdon town centre. The ground floor has a bright living room, cloakroom and an open-plan kitchen/dining area that opens onto a large private rear garden — ideal for outdoor dining and family use. Off-street parking to the front adds everyday convenience.
Internally the layout suits first-time buyers or young families who want space to grow without immediate heavy renovation. The property benefits from mains gas central heating (boiler and radiators) and double glazing, though the glazing install date is unknown and some cavity wall insulation is assumed rather than confirmed. There is clear potential to personalise and update kitchens or bathrooms to add long-term value.
Buyers should note material facts: the house was built in 1976 so some services, finishes and insulation may be dated; there is a single family bathroom serving three double bedrooms. The local area scores as relatively deprived with average crime levels — weigh convenience to shops, schools and transport against that local context.
Practical positives include no flood risk, excellent mobile signal and fast broadband, nearby good-rated primary and secondary schools, and reasonably low council tax. Overall, this home offers a straightforward, affordable route onto the ladder with scope to improve and increase value over time.
3 bedroom terraced house for sale in West Street, Huntingdon, PE29 — £250,000 • 3 bed • 1 bath • 792 ft²
4 bedroom semi-detached house for sale in Rodney Road, Hartford, Huntingdon, Cambridgeshire, PE29 — £375,000 • 4 bed • 1 bath • 1367 ft²
3 bedroom semi-detached house for sale in Bradley Road, Hinchingbrooke, PE29 — £350,000 • 3 bed • 2 bath • 1126 ft²
3 bedroom terraced house for sale in Nene Road, Huntingdon, PE29 — £230,000 • 3 bed • 1 bath • 871 ft²
3 bedroom semi-detached house for sale in Sycamore Drive, Huntingdon, PE29 — £235,000 • 3 bed • 1 bath • 894 ft²
3 bedroom terraced house for sale in Drovers Place, Huntingdon, PE29 — £300,000 • 3 bed • 2 bath • 1038 ft²






































































