Four-bedroom new-build with huge open-plan kitchen, large garden and garage — ideal for families..
Huge open-plan kitchen/dining/snug with island and bi-fold doors to garden
Separate living room for quieter family use
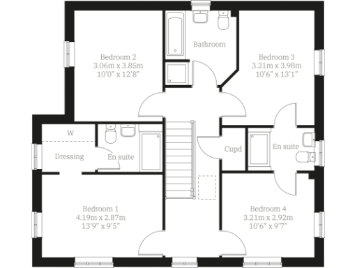
Bedroom one with en suite and dressing room
Three bathrooms plus downstairs WC and utility with outside access
Single garage only; limited parking for multiple cars
Freehold new build on a very large plot
Excellent mobile signal; local broadband speeds reported as slow
Council tax band pending until post-occupation
This attractive four-bedroom detached new-build sits on a very large plot at the edge of Newbold Verdon. The house centres on a huge open-plan kitchen/dining/snag area with an island and bi-fold doors that open onto the garden — ideal for everyday family life and entertaining. A separate living room provides a quieter retreat.
Bedroom one includes an en suite and a dressing room; there are three bathrooms in total plus a downstairs WC and a utility room with external access. The property is freehold and comes with a single garage. With modern finishes throughout and low local crime, it’s well suited to families seeking space and peace close to good schools.
Practical points to note: this is a new build so council tax banding will be provided post-occupation. Broadband speeds in the area are reported as slow despite excellent mobile signal. Parking is limited to a single garage — households needing multiple off-street spaces may need to plan accordingly.
3 bedroom semi-detached house for sale in Newbold Verdon,
Leicester,
Leicestershire,
LE9 9LE, LE9 — £340,000 • 3 bed • 1 bath • 419 ft²
3 bedroom semi-detached house for sale in Newbold Verdon,
Leicester,
Leicestershire,
LE9 9LE, LE9 — £340,000 • 3 bed • 1 bath • 1629 ft²
4 bedroom detached house for sale in Newbold Verdon,
Leicester,
Leicestershire,
LE9 9LE, LE9 — £468,000 • 4 bed • 1 bath • 545 ft²
4 bedroom detached house for sale in Newbold Verdon,
Leicester,
Leicestershire,
LE9 9LE, LE9 — £525,000 • 4 bed • 1 bath • 1207 ft²
3 bedroom detached house for sale in Newbold Verdon,
Leicester,
Leicestershire,
LE9 9LE, LE9 — £360,000 • 3 bed • 1 bath • 1636 ft²
4 bedroom detached house for sale in Derby Road,
Loughborough,
LE12 5BT, LE12 — £364,995 • 4 bed • 1 bath • 2567 ft²


































































































































































