Energy-efficient four-bedroom with south garden, modern fittings and scenic town-fringe location.
A-rated energy efficiency with solar panels and MVHR
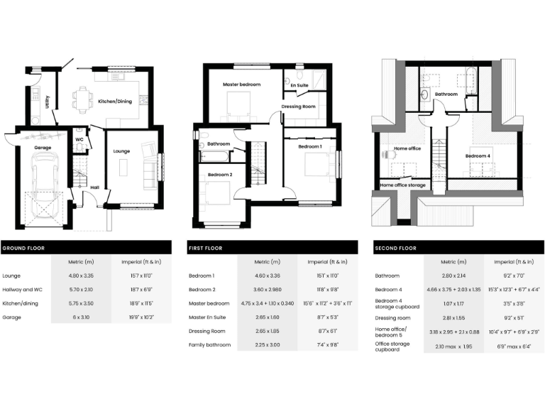
A striking, newly built detached house finished in 2023 and set on a decent plot on the edge of Bovey Tracey. The house is A-rated for energy efficiency and uses ICF construction, flush-fitting solar panels, MVHR and an A-rated gas boiler to keep running costs low. The ground floor benefits from underfloor heating and a high-spec kitchen with Quartzstone worktops and Neff integrated appliances — ideal for family cooking and entertaining.
Accommodation is arranged over three floors and includes four double bedrooms, two dedicated dressing areas, a home office (or fifth bedroom) and three bathrooms finished with Roca sanitaryware and Grohe fittings. The principal suite has an en-suite and dressing room; the top floor bedroom enjoys bright Velux glazing and eaves storage. French doors from the open-plan kitchen/diner open onto a landscaped south-facing rear garden with far-reaching rural outlooks.
Practical extras include an integrated garage with power, lighting, an electric roller door and EV charger, block-paved driveway with ample off-street parking, fitted flooring throughout, and a 10-year structural warranty. The property is freehold and positioned close to local shops, independent cafés and outdoor recreation; the A38 gives quick access to Exeter, Plymouth and the coast.
Notable considerations: the advertised £15,000 contribution towards stamp duty is subject to terms and a completion deadline. One nearby primary school listed here has a ‘Requires improvement’ Ofsted rating; other local schools are rated ‘Good’. Council tax band is not provided. The home uses mains gas boiler and radiators in addition to ground-floor underfloor heating — check heat distribution preferences when viewing.
4 bedroom detached house for sale in Marriott Way, Bovey Tracey, Newton Abbot, Devon, TQ13 — £475,000 • 4 bed • 2 bath • 1380 ft²
4 bedroom detached house for sale in Morchard Road, Crediton, Devon, EX17 — £650,000 • 4 bed • 2 bath • 2323 ft²
5 bedroom detached house for sale in Wood Close, Bovey Tracey, TQ13 — £650,000 • 5 bed • 3 bath • 1839 ft²
3 bedroom detached house for sale in Ogwell Mill Road, Newton Abbot, Devon, TQ12 — £365,000 • 3 bed • 2 bath • 1663 ft²
3 bedroom house for sale in Belstone View, Chulmleigh Road, Morchard Bishop, EX17 — £320,000 • 3 bed • 1 bath • 1668 ft²
4 bedroom detached house for sale in Ipplepen, Devon, TQ12 — £600,000 • 4 bed • 3 bath • 1528 ft²






























































































