**Standout Features:**
- Historic Georgian townhouse built circa 1709
- Expansive 103ft landscaped garden with feature garden folly
- Self-contained flat or office space with potential for rental income
- Generous living spaces including cinema and multiple reception rooms
- Beautifully restored while retaining original period features, such as wood paneling and fireplaces
- Prime location in sought-after Hampstead area, close to excellent schools and amenities
- EPC Rating: D
**Property Summary:**
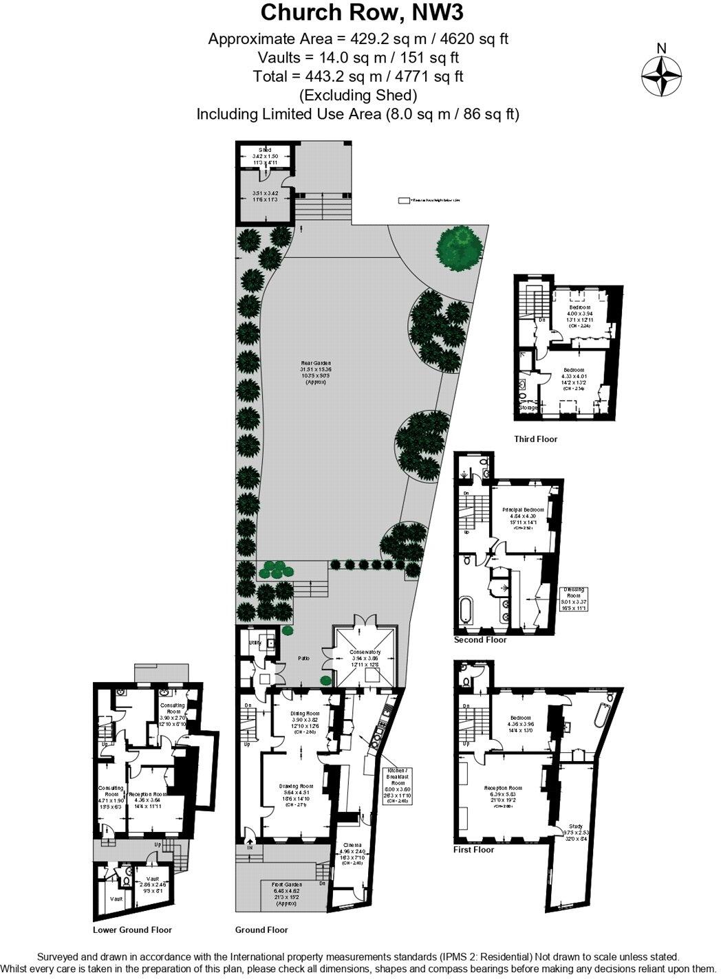
This exquisite five-story Grade II Listed Georgian family home, spanning over 4,620 sq ft, is a rare gem that perfectly combines historic charm with modern living. Set in a prestigious location on Church Row, renowned for its elegant Georgian homes, this property boasts an extensive landscaped garden of over 100 feet, perfect for entertaining or as a peaceful retreat. Inside, you'll find a delightful array of spacious rooms featuring high ceilings and period details, including a grand drawing room, inviting dining room, and a cozy media room.
Equipped with five bedrooms and four bathrooms, including an en suite in the principal suite, this residence comfortably accommodates families. The self-contained flat on the lower ground floor offers versatility—ideal for guests or as a home office. While the property has been lovingly maintained, potential buyers should be aware of its listed status, which may limit alterations in the future. Given its combined elegance, ample space, and coveted location near top-rated schools and local amenities, this property is a must-see and presents a unique opportunity that won't last long.
5 bedroom semi-detached house for sale in Church Row, Hampstead Village, London, NW3 — £10,950,000 • 5 bed • 4 bath • 4620 ft²
5 bedroom semi-detached house for sale in Hampstead Square, London, NW3 — £5,695,000 • 5 bed • 3 bath • 2718 ft²
5 bedroom semi-detached house for sale in Downshire Hill, London, NW3 — £7,950,000 • 5 bed • 2 bath • 3356 ft²
6 bedroom semi-detached house for sale in Frognal, Hampstead Village, NW3 — £9,950,000 • 6 bed • 3 bath • 5821 ft²
6 bedroom terraced house for sale in The Mount Square, London, NW3 — £3,000,000 • 6 bed • 2 bath • 1812 ft²
7 bedroom semi-detached house for sale in South End Road, South End Green, NW3 — £5,950,000 • 7 bed • 3 bath • 4000 ft²










































































