Modern three-storey family home with garden, parking and good connectivity.
Three-storey semi-detached new build with solar panels
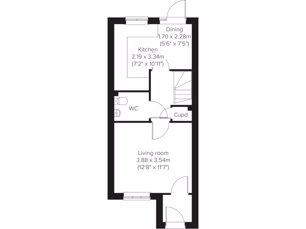
Open-plan kitchen/diner with French doors to enclosed garden
Principal bedroom with en suite; handy second-floor storage cupboards
Downstairs WC and enclosed porch for everyday practicality
Allocated off-street parking and large plot size
Freehold tenure; fast broadband and excellent mobile signal
Service charge £206 pa; council tax band TBC post-occupation
Main bathroom is compact (small–medium) with contemporary fittings
This attractive three-storey semi-detached home offers modern family living across a generous plot in a quiet suburban development. The open-plan kitchen/dining room with French doors lets light into the private rear garden, while a front-aspect living room provides a separate reception space for everyday life.
Practical details include an enclosed porch, a downstairs WC and three handy storage cupboards, plus an en suite to the principal bedroom. The property is a new build with solar panels, freehold tenure, allocated off-street parking and fast broadband — conveniences that suit working families and professionals.
Note the service charge of £206 per year and that council tax banding will be confirmed post-occupation. The main bathroom is a compact contemporary design (small–medium) with a walk-in/corner shower. Local primary and secondary schools include several rated Good, though a couple nearby have lower Ofsted outcomes.
Overall this is a modern, low-maintenance family home in a very affluent, low-crime area with excellent connectivity. The layout and storage make it practical now, with scope to personalise finishes over time.
3 bedroom semi-detached house for sale in Martin Drive,
Stafford,
Staffordshire,
ST16 1AQ, ST16 — £285,000 • 3 bed • 1 bath
3 bedroom semi-detached house for sale in Martin Drive,
Stafford,
Staffordshire,
ST16 1AQ, ST16 — £245,000 • 3 bed • 1 bath • 547 ft²
3 bedroom semi-detached house for sale in Martin Drive,
Stafford,
Staffordshire,
ST16 1AQ, ST16 — £275,000 • 3 bed • 1 bath • 310 ft²
3 bedroom semi-detached house for sale in Martin Drive,
Stafford,
Staffordshire,
ST16 1AQ, ST16 — £245,000 • 3 bed • 1 bath • 547 ft²
3 bedroom semi-detached house for sale in Martin Drive,
Stafford,
Staffordshire,
ST16 1AQ, ST16 — £260,000 • 3 bed • 1 bath • 547 ft²
3 bedroom semi-detached house for sale in Martin Drive,
Stafford,
Staffordshire,
ST16 1AQ, ST16 — £260,000 • 3 bed • 1 bath • 547 ft²


































































































































































