Elevated plot with garden, views and planning permission for significant extension.
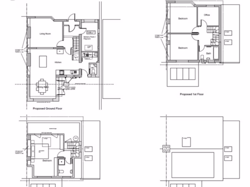
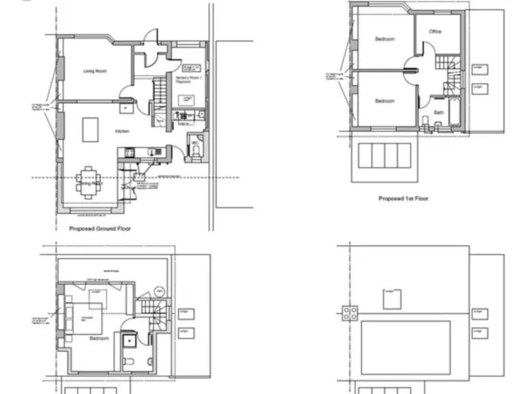
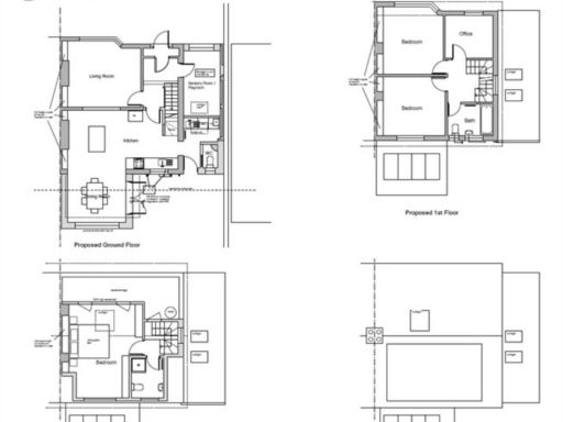
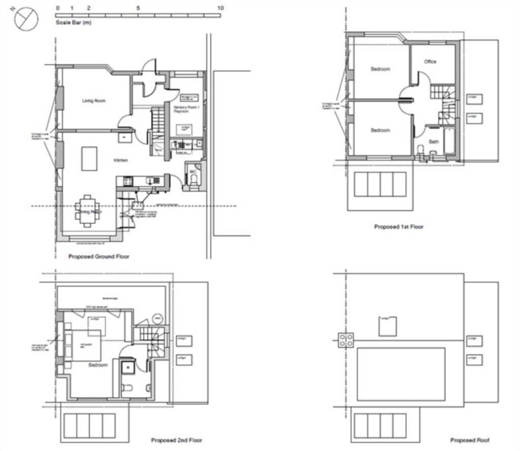
- Planning permission approved for loft, garage and rear extension
- Large 1,249 sq ft footprint with three double bedrooms
- South-west facing rear garden with attractive views to the South Downs
- Garage and loft offer strong conversion potential
- Heat pump hot water cylinder installed 2022
- Requires renovation and modernisation throughout
- Single bathroom only plus separate WC — could limit larger households
- Level driveway for two cars; garage parking and utility space
A spacious three-bedroom semi-detached home in Wallands with planning permission already approved for a loft conversion, garage conversion and rear extension (SDNP/24/01510/HOUS). The house sits on a decent plot with a south-west facing rear garden, pleasant views across the Newhaven valley to the South Downs and a level driveway leading to a single garage. A heat pump hot water cylinder was installed recently (2022).
The interior offers generous reception space with a through sitting/dining room, conservatory and a practical kitchen/utility arrangement. The property totals about 1,249 sq ft and retains many post‑war period proportions; it will reward a buyer prepared to modernise and reconfigure to current standards. Key improvement opportunities include converting the loft and garage to add living space and creating an extended rear footprint as permitted.
Practical considerations: the house needs renovation — cosmetic and some modernisation works are required throughout. There is only one first-floor bathroom and a separate WC, which may be restrictive for larger families until upgraded. Services such as heating are mains gas with boiler and radiators, and double glazing is in place (installed before 2002).
Location strengths include very low local crime, excellent broadband and mobile signal, proximity to Wallands Primary School and a 15-minute walk to Lewes town centre and the mainline station. The property lies within the South Downs National Park boundary and sits in an affluent, highly qualified neighbourhood, which supports strong long-term desirability.
3 bedroom semi-detached house for sale in Hill Road, Lewes, BN7 — £599,950 • 3 bed • 1 bath • 947 ft²
3 bedroom semi-detached house for sale in Hawkenbury Way, Lewes, BN7 — £650,000 • 3 bed • 1 bath • 990 ft²
3 bedroom semi-detached house for sale in Mildmay Road, Lewes, BN7 — £575,000 • 3 bed • 1 bath • 904 ft²
4 bedroom semi-detached house for sale in Fitzjohns Road, Lewes, BN7 — £789,950 • 4 bed • 2 bath • 1421 ft²
4 bedroom detached house for sale in King Henrys Road, Lewes, BN7 — £800,000 • 4 bed • 1 bath • 1276 ft²
3 bedroom semi-detached house for sale in Mildmay Road, Lewes, BN7 — £485,000 • 3 bed • 1 bath • 908 ft²


































































































