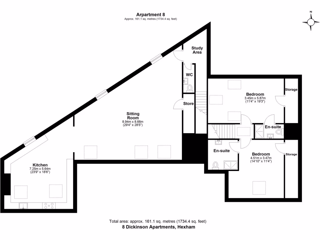
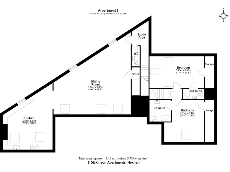
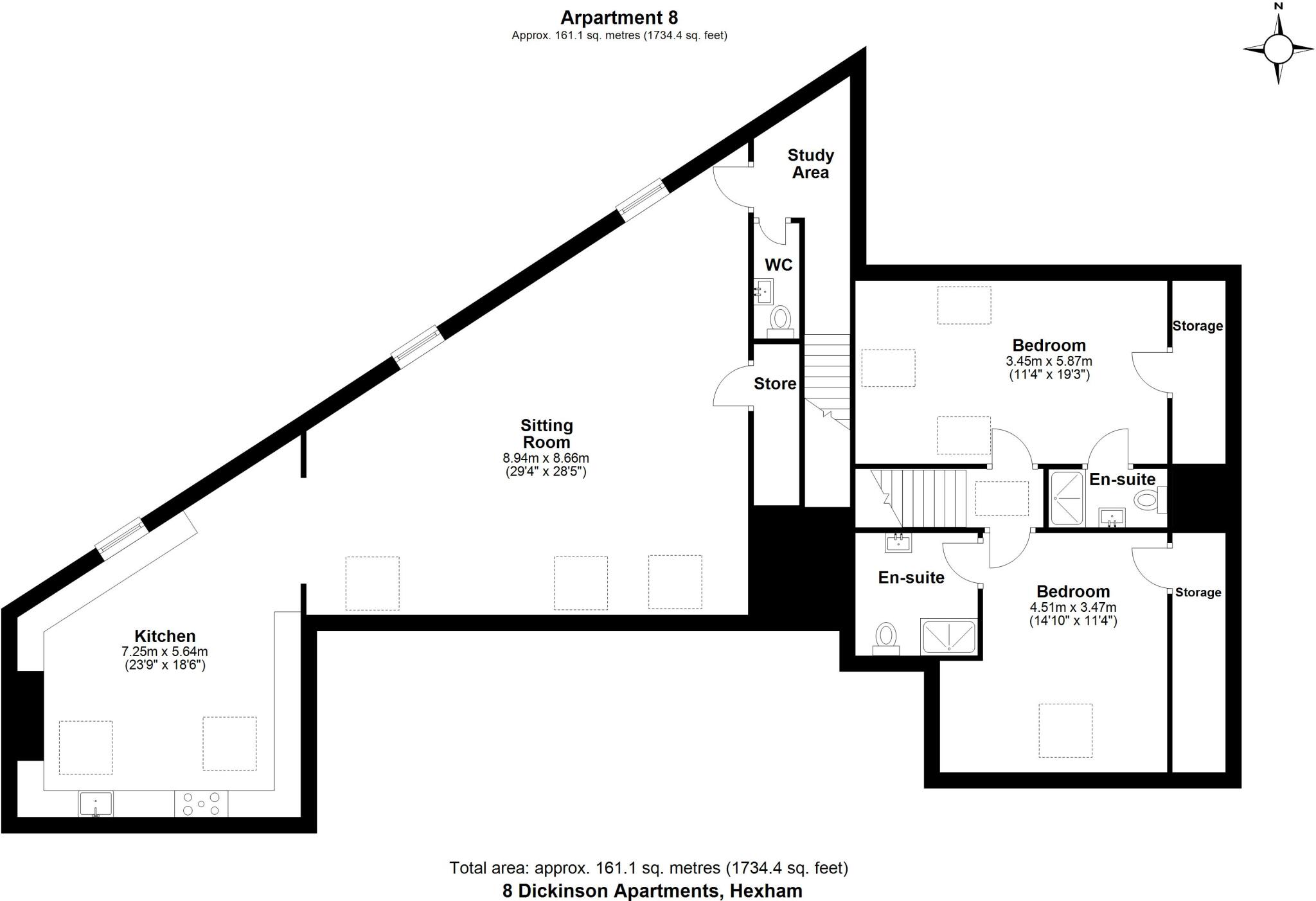
Dramatic A-frame penthouse—huge two-bed with en‑suites and period character in Hexham.
Large penthouse: approx. 1,734 sq ft, unusually spacious for two bedrooms
Two double bedrooms each with private en-suite shower rooms
Striking A-frame architecture, exposed brick and high ceilings
Lift access; central atrium provides abundant natural light
Leasehold with 998 years remaining; average service charge £1,100
Parking not included — available by separate negotiation
EPC rating B; council tax described as low/cheap
Very slow broadband speeds despite excellent mobile signal
Perched at the top of a handsome Edwardian building, this multi-level penthouse combines striking A-frame architecture and exposed brick with generous, light-filled living. The apartment’s open-plan principal space and high ceilings create an airy, gallery-like feel suited to stylish downsizers or professional couples seeking character with contemporary comfort.
The layout offers two double bedrooms, each with its own en-suite shower room, plus ample built-in storage and a bespoke kitchen with high-end finishes. At approximately 1,734 sq ft, the accommodation is unusually large for a two-bedroom apartment and benefits from a central atrium, lift access and a strong EPC B rating.
Practical details to note: the property is leasehold with 998 years remaining and an average service charge of £1,100. Parking is not included but is available by separate negotiation. Broadband speeds in the building are reported as very slow despite excellent mobile signal — important if you work from home or rely on high-speed internet.
This apartment sits in Hexham’s historic market town, moments from independent shops, cafés and Hexham Abbey, with good rail and road links. The combination of period character, generous internal space and modern finishes makes it a rare penthouse offering in a very affluent area, though buyers should weigh leasehold running costs and broadband limitations before proceeding.
1 bedroom apartment for sale in Beaumont Street, Hexham, Northumberland, NE46 — £220,000 • 1 bed • 1 bath • 677 ft²
2 bedroom apartment for sale in Beaumont Street, Hexham, Northumberland, NE46 — £275,000 • 2 bed • 2 bath • 787 ft²
2 bedroom apartment for sale in Beaumont Street, Hexham, Northumberland, NE46 — £395,000 • 2 bed • 2 bath • 1135 ft²
2 bedroom apartment for sale in Beaumont Street, Hexham, Northumberland, NE46 — £470,000 • 2 bed • 2 bath • 1209 ft²
3 bedroom apartment for sale in 2 Dickinson Apartments, Beaumont Street, Hexham, Northumberland, NE46 — £495,000 • 3 bed • 3 bath • 1345 ft²
2 bedroom flat for sale in Battle Hill, Hexham, NE46 — £130,000 • 2 bed • 1 bath • 631 ft²


































